Prodej bytu 2+kk, Brno, Na pískové cestě, 62 m2

Na Pískové cestě, Brno, Bohunice


9 072 000 Kč /za nemovitost
HYPOTÉKA od 40 546 Kč /měs.
Regionální dodavatelé v Brně

Popis

Hledáte byt, který kombinuje klid, spoustu úložného prostoru a nálož bohaté výbavy v ceně?

Mrkněte na byt 307 v chytrém domě EDISON HOUSE v Brně - Bohunicích, nejrychleji rostoucí čtvrti v Brně s obrovským potenciálem.

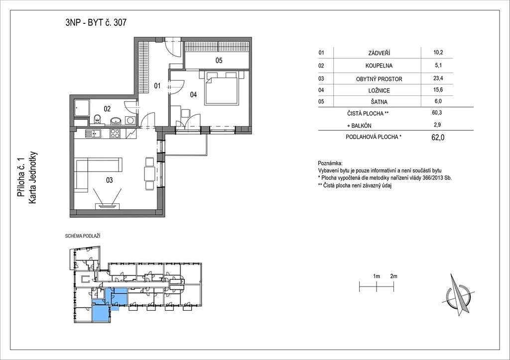
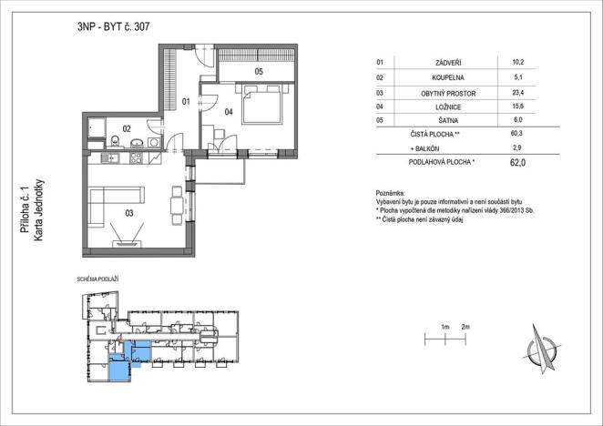
Byt nabízí 62 m² prakticky navržené dispozice 2+kk a balkon o velikosti 2,9 m² směřující do tichého vnitrobloku.
Obě hlavní místnosti jsou orientované tak, aby poskytovaly příjemné světlo a nerušenou atmosféru pro každodenní život.
A co navíc? Veliká samostatná šatna přístupná z ložnice.

Součástí ceny je kompletní LOXONE SMART HOME systém:
– senzory nepřetržitě hlídají teplotu a kvalitu vzduchu v místnosti
– neslyšná chytrá ventilace se stará o čerstvý a čistý vzduch v bytě
– chytré vytápění udržuje teplotu podle Vašich návyků
– automatické předokenní žaluzie reagují na polohu slunce i počasí a chrání byt před přehříváním
– osvětlení funguje podle denní doby (ráno pro probuzení, večer pro kvalitní spánek)
- senzory hlídají bezpečnost domácnosti (třeba když vyteče pračka, vypnou uzávěr vody)

Ovládání je snadné a přirozené – přes nástěnný iPad, appku nebo chytré vypínače.
LOXONE je suverénně nejrozšířenější systém se špičkovou podporou a rozšiřováním funkcí do budoucna.

EDISON HOUSE je novostavba ve standardu PENB A – mimořádně úsporná budova s levným provozem, stabilní hodnotou a technologiemi, které fungují automaticky.
Tradiční "hloupé" byty s horším energetickým standardem v budoucnu nebude nikdo chtít, ale byty vybavené chytrou domácností porostou na ceně.

V každém bytě od nás dostanete v ceně:
+ SMART domácnost Loxone
+ iPad k ovládání bytu
+ vzduchotechniku s rekuperací
+ podlahové topení
+ letní přichlazování
+ předokenní žaluzie s automatickým ovládáním
+ svítidla připravená na SMART ovládání
+ prvotřídní standardy obkladů, povrchů a zařizovacích předmětů

POZOR: Dům je dokončený a zkolaudovaný: vidíte co kupujete a můžete se hned stěhovat!


Zbývají nám poslední byty.
Nechat si utéct tuto příležitost by byla škoda, co říkáte?

Cena
9 072 000 Kč /za nemovitost Spočítat hypotéku
Aktualizováno
12. 3. 2026
Adresa
Na Pískové cestě, Brno, Bohunice
ID
11202507
Stavba
Cihlová
Stav objektu
Novostavba
Patro
3. z 4
Vlastnictví
Osobní
Užitná plocha
62 m2
Třída energetické náročnosti
A - Mimořádně úsporná
Ukazatel energetické náročnosti
58 kWh/m2 za rok
Balkon
Výtah
Bezbarierový přístup

Máte zájem o tuto nemovitost?

Tímto, v souladu s nařízením Evropského parlamentu a Rady (EU) 2016/679, v platném znění, prohlašuji, že mi je alespoň 16 let a uděluji tak svůj souhlas se zpracováním zadaných údajů (jméno, telefon, e-mail, ip adresa) společnosti B3 Technology, s.r.o., IČ: 07330600, se sídlem Novostavby 126/23, 435 11 Lom (správce dat), za účelem předání dotazu z tohoto formuláře Vámi vybranému inzerentovi a zpětného kontaktování mé osoby. Osobní údaje bude správce zpracovávat manuálně i automaticky přímo prostřednictvím svých zaměstnanců. Informace předané tímto formulářem budou uloženy v databázi správce maximálně po dobu 10 let. Odvolání souhlasu s uložením a zpracováním poskytnutých dat lze e-mailem na info@realitymat.cz. V případě podezření na neoprávněné použití Vámi poskytnutých údajů máte právo předat podnět k šetření Úřadu pro ochranu osobních údajů. Více informací
Chystáte se prodat nemovitost?
Pomůžeme Vám!

Kontakt

Ing. Jan Veselý

Ing. Jan Veselý

Přihlášení k odběru

Nenechte si ujít nejnovější nabídky prodeje bytů 2+kk v Brně.

Podobné nabídky