Pronájem bytu 3+kk, Beroun - Beroun-Město, Na Parkáně, 66 m2

Na Parkáně, Beroun-Město


18 500 Kč /za měsíc
Získejte výhodnou HYPOTÉKU

(Kč 5 500,- zálohy za služby + Kč 1 500,- elektřina a plyn se převádí na nájemce)


Regionální dodavatelé v Berouně

Popis

K PRONÁJMU - PROSTORNÝ BYT 3+KK V SRDCI HISTORICKÉHO CENTRA BEROUNA | 66 m² |KLIDNÁ LOKALITA U HUSOVA NÁMĚSTÍ

Hledáte příjemné a pohodlné bydlení v samotném centru Berouna, ale zároveň v klidné ulici? Tento prostorný byt 3+kk o velikosti 66 m² se nachází pár kroků od Husova náměstí a nabízí ideální kombinaci skvělé polohy, velkého prostoru a maximálního pohodlí.

✅ LOKALITA, KTEROU SI ZAMILUJETE
Byt leží v historické části města, jen pár metrů od Pražské brány. V okolí najdete vše, co ke kvalitnímu životu potřebujete — obchody, kavárny, restaurace, školy, lékárny, poštu, kulturní centrum, tzn. kompletní občanskou vybavenost.
Pro volnočasové aktivity je ideální okolí řeky Berounky, parky a cyklostezky, vše v docházkové vzdálenosti.
Skvělé dopravní spojení: vlak, autobus i rychlý nájezd na D5.

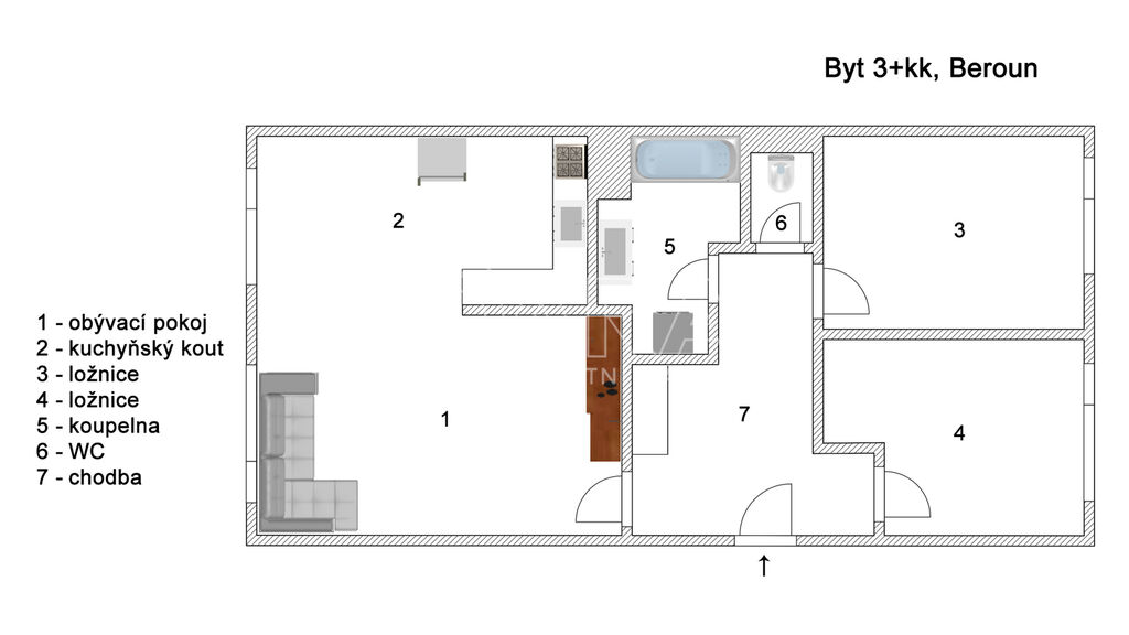
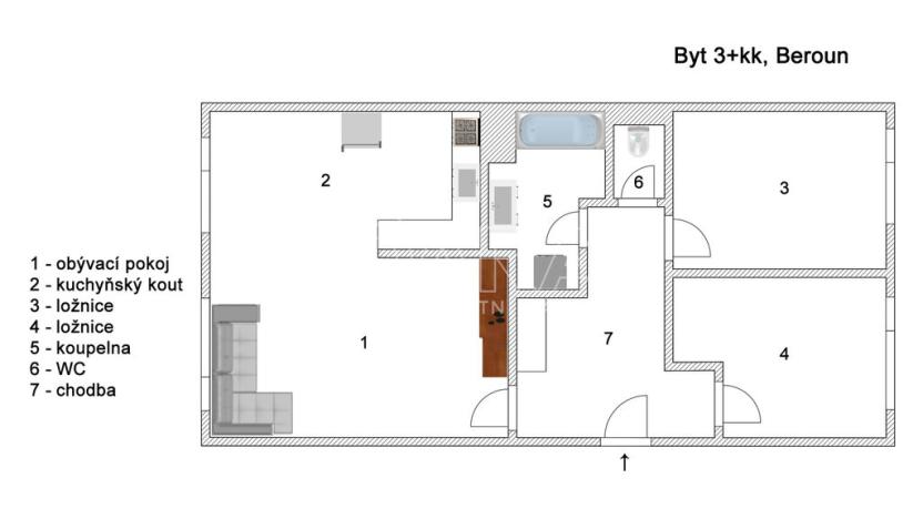
✅ DISPOZICE A VYBAVENÍ
Byt se nachází ve 2. podlaží bytového domu a je částečně zařízený.
Dominantou je prostorný, slunný obývací pokoj s kuchyňským koutem, orientovaný na západ do klidného parku. Moderní kuchyň je plně vybavena vestavěnými spotřebiči (myčka, el. trouba s plyn. sporákem, mikrovlnná trouba, digestoř, lednice s mrazákem).
Obě ložnice jsou orientované na východ – ideální pro klidný spánek i svěží začátek dne.
Dále je k dispozici prostorná vstupní chodba s vestavěnými skříněmi, moderní koupelna s vanou a samostatné WC.
V bytě se nachází také dvě samostatné šatní skříně.
Dle domluvy je možné vyžívat také komoru (na chodbě) a sklepní kóji v přízemí domu, kde se nachází i společná kolárna.

✅ NÁKLADY NA BYDLENÍ
•. Nájemné: 18 500 Kč / měsíc
•. Poplatky: 5 500 Kč / měsíc
•. Elektřina a plyn (cca 1 500 Kč) se převádí na nájemce
•. Kauce: 37 000 Kč
•. Bez provize RK!

✅ Volný k nastěhování od 1/12

Neváhejte mě kontaktovat a domluvte si termín prohlídky (od 18/11) – tento krásný byt může být vaším novým domovem!

Pronajímatel si vyhrazuje právo vybrat nájemce dle svých preferencí.

Zájemcům o pronájem bude na přání majitelky zaslán stručný dotazník k vyplnění základních informací.

Cena
18 500 Kč /za měsíc
Poznámka k ceně
Kč 5 500,- zálohy za služby + Kč 1 500,- elektřina a plyn se převádí na nájemce
Náklady na bydlení
5 500
Aktualizováno
14. 11. 2025
Adresa
Na Parkáně, Beroun-Město
ID
2527
Stavba
Panelová
Stav objektu
Po rekonstrukci
Patro
2. z 4
Vybaveno
Částečně
Lokalita objektu
Centrum obce
Vlastnictví
Osobní
Užitná plocha
66 m2
Zastavěná plocha
227 m2
Podlahová plocha
66 m2
Třída energetické náročnosti
G - Mimořádně nehospodárná
Plyn
Plynovod
Odpad
Veřejná kanalizace
Komunikace
Asfaltová
Telekomunikace
Internet
Doprava
Vlak, Dálnice, Silnice, MHD, Autobus
Sklep

Máte zájem o tuto nemovitost?

Tímto, v souladu s nařízením Evropského parlamentu a Rady (EU) 2016/679, v platném znění, prohlašuji, že mi je alespoň 16 let a uděluji tak svůj souhlas se zpracováním zadaných údajů (jméno, telefon, e-mail, ip adresa) společnosti B3 Technology, s.r.o., IČ: 07330600, se sídlem Novostavby 126/23, 435 11 Lom (správce dat), za účelem předání dotazu z tohoto formuláře Vámi vybranému inzerentovi a zpětného kontaktování mé osoby. Osobní údaje bude správce zpracovávat manuálně i automaticky přímo prostřednictvím svých zaměstnanců. Informace předané tímto formulářem budou uloženy v databázi správce maximálně po dobu 10 let. Odvolání souhlasu s uložením a zpracováním poskytnutých dat lze e-mailem na info@realitymat.cz. V případě podezření na neoprávněné použití Vámi poskytnutých údajů máte právo předat podnět k šetření Úřadu pro ochranu osobních údajů. Více informací
Chystáte se prodat nemovitost?
Pomůžeme Vám!

Kontakt

Ing. David Krátký

Ing. David Krátký

Přihlášení k odběru

Nenechte si ujít nejnovější nabídky pronájmu bytů 3+kk v Berouně.

Podobné nabídky