Prodej rodinného domu, Chvalovice, 213 m2

Chvalovice


9 450 000 Kč /za nemovitost
HYPOTÉKA od 42 236 Kč /měs.
Regionální dodavatelé v Chvalovicích

Pojištění a finance

Popis

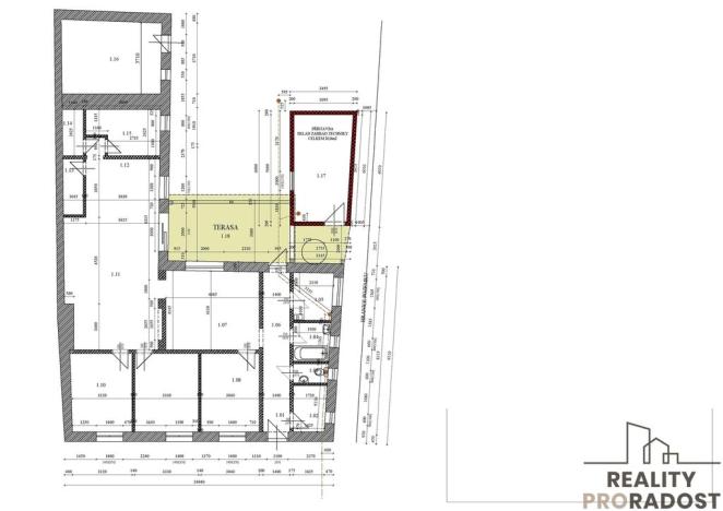
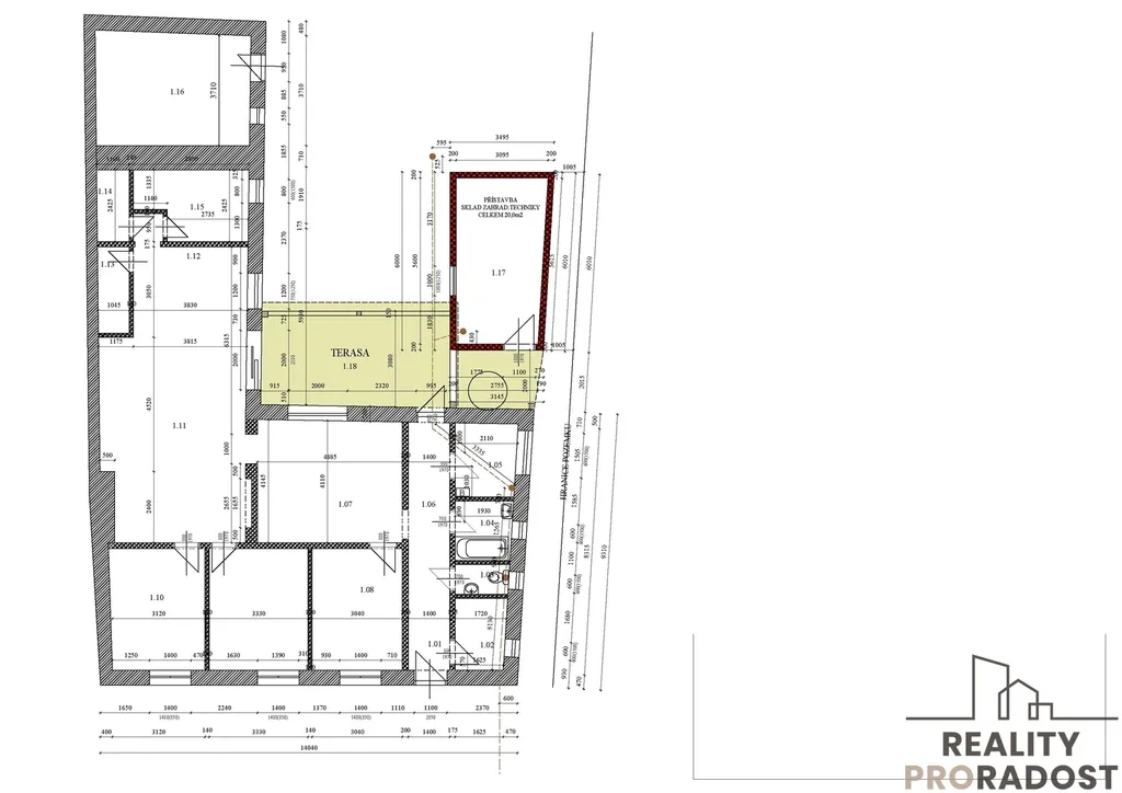
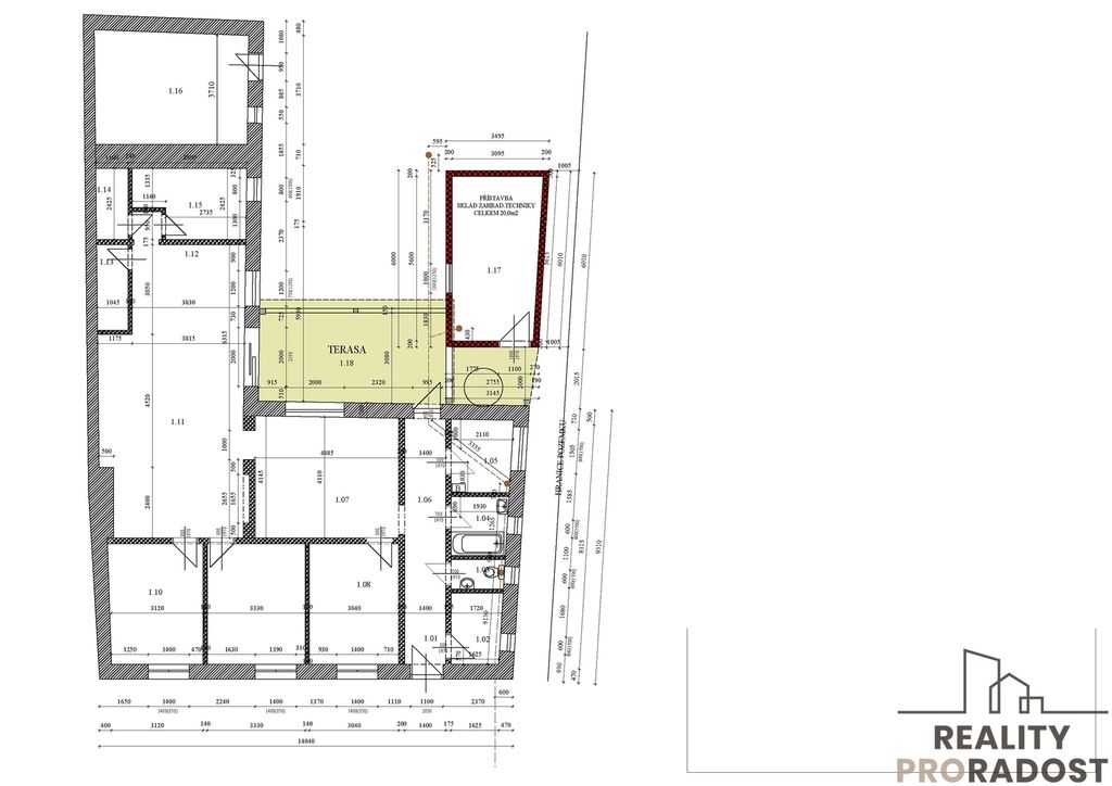
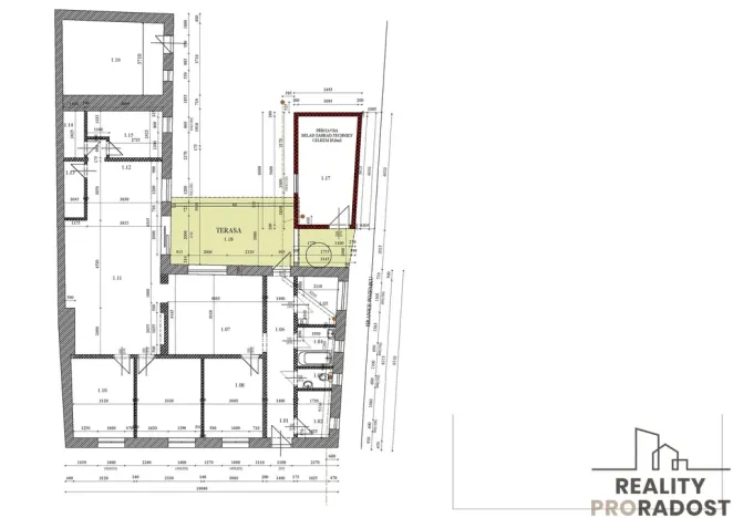
V zastoupení majitele Vám nabízím RD těsně před dokončením výstavby. Jedná se o prostorný rodinný dům, kde si každý účastník rodiny najde to své. Na nemovitosti chybí dokončovací práce jako jsou, kompletace elektřiny, podlahová krytina, obložky a dveře. Dům v této fází výstavby umožní novému majiteli aby si zvolil interiér dle vlastních představ, tak aby splňoval jeho požadavky na útulný domov. Nemovitost je vytápěna tepelným čerpadlem do podlahy. Na zahradě je příprava na letní kuchyni nebo dílnu, ale dominantou je vyhřívaný bazén se slanou vodou. Samozřejmostí jsou další přístavba na sklad a příslušenství k bazénu. Zahrada je rovinatá o dostatečné rozloze k jakýmkoliv účelům. Před domem je plocha na parkovací stání pro dvě auta. Upozorňujeme, že byly doplněny fotografie o vizualizaci. Energetická třída „G“ je uvedena dočasně, vzhledem k novele zákona č.406/2000Sb.o hospodaření s energií, po dodání podkladů bude uvedena skutečná energetická třída této nemovitosti. V případě zájmu mne neváhejte kontaktovat, rádi zajistíme i financování této nemovitosti.

Cena
9 450 000 Kč /za nemovitost Spočítat hypotéku
Aktualizováno
15. 4. 2026
Adresa
Chvalovice
ID
28186
Stavba
Cihlová
Stav objektu
Novostavba
Vybaveno
Ne
Typ objektu
Přízemní
Druh objektu
Řadový
Lokalita objektu
Centrum obce
Užitná plocha
213 m2
Plocha pozemku
792 m2
Plocha zahrady
450 m2
Třída energetické náročnosti
G - Mimořádně nehospodárná
Převod do OV

Máte zájem o tuto nemovitost?

Tímto, v souladu s nařízením Evropského parlamentu a Rady (EU) 2016/679, v platném znění, prohlašuji, že mi je alespoň 16 let a uděluji tak svůj souhlas se zpracováním zadaných údajů (jméno, telefon, e-mail, ip adresa) společnosti B3 Technology, s.r.o., IČ: 07330600, se sídlem Novostavby 126/23, 435 11 Lom (správce dat), za účelem předání dotazu z tohoto formuláře Vámi vybranému inzerentovi a zpětného kontaktování mé osoby. Osobní údaje bude správce zpracovávat manuálně i automaticky přímo prostřednictvím svých zaměstnanců. Informace předané tímto formulářem budou uloženy v databázi správce maximálně po dobu 10 let. Odvolání souhlasu s uložením a zpracováním poskytnutých dat lze e-mailem na info@realitymat.cz. V případě podezření na neoprávněné použití Vámi poskytnutých údajů máte právo předat podnět k šetření Úřadu pro ochranu osobních údajů. Více informací
Chystáte se prodat nemovitost?
Pomůžeme Vám!
Theleadway banner

Kontakt

Karolína Hammer

Karolína Hammer

Přihlášení k odběru

Nenechte si ujít nejnovější nabídky prodeje rodinných domů v Chvalovicích (okr. Znojmo).

Podobné nabídky