Prodej chalupy, Benešov nad Černou, 295 m2 (ID: 2003015)

Benešov nad Černou


Cena na vyžádání /za nemovitost
Získejte výhodnou HYPOTÉKU

(cena u makléře)


Regionální dodavatelé v Benešově nad Černou

Výkup a prodej starého nábytku

Popis

Luxusní usedlost u říčky – výjimečné bydlení s investičním potenciálem

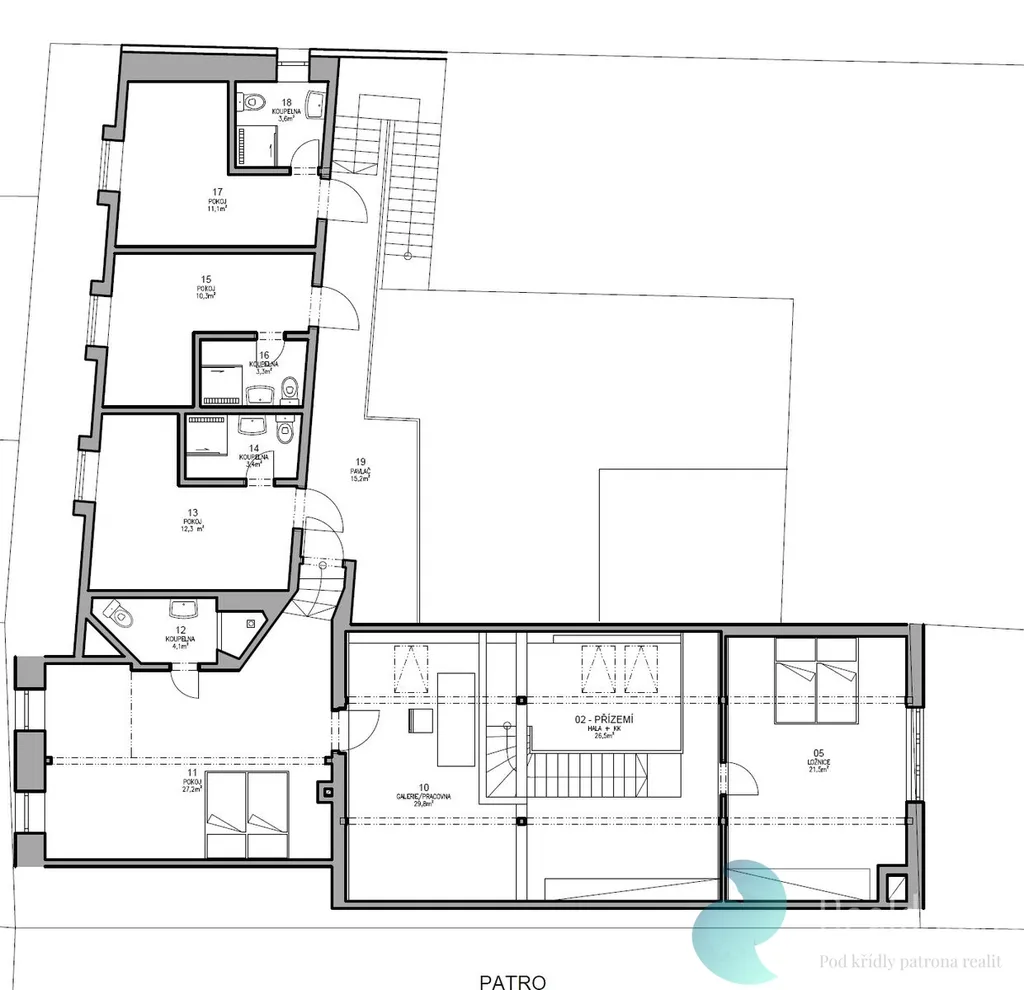
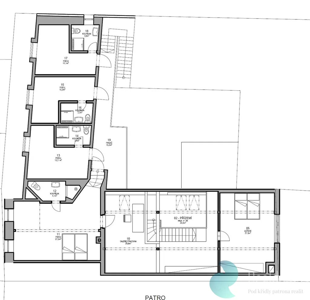
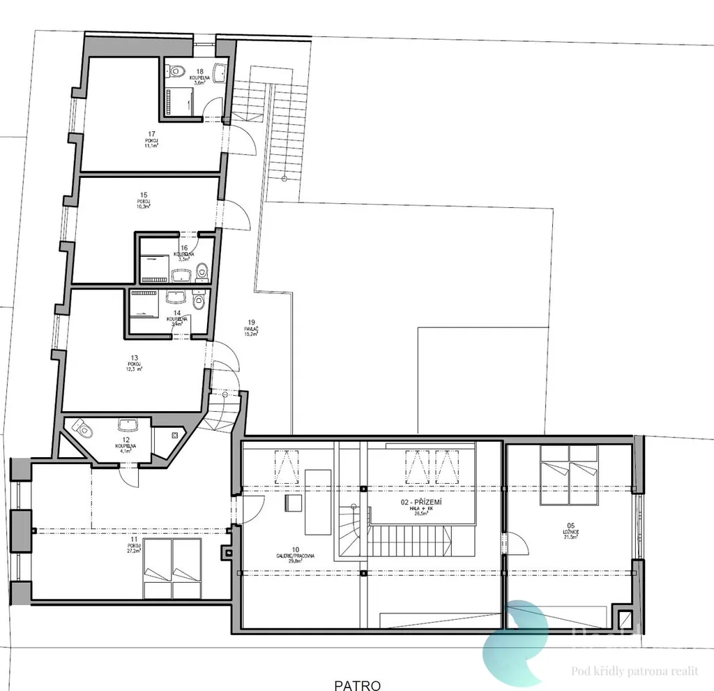
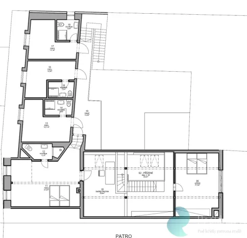
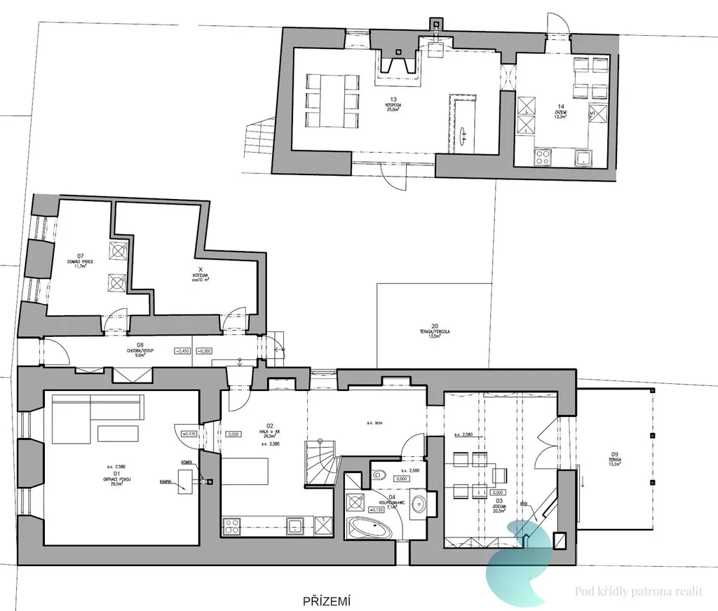
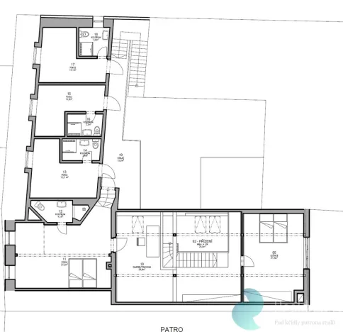
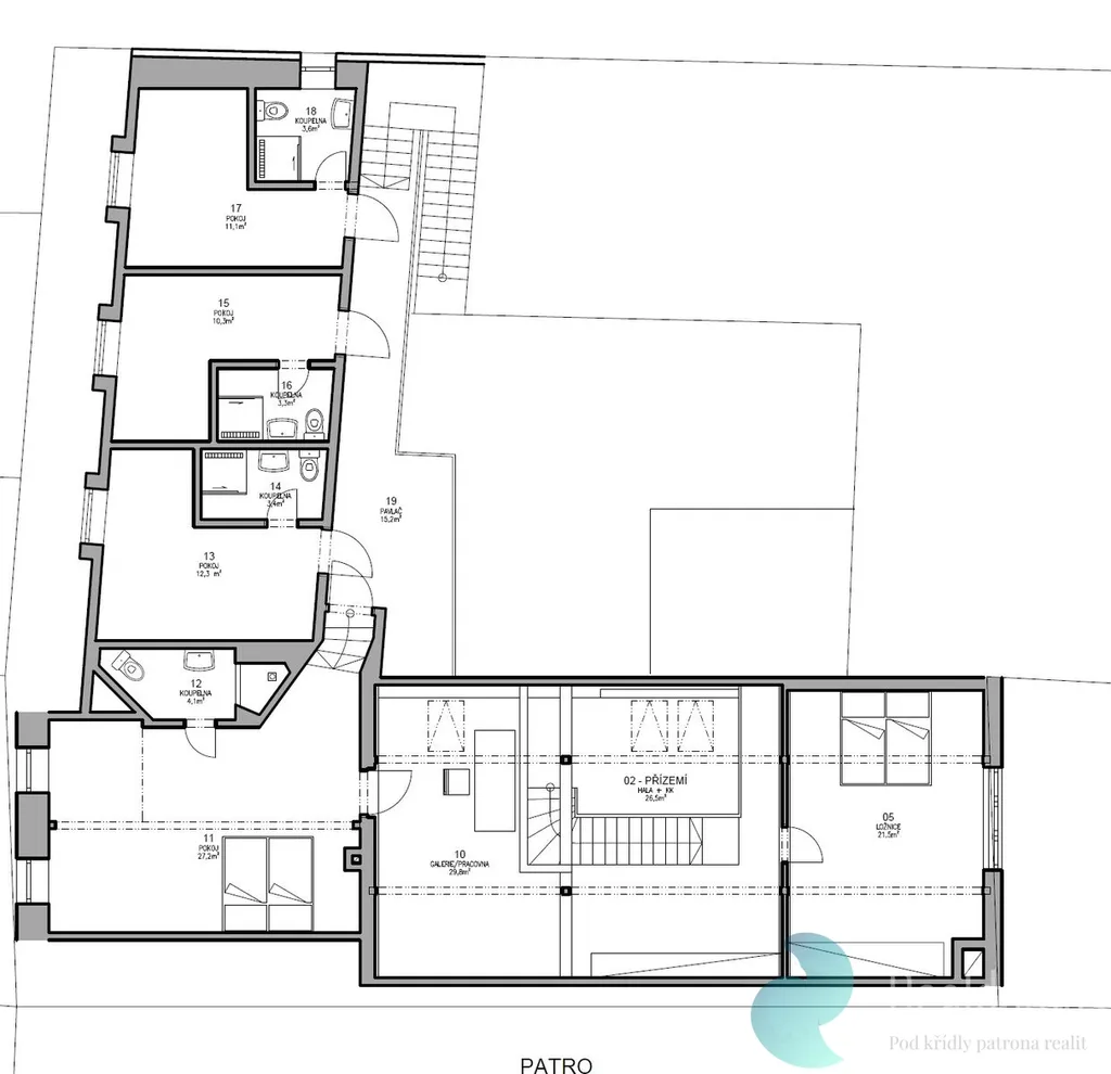
Jedinečná luxusní chalupa v Benešově nad Černou vás doslova pohltí svou atmosférou, prostorem i energií. Na břehu říčky Černé, obklopená klidem Novohradských hor, stojí usedlost, která spojuje kouzlo přírody s pohodlím moderního života. Na rozlehlém pozemku o velikosti 3 066 m² najdete pečlivě udržovanou zahradu s vyhřívaným bazénem, pergolou s venkovní kuchyní a grilem i množstvím romantických zákoutí pro chvíle odpočinku.

Usedlost tvoří dva samostatné domy, které mohou fungovat nezávisle nebo jako jeden celek. Hlavní obytná část o rozloze 197 m² je jako stvořená pro velkou rodinu, která hledá komfort, prostor a klid, a přitom nechce slevit z nároků na kvalitu a styl. Druhý dům (97,5 m²) slouží dnes jako zavedený penzion s kapacitou 7 lůžek, stylovou společenskou místností s krbem, výčepem a kuchyňkou. Tento dům však nabízí i skvělou možnost částečného pronájmu, rekreačního ubytování či využití pro podnikání – ideální pro ty, kdo chtějí spojit životní komfort s chytrou investicí.

Ať už se rozhodnete využívat celý objekt pro vlastní bydlení, nebo část ponecháte pro komerční účely, získáte nemovitost s obrovským potenciálem. Dům prošel kompletní rekonstrukcí v letech 2004–2019, která citlivě zachovala původní charakter a zároveň přinesla vysoký technický standard – měděné rozvody, kvalitní dřevěná okna i dveře, nové střechy, zateplení a pečlivě vybrané materiály. Vytápění zajišťuje moderní kotel na tuhá paliva se zásobníkem, doplněný krby pro vytvoření kouzelné atmosféry.

Ačkoli leží usedlost přímo u říčky, není ohrožena záplavami – díky profesionálně provedeným protipovodňovým opatřením a vhodnému terénnímu řešení je objekt zcela bezpečný a plně pojistitelný i proti povodni.

Tato usedlost je neopakovatelnou příležitostí pro ty, kdo hledají výjimečné bydlení v srdci přírody, které může zároveň vydělávat. Kombinuje luxus, prostor a naprostý klid s možností podnikatelského využití – a to vše v jedné z nejmalebnějších lokalit Jižních Čech.

Cena
Cena na vyžádání Spočítat hypotéku
Poznámka k ceně
cena u makléře
Aktualizováno
12. 3. 2026
Adresa
Benešov nad Černou
ID
2497
Stavba
Smíšená
Stav objektu
Po rekonstrukci
Vybaveno
Částečně
Typ objektu
Patrový
Druh objektu
Rohový
Lokalita objektu
Klidná část obce
Užitná plocha
295 m2
Zastavěná plocha
429 m2
Plocha pozemku
3066 m2
Odpad
Veřejná kanalizace
Topení
Lokální tuhá paliva, Ústřední tuhá paliva, Podlahové
Komunikace
Asfaltová
Telekomunikace
Internet
Doprava
Silnice, Autobus
Voda
Vodovod
Převod do OV
Parkování
Bazén

Máte zájem o tuto nemovitost?

Tímto, v souladu s nařízením Evropského parlamentu a Rady (EU) 2016/679, v platném znění, prohlašuji, že mi je alespoň 16 let a uděluji tak svůj souhlas se zpracováním zadaných údajů (jméno, telefon, e-mail, ip adresa) společnosti B3 Technology, s.r.o., IČ: 07330600, se sídlem Novostavby 126/23, 435 11 Lom (správce dat), za účelem předání dotazu z tohoto formuláře Vámi vybranému inzerentovi a zpětného kontaktování mé osoby. Osobní údaje bude správce zpracovávat manuálně i automaticky přímo prostřednictvím svých zaměstnanců. Informace předané tímto formulářem budou uloženy v databázi správce maximálně po dobu 10 let. Odvolání souhlasu s uložením a zpracováním poskytnutých dat lze e-mailem na info@realitymat.cz. V případě podezření na neoprávněné použití Vámi poskytnutých údajů máte právo předat podnět k šetření Úřadu pro ochranu osobních údajů. Více informací
Chystáte se prodat nemovitost?
Pomůžeme Vám!

Kontakt

Mgr. Lenka Muselová

Mgr. Lenka Muselová

Přihlášení k odběru

Nenechte si ujít nejnovější nabídky prodeje chalup v Benešově nad Černou.

Podobné nabídky