Pronájem bytu 3+kk, Hluboká nad Vltavou, Masarykova, 83 m2

Masarykova, Hluboká nad Vltavou


18 500 Kč /za měsíc
Získejte výhodnou HYPOTÉKU
Regionální dodavatelé v Hluboké nad Vltavou

Popis

V rámci exkluzivní spolupráce si vám dovoluji nabídnout k pronájmu bytovou jednotku o dispozici 3+kk v centru města Hluboká nad Vltavou v citlivě zrekonstruované budově bývalé restaurace a ubytovacího zařízení Bakalář.
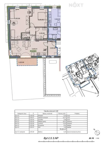
Bytová jednotka o celkové užitné ploše 86,21 m² s nejhezčím výhledem, se nachází ve 3.NP a sestává se z předsíně (5,33 m²), koupelny po pravé straně (6,02 m²) a chodby (3,05 m²) ze které se dostanete do ložnice (13,05 m²), prostorného pokoje (23,57 m²) a samostatného WC (1,83 m²). Do obývacího pokoje s kuchyňským koutem (23,71 m²) projdete rovnou z předsíně. K bytu náleží balkon (6,30 m²) jehož vchod je umístěn z kuchyně a také skladovací kóje v přízemí (3,36 m²).
Noví nájemníci si budou moci užívat čerstvě zrekonstruované prostory bytu a celé budovy. V kuchyni bude nerez dřez s odkapem, baterie s flexi ramenem a možností spršky, digestoř s odtahem do exteriéru, příprava na vestavnou lednici, dále sklokeramická varná deska, el. trouba, a myčka. Koupelna je vybavena sprchovým koutem, umyvadlem se skřínkou a zrcadlem. Byt bude vybaven svítidly, včetně LED lišty pro nepřímé osvětlení. U oken orientovaných na jih a západ budou nainstalovány el. ovládané venkovní žaluzie. Tento byt má navíc v rámci základního vybavení také klimatizaci.
Vytápění a ohřev vody je zajištěn tepelným čerpadlem (vzduch, voda).
Měsíční náklady spojené s užíváním prostoru činí: 18.500,- Kč nájem + energie, voda 5.300,- (závisí dle počtu osob v bytě), přičemž náklady na elektřinu budou sníženy díky vlastní fotovoltaické elektrárně. Internet 299,- Kč měsíčně bude přepsán na nového nájemníka (router není k dispozici). Provize RK činí jeden měsíční nájem plus DPH 21%, kauce je pronajímatelem stanovena na 37.000,- Kč. Zároveň zde nabízíme možnost pronájmu parkovacího stání / garáže či dvoj-garáže včetně dvou sklepů. Více informací vám ráda poskytnu po telefonu.
Aktuálně probíhají na nemovitosti finální stavební práce. K nastěhování bude jednotka připravena od 30.1.2026.
Pokud jste rádi v centru dění a oceníte nadstandardní občanskou vybavenost v této krásné lokalitě, je toto bydlení pro vás ideální volbou. Doporučuji prohlídku nemovitosti. Pro komunikaci uvádějte evidenční číslo zakázky N114656.

Cena
18 500 Kč /za měsíc
Náklady na bydlení
5.300,-
Aktualizováno
11. 11. 2025
Adresa
Masarykova, Hluboká nad Vltavou
ID
N114656
Stavba
Cihlová
Stav objektu
Po rekonstrukci
Patro
3. z 3
Vybaveno
Částečně
Lokalita objektu
Centrum obce
Vlastnictví
Osobní
Užitná plocha
83 m2
Třída energetické náročnosti
C - Úsporná
Elektřina
230V
Odpad
Veřejná kanalizace
Topení
Ústřední elektrické
Komunikace
Asfaltová
Doprava
Vlak, Silnice, Autobus
Voda
Vodovod
Topné těleso
Radiátory
Zdroj topení
Tepelné čerpadlo
Zdroj teplé vody
Tepelné čerpadlo
Balkon
Sklep
Výtah
Bezbarierový přístup

Máte zájem o tuto nemovitost?

Tímto, v souladu s nařízením Evropského parlamentu a Rady (EU) 2016/679, v platném znění, prohlašuji, že mi je alespoň 16 let a uděluji tak svůj souhlas se zpracováním zadaných údajů (jméno, telefon, e-mail, ip adresa) společnosti B3 Technology, s.r.o., IČ: 07330600, se sídlem Novostavby 126/23, 435 11 Lom (správce dat), za účelem předání dotazu z tohoto formuláře Vámi vybranému inzerentovi a zpětného kontaktování mé osoby. Osobní údaje bude správce zpracovávat manuálně i automaticky přímo prostřednictvím svých zaměstnanců. Informace předané tímto formulářem budou uloženy v databázi správce maximálně po dobu 10 let. Odvolání souhlasu s uložením a zpracováním poskytnutých dat lze e-mailem na info@realitymat.cz. V případě podezření na neoprávněné použití Vámi poskytnutých údajů máte právo předat podnět k šetření Úřadu pro ochranu osobních údajů. Více informací
Chystáte se prodat nemovitost?
Pomůžeme Vám!

Kontakt

Bc. Andrea Frantíková

Bc. Andrea Frantíková

Přihlášení k odběru

Nenechte si ujít nejnovější nabídky pronájmu bytů 3+kk v Hluboké nad Vltavou.

Podobné nabídky