Prodej bytu 3+1, Blansko, Mahenova, 102 m2

Mahenova, Blansko


Cena na vyžádání /za nemovitost
Získejte výhodnou HYPOTÉKU

(info v RK, včetně poplatků, včetně provize, včetně právního servisu)


Regionální dodavatelé v Blansku

Popis

Dnes vám ukážu byt, který zvenku působí docela nenápadně, ale uvnitř má víc prostoru, než byste čekali.

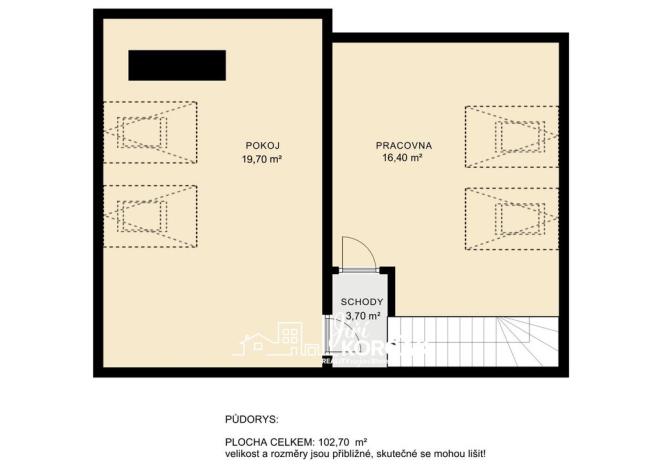
Původně šlo o klasickou 2+1 s 56 m², ale v roce 2014 prošel velkou proměnou.

Díky přístavbě do podkroví se rozšířil na celkových přibližně 102 m² (dle prohlášení vlastníka) a vznikl z něj atraktivní prostorný mezonet.

V podkroví najdete dva samostatné pokoje, ideální třeba jako ložnice a dětský pokoj nebo pracovna.

V dolním patře je velký obývací pokoj volně navazující na kuchyní, kde se pohodlně sejde celá rodina.

Tenhle byt najdete v ulici Mahenova, v klidné části Blanska, kde je přitom vše na dosah.


Jen pár minut chůze odtud máte centrum města, obchody, školu, školku i poštu.

Pro ty, kdo dojíždějí, je to ideální místo — vlakové i autobusové nádraží jsou vzdálené do deseti minut pěšky.

Ať už míříte do Brna nebo kamkoli jinam, dopravní dostupnost je tu opravdu výborná.

K tomu prostorná koupelna, technická místnost a vlastní plynový kotel, takže si sami určujete,
kdy a jak topíte i ohříváte vodu.

Celý dům je klasický podsklepený cihlový objekt ze 70. let, se třemi podlažími, napojený na veřejný vodovod, kanalizaci, elektřinu i plyn.

Okolí domu je klidné, bez rušivých vlivů, se spoustou zeleně a pohodovým sousedstvím.

Pokud hledáte v Blansku byt s pořádným prostorem, dobrou adresou a atmosférou rodinného bydlení, tenhle mezonet na Mahenové si rozhodně zaslouží vaši pozornost.

Zavolejte mi, domluvíme si prohlídku — rád vám ho osobně ukážu.

Cena
Cena na vyžádání Spočítat hypotéku
Poznámka k ceně
info v RK, včetně poplatků, včetně provize, včetně právního servisu
Aktualizováno
31. 12. 2025
Adresa
Mahenova, Blansko
ID
00051
Stavba
Cihlová
Stav objektu
Velmi dobrý
Patro
3. z 3
Vybaveno
Částečně
Druh objektu
V bloku
Lokalita objektu
Klidná část obce
Vlastnictví
Osobní
Užitná plocha
102 m2
Třída energetické náročnosti
G - Mimořádně nehospodárná
Elektřina
230V
Plyn
Plynovod
Odpad
Veřejná kanalizace
Topení
Ústřední plynové
Doprava
Vlak, Silnice, MHD, Autobus
Voda
Místní zdroj vody
Sklep
Výtah

Máte zájem o tuto nemovitost?

Tímto, v souladu s nařízením Evropského parlamentu a Rady (EU) 2016/679, v platném znění, prohlašuji, že mi je alespoň 16 let a uděluji tak svůj souhlas se zpracováním zadaných údajů (jméno, telefon, e-mail, ip adresa) společnosti B3 Technology, s.r.o., IČ: 07330600, se sídlem Novostavby 126/23, 435 11 Lom (správce dat), za účelem předání dotazu z tohoto formuláře Vámi vybranému inzerentovi a zpětného kontaktování mé osoby. Osobní údaje bude správce zpracovávat manuálně i automaticky přímo prostřednictvím svých zaměstnanců. Informace předané tímto formulářem budou uloženy v databázi správce maximálně po dobu 10 let. Odvolání souhlasu s uložením a zpracováním poskytnutých dat lze e-mailem na info@realitymat.cz. V případě podezření na neoprávněné použití Vámi poskytnutých údajů máte právo předat podnět k šetření Úřadu pro ochranu osobních údajů. Více informací
Chystáte se prodat nemovitost?
Pomůžeme Vám!

Kontakt

Jiří Korčák

Jiří Korčák

Přihlášení k odběru

Nenechte si ujít nejnovější nabídky prodeje bytů 3+1 v Blansku.

Tipy Realitymatu

Podobné nabídky