Prodej bytu 3+1, Havířov - Šumbark, Mládí, 68 m2

Mládí, Havířov, Šumbark


2 600 000 Kč
HYPOTÉKA od 11 620 Kč /měs.

(včetně provize RK)


Regionální dodavatelé v Havířově

Popis

Byt 3+1 s garáží v Havířově – místo, kde začíná váš nový domov

Hledáte bydlení, kde se budete cítit opravdu doma? Místo, kam se budete rádi vracet po práci, kde děti najdou bezpečný prostor pro hraní a vy klid pro odpočinek?
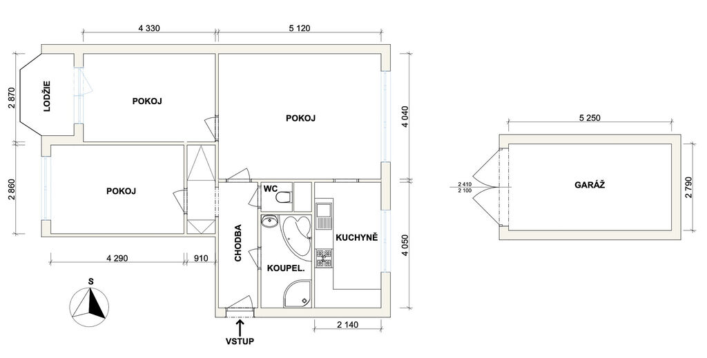
Tento družstevní byt 3+1 o velikosti 68,04 m² s družstevní garáží přímo v domě (18,6 m²) může být právě tím.

Nachází se ve 3. patře nízké třípatrové zástavby, obklopené zelení a klidem.
Byt prošel před lety kompletní rekonstrukcí, díky které nabízí zděné jádro, elektroinstalaci v mědi a rozvody kabelem UTP v každém pokoji – tedy dobrý základ pro moderní rodinné bydlení.
Kuchyně s rohovou linkou a vestavěnými spotřebiči působí útulně a funkčně, a prostorná prosklená lodžie vás doslova zve k ranní kávě s výhledem do přírody.
Byt je v udržovaném stavu a čeká na nové majitele, kteří mu vtisknou svůj vlastní styl a nový život.

Velkým bonusem je garáž přímo v domě, vybavená elektřinou a podružným elektroměrem.

Lokalita vás nadchne svou pohodou i dostupností. Jen pár kroků od domu je autobusová zastávka, přes cestu nové nákupní středisko, a škola i školka jsou v bezpečné docházkové vzdálenosti.
Pro víkendové procházky nebo sportování je tu lesopark za rohem.
Ať už pracujete v Havířově, Ostravě, Petřvaldu nebo Karviné, oceníte skvělou dopravní dostupnost – všude jste za pár minut.

Tento byt nabízí ideální kombinaci – klidné prostředí, pohodlné parkování, a možnost vytvořit si domov podle svých představ.
Zavolejte mi a domluvte si prohlídku. Ráda vás bytem provedu a ukážu vám, jak příjemné může být bydlení právě tady.
A pokud budete potřebovat pomoc s vyřízením financování, ráda vše zajistím.

velikost bytu: 68,04 m²

velikost garáže: 18,6 m²

měsíční náklady byt: 6.524,-Kč

měsíční náklady garáž: 694,-Kč

Cena
2 600 000 Kč Spočítat hypotéku
Poznámka k ceně
včetně provize RK
Aktualizováno
10. 11. 2025
Adresa
Mládí, Havířov, Šumbark
ID
1025
Stavba
Panelová
Stav objektu
Dobrý
Vybaveno
Ne
Lokalita objektu
Okraj obce
Vlastnictví
Družstevní
Užitná plocha
68 m2
Třída energetické náročnosti
D - Méně úsporná

Máte zájem o tuto nemovitost?

Tímto, v souladu s nařízením Evropského parlamentu a Rady (EU) 2016/679, v platném znění, prohlašuji, že mi je alespoň 16 let a uděluji tak svůj souhlas se zpracováním zadaných údajů (jméno, telefon, e-mail, ip adresa) společnosti B3 Technology, s.r.o., IČ: 07330600, se sídlem Novostavby 126/23, 435 11 Lom (správce dat), za účelem předání dotazu z tohoto formuláře Vámi vybranému inzerentovi a zpětného kontaktování mé osoby. Osobní údaje bude správce zpracovávat manuálně i automaticky přímo prostřednictvím svých zaměstnanců. Informace předané tímto formulářem budou uloženy v databázi správce maximálně po dobu 10 let. Odvolání souhlasu s uložením a zpracováním poskytnutých dat lze e-mailem na info@realitymat.cz. V případě podezření na neoprávněné použití Vámi poskytnutých údajů máte právo předat podnět k šetření Úřadu pro ochranu osobních údajů. Více informací
Chystáte se prodat nemovitost?
Pomůžeme Vám!

Kontakt

Ing. Renáta Lokosová

Ing. Renáta Lokosová

Přihlášení k odběru

Nenechte si ujít nejnovější nabídky prodeje bytů 3+1 v Havířově.

Podobné nabídky