Prodej rodinného domu, Svojetice, Stará cesta, 260 m2 (ID: 1999233)

Stará cesta, Svojetice


5 500 000 Kč /za nemovitost
HYPOTÉKA od 24 582 Kč /měs.
Regionální dodavatelé v Svojeticích

Popis

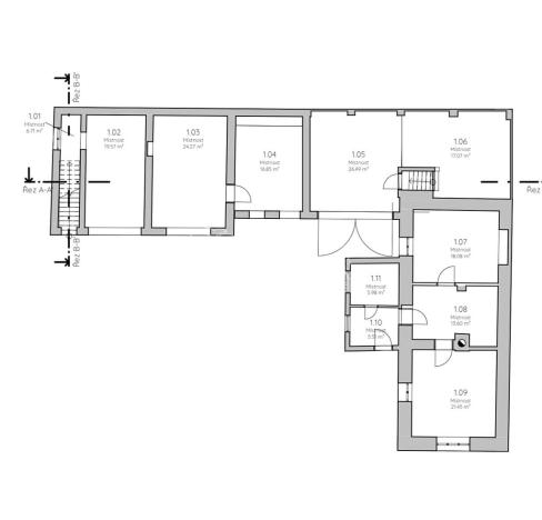
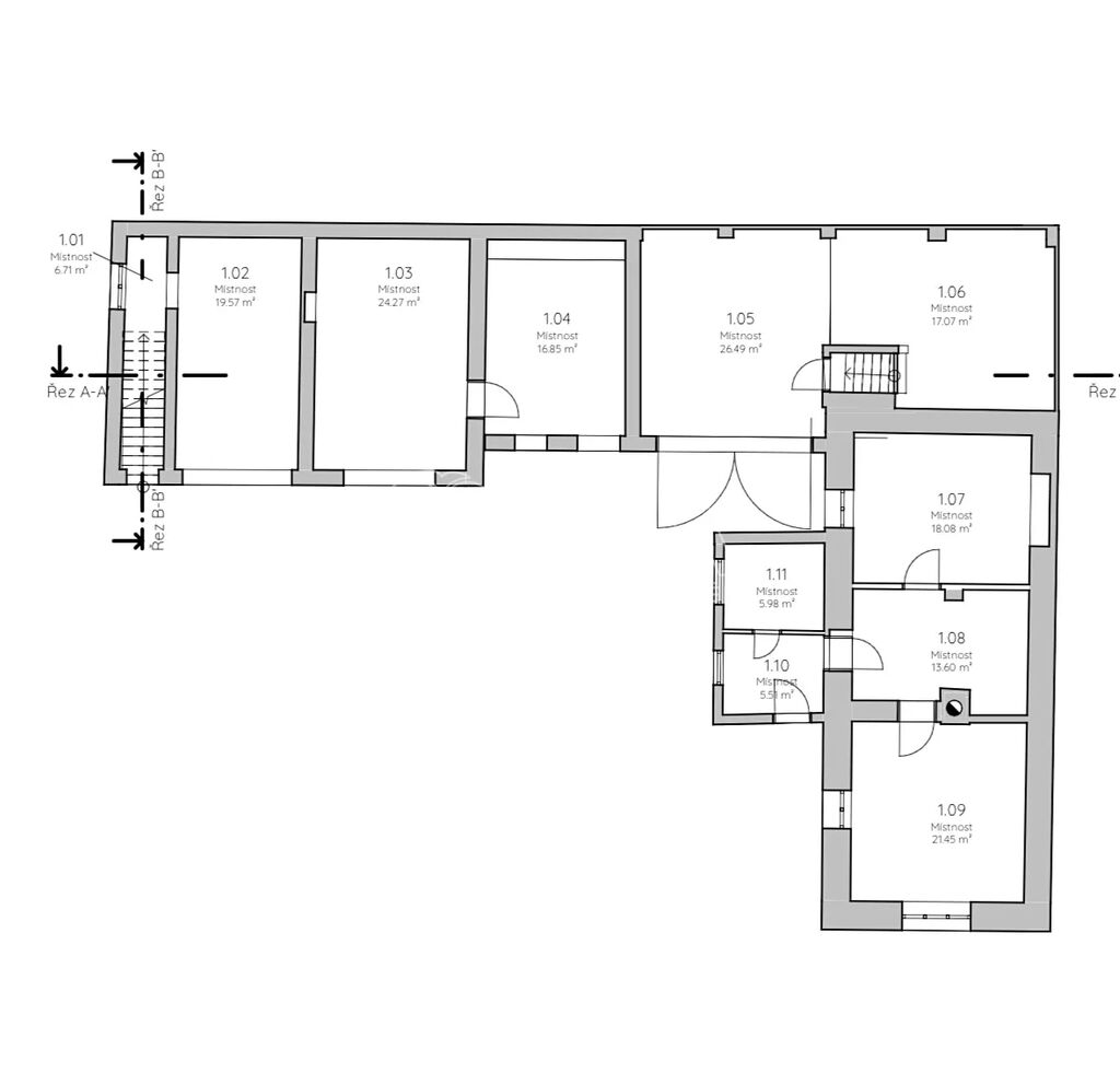
Nabízíme k prodeji rodinný dům v příjemné obci Svojetice na adrese Ulice Stará cesta Č. p. 60. Tento samostatný dům je postaven na pozemku o rozloze 526 m² a jeho zastavěná plocha činí 260 m², která poskytuje možnost rekonstrukce k více bytovým jednotkám.

Dům je patrový, přičemž se nachází ve stavu před rekonstrukcí, čímž poskytuje novému majiteli široké možnosti využití. Je zde potenciál pro rekonstrukci k bydlení, což by z něj učinilo pohodlný rodinný dům. Další možností je kombinace bydlení a podnikání, což může být ideální pro ty, kteří hledají prostor pro vlastní firmu v rodinném prostředí.

Nemovitost může být také kompletně rekonstruována s částečnou demolicí stávajících prostor, což by umožnilo přizpůsobit objekt moderním standardům a požadavkům. Je zde také možnost kompletní demolice a nové výstavby, což může zahrnovat i výstavbu nových jednotek. Tento potenciál lze využít pro developerské projekty a my můžeme aktivně pomoci s touto realizací.

Další dosažitelnou variantou je výstavba dvojdomu, která by umožnila vícegenerační bydlení nebo vybudování investičních jednotek, čímž se z nemovitosti stává výhodná investice s potenciálem pro trvalý výnos.

Dům je vybaven základními inženýrskými sítěmi, včetně připojení na vodovod a retenční nádrže na dešťovou vodu. Odpad je řešen septikem a jímkou. Topení je zajištěno radiátory spojenými s elektrickým kotlem. Pozemek navíc zahrnuje stodolu, která může sloužit jako úložný prostor nebo místo pro hobby aktivity.

Vynikající dostupnost zajišťuje blízkost silnice a autobusové dopravy, což usnadňuje spojení s okolními oblastmi a městem. Tato lokalita slibuje nejen klidné bydlení, ale i potenciál pro rozvoj a zhodnocení investice.

V případě zájmu o prohlídku nás neváhejte kontaktovat.

Cena
5 500 000 Kč /za nemovitost Spočítat hypotéku
Aktualizováno
8. 11. 2025
Adresa
Stará cesta, Svojetice
ID
16489
Stavba
Smíšená
Stav objektu
Před rekonstrukcí
Vybaveno
Ne
Druh objektu
Samostatný
Lokalita objektu
Centrum obce
Užitná plocha
260 m2
Zastavěná plocha
260 m2
Plocha pozemku
526 m2
Třída energetické náročnosti
G - Mimořádně nehospodárná
Odpad
Septik, Jímka
Komunikace
Asfaltová
Doprava
Silnice, Autobus
Voda
Vodovod, Studna
Topné těleso
Radiátory
Zdroj topení
Elektrokotel

Máte zájem o tuto nemovitost?

Tímto, v souladu s nařízením Evropského parlamentu a Rady (EU) 2016/679, v platném znění, prohlašuji, že mi je alespoň 16 let a uděluji tak svůj souhlas se zpracováním zadaných údajů (jméno, telefon, e-mail, ip adresa) společnosti B3 Technology, s.r.o., IČ: 07330600, se sídlem Novostavby 126/23, 435 11 Lom (správce dat), za účelem předání dotazu z tohoto formuláře Vámi vybranému inzerentovi a zpětného kontaktování mé osoby. Osobní údaje bude správce zpracovávat manuálně i automaticky přímo prostřednictvím svých zaměstnanců. Informace předané tímto formulářem budou uloženy v databázi správce maximálně po dobu 10 let. Odvolání souhlasu s uložením a zpracováním poskytnutých dat lze e-mailem na info@realitymat.cz. V případě podezření na neoprávněné použití Vámi poskytnutých údajů máte právo předat podnět k šetření Úřadu pro ochranu osobních údajů. Více informací
Chystáte se prodat nemovitost?
Pomůžeme Vám!

Kontakt

Jana Štěpánová

Jana Štěpánová

Přihlášení k odběru

Nenechte si ujít nejnovější nabídky prodeje rodinných domů v Svojeticích.

Podobné nabídky