Prodej bytu 2+kk, Mladé Buky, 44 m2

Mladé Buky


4 390 000 Kč /za nemovitost
HYPOTÉKA od 19 621 Kč /měs.

(včetně poplatků, včetně provize, včetně právního servisu)


Regionální dodavatelé v Mladých Bukách

Popis

Nabízím vám k prodeji kompletně zrekonstruovaný apartmán 2+kk v malebné horské obci Mladé Buky. Nemovitost se nachází v klidné části obce s výbornou dostupností do Trutnova i do Pece pod Sněžkou. V bezprostřední blízkosti cca 200 metrů najdete ski areál, golfové hřiště, bobovou dráhu nebo třeba dětský park Hříčky Buky, dříve Baldův Svět. Vzhledem k typu nemovitosti i ke svému umístění je ideální jak pro vlastní bydlení, tak jako investiční nemovitost pro krátkodobé pronájmy s předpokládaným výnosem až 0,5 mil. ročně.

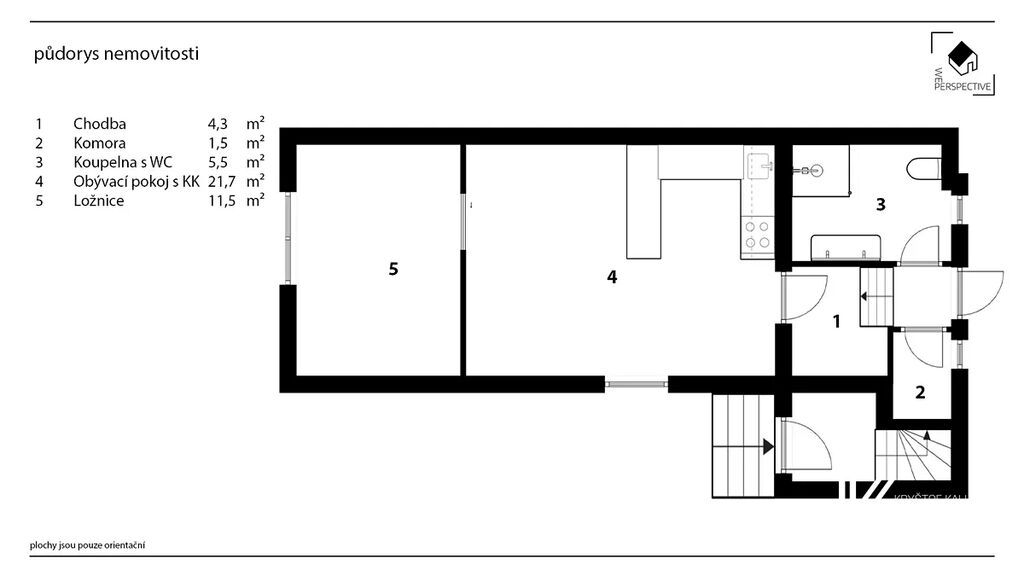
Apartmán o výměře 44,5 m2 se nachází v domě se dvěma jednotkami a je zcela samostatný, má vlastní přímý vchod ze zadní části budovy. Náleží k němu navíc dvě parkovací stání na zadním dvoře a úložná kóje, vhodná jako lyžárna či kolárna.

Dispozičně se jedná o 2+kk umístěné v 1. NP domu. Za vstupem se nachází technická místnost a koupelna. Hlavní obytný prostor je situovaný o pár schodů výše, kde se nachází kuchyňský kout spojený s jídelní a obývací částí. Zadní část místnosti je opět oddělena designovými posuvnými dveřmi a poslouží tak jako útulná ložnice.

Vytápění a ohřev vody je zajišťované vlastním elektrickým kotlem. V apartmánu je topení rozvedeno podlahově, v koupelně je navíc topný žebřík. Vodu i odpadní hospodářství zajišťují veřejné sítě. Jedná se o původní cihlovou budovu, která prošla kompletní náročnou rekonstrukcí. Dům je navíc připraven na moderní způsob správy a zabezpečení – majitel při rekonstrukci myslel na budoucí pohodlí. Všechny rozvody a technické přípravy jsou hotové pro instalaci kamerového systému, alarmu, chytré domácnosti i bezkontaktního vydávání klíčů přes kódový zámek. Tato infrastruktura umožňuje pohodlné a bezpečné ovládání domu na dálku, což ocení nejen majitelé využívající nemovitost jako víkendové bydlení, ale především investoři plánující krátkodobé pronájmy. Díky těmto řešením je provoz domu snadný, přehledný a bez nutnosti neustálé osobní přítomnosti.

Tato nemovitost v Mladých Bukách nabízí promyšlené dispoziční řešení, kvalitní rekonstrukci, soukromí, investiční potenciál a výjimečnou polohu v těsné blízkosti přírody, sportovního i rodinného vyžití. Ať už sníte o vlastním bydlení v podhůří Krkonoš, hledáte víkendový únik z města nebo plánujete výnosnou investici, právě jste ji našli.

Přijeďte se sami přesvědčit, co všechno může tento apartmán nabídnout – rád vás nemovitostí osobně provedu.

Cena
4 390 000 Kč /za nemovitost Spočítat hypotéku
Poznámka k ceně
včetně poplatků, včetně provize, včetně právního servisu
Aktualizováno
7. 11. 2025
Adresa
Mladé Buky
ID
00232-1
Stavba
Cihlová
Stav objektu
Velmi dobrý
Patro
1. z 3
Vybaveno
Ne
Lokalita objektu
Klidná část obce
Vlastnictví
Osobní
Užitná plocha
44 m2
Třída energetické náročnosti
F - Velmi nehospodárná
Ukazatel energetické náročnosti
211 kWh/m2 za rok
Elektřina
230V
Odpad
Veřejná kanalizace
Telekomunikace
Internet
Doprava
Dálnice, Silnice, Autobus
Voda
Vodovod
Topné těleso
Podlahové vytápění
Zdroj topení
Elektrokotel
Zdroj teplé vody
Elektrokotel
Sklep
Výtah
Parkování

Máte zájem o tuto nemovitost?

Tímto, v souladu s nařízením Evropského parlamentu a Rady (EU) 2016/679, v platném znění, prohlašuji, že mi je alespoň 16 let a uděluji tak svůj souhlas se zpracováním zadaných údajů (jméno, telefon, e-mail, ip adresa) společnosti B3 Technology, s.r.o., IČ: 07330600, se sídlem Novostavby 126/23, 435 11 Lom (správce dat), za účelem předání dotazu z tohoto formuláře Vámi vybranému inzerentovi a zpětného kontaktování mé osoby. Osobní údaje bude správce zpracovávat manuálně i automaticky přímo prostřednictvím svých zaměstnanců. Informace předané tímto formulářem budou uloženy v databázi správce maximálně po dobu 10 let. Odvolání souhlasu s uložením a zpracováním poskytnutých dat lze e-mailem na info@realitymat.cz. V případě podezření na neoprávněné použití Vámi poskytnutých údajů máte právo předat podnět k šetření Úřadu pro ochranu osobních údajů. Více informací
Chystáte se prodat nemovitost?
Pomůžeme Vám!

Kontakt

Kryštof Kalhous

Kryštof Kalhous

Přihlášení k odběru

Nenechte si ujít nejnovější nabídky prodeje bytů 2+kk v Mladých Bukách.

Podobné nabídky