Prodej rodinného domu, Velké Svatoňovice, 170 m2 (ID: 1997748)

Velké Svatoňovice, Markoušovice


3 950 000 Kč /za nemovitost
HYPOTÉKA od 17 654 Kč /měs.
Regionální dodavatelé v Velkých Svatoňovicích

Popis

Nabízíme k prodeji rodinný dům se zahradou s dispozicí 5+kk, který byl původně projektován jako objekt k rekreaci. Nemovitost se nachází klidné části obce Velké Svatoňovice v katastrálním území Starý Sedloňov (Markoušovická).
Dům byl postaven ze zbořeniště v druhé polovině 80.let. Jedná se o zděnou dvou podlažní budovu, s navazující garáží v rámci domu. Za domem je umístěna další menší stavba o půdorysu 50m2, kde je v přízemí garáž/dílna a hospodářská část, v patře je prostor na umístění například sena. Dům obklopuje zahrada s výměrou 1500m2, přičemž celý pozemek je řádně oplocený. Na zahradě jsou umístěné dvě dřevěné kolny, funkční skleník a rostou zde ovocné stromy (jabloně, třešeň, atd.).
Nemovitost je v současné době v „udržovaném“ stavu s nutností výměny kotle na vytápění a bojleru na ohřev vody – ideální výměna topného systému. A samozřejmostí je modernizace kuchyně a rekonstrukce koupelny. Dům bohužel nebyl v posledních letech příliš opečovávaný.
Dům je vhodný, jak k rekreačním účelům, tak k trvalému bydlení vesnického typu (pěstování ovoce a zeleniny, chování domácích i hospodářských zvířat).
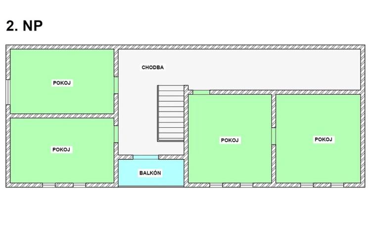
Dispozice: zádveří – vstup do domu na níž navazuje veranda ideální k posezení za deště. V prvním nadzemním podlaží vede středem domu chodba (4m2). Po levé straně je obývací kuchyň (24m2) s funkčními stylovými kachlovými kamny (vaření, vytápění) a na ní navazuje špajz (4m2). Po pravé straně je společenská krbová místnost (16m2), ze které je vstup na verandu. Středem chodby se dostaneme na samostatné WC (1,8m2) a do koupelny (7,7m2), která vyžaduje kompletní rekonstrukci. Z koupelny vedou dveře do skladu paliv (7,3m2) a následně do garáže (21,5m2). V původní části jsou stylové klenuté stropy. Do garáže je též samostatný vjezd. Do druhého nadzemního podlaží vede stylové dřevěné schodiště. Po pravé straně jsou dva samostatné pokoje (15,8m2), z čeho jeden je průchozí (15,8m2), dále je zde úložný prostor-šikmina (13m2). Po levé straně je krásná stylová ložnice (15m2) a další pokoj (15,3m2). Z podesty je vstup na lodžii. Téměř všechny obytné místnosti i schodiště jsou obložené dřevem (modřín). Jako podlahové krytiny jsou je použit beton, PVC, dlažba a teraso. Dům není podsklepený, má pouze malý sklep na potraviny a je zde umístěn vodoměr.
Technický popis: Rodinný dům postavený v roce 1985 je postavený na betonových pasech. V době výstavby již byla provedena izolace proti zemní vlhkosti (IPA). Dům je zděný z cihel, stropní konstrukce jsou z větší části klenbové s ocelovými nosníky, v jedné části domu jsou stropy klasické dřevěné trámové. Střešní konstrukce je klasická dřevěná z krokví s konstrukčními prvky z mansardové střechy. Díky tomu jsou v podkroví klasická okna namísto střešních oken. Jako střešní krytina jsou použité eternitové šablony v kombinaci s plechem. Okna i dveře jsou ze dřeva a fasáda není zateplená. Zateplen je pouze strop v podkroví (z dnešního pohledu nedostatečné).
Zdrojem tepla je kotel na uhlí v kotelně a kachlová kamna v obývacím pokoji. Oba komíny byly zrekonstruovány v roce 2013. Kotel na uhlí je stejně jako bojler na ohřev teplé vody z dnešního pohledu na energetickou náročnost budov a emise již nedostačující. Jak kotel, tak bojler jsou v současné době nefunkční. V domě jsou instalovány plechové radiátory. (rozvod z kotle)
Dům je napojený na veřejný vodovod, vlastní septik a veřejný rozvod elektřiny. Elektřina v domě je již v mědi. Rozvody topení jsou částečně zrekonstruovány v mědi, ostatní rozvody jsou původní.

Měsíční náklady: vodné čtvrtletně dle faktury, záloha na elektřinu dle spotřeby a počtu osob.

Inženýrské sítě: el. - 230/400 V, voda – veřejná (kojenecká voda), odpady – septik (komorový s přepadem), vytápění kotel na TP, ohřev vody bojler.

Příslušenství: zpevněné plochy, garáž v rámci domu, garáž s dílnou, skleník, dřevěné kolny, opocený pozemek/zahrada. Parkování jednak v garáži, tak na pozemku.

PENB se v současné době vyhotovuje, prozatím tedy uvádíme G.

Cena
3 950 000 Kč /za nemovitost Spočítat hypotéku
Aktualizováno
6. 11. 2025
Adresa
Velké Svatoňovice, Markoušovice
ID
01RD2529
Stavba
Cihlová
Stav objektu
Dobrý
Užitná plocha
170 m2
Plocha pozemku
1704 m2
Garáž
Sklep
Parkování

Máte zájem o tuto nemovitost?

Tímto, v souladu s nařízením Evropského parlamentu a Rady (EU) 2016/679, v platném znění, prohlašuji, že mi je alespoň 16 let a uděluji tak svůj souhlas se zpracováním zadaných údajů (jméno, telefon, e-mail, ip adresa) společnosti B3 Technology, s.r.o., IČ: 07330600, se sídlem Novostavby 126/23, 435 11 Lom (správce dat), za účelem předání dotazu z tohoto formuláře Vámi vybranému inzerentovi a zpětného kontaktování mé osoby. Osobní údaje bude správce zpracovávat manuálně i automaticky přímo prostřednictvím svých zaměstnanců. Informace předané tímto formulářem budou uloženy v databázi správce maximálně po dobu 10 let. Odvolání souhlasu s uložením a zpracováním poskytnutých dat lze e-mailem na info@realitymat.cz. V případě podezření na neoprávněné použití Vámi poskytnutých údajů máte právo předat podnět k šetření Úřadu pro ochranu osobních údajů. Více informací
Chystáte se prodat nemovitost?
Pomůžeme Vám!

Kontakt

Ing. Petr Kotek

Ing. Petr Kotek

Přihlášení k odběru

Nenechte si ujít nejnovější nabídky prodeje rodinných domů v Velkých Svatoňovicích.

Podobné nabídky