Prodej bytu 2+kk, Židlochovice, Masarykova, 62 m2

Masarykova, Židlochovice


6 720 000 Kč /za nemovitost
HYPOTÉKA od 30 034 Kč /měs.
Regionální dodavatelé v Židlochovicích

Popis

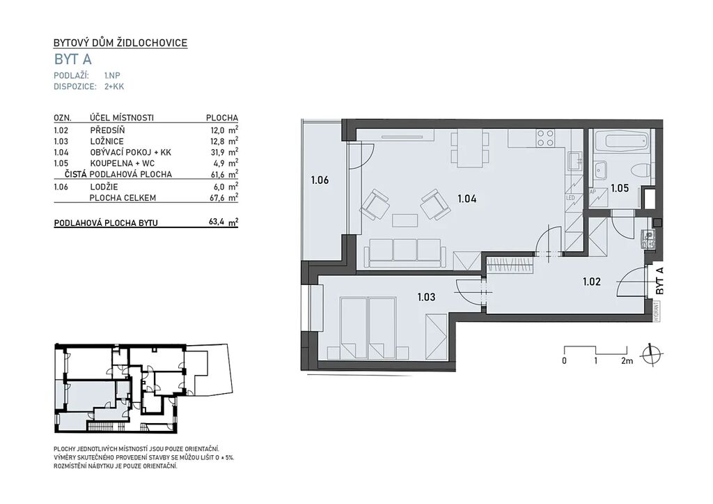
Nabízímek prodeji byt kategorie 2+kk o velikosti 61,6 m2 + 6,0 m2 lodžie. Byt se nachází v novostavbě bytového domu na ulici Masarykova v Židlochovicích. V domě, který bude mít tři nadzemní podlaží, bude vybudováno celkem 12 bytových jednotek o velikosti 1+kk až 3+kk s balkony, terasami a zahrádkou, dva vinné sklepy a dvě garáže. Dále budou ve dvorní části vystavěna parkovací stání pro 10 automobilů. Každý byt bude vytápěn samostatným závěsným kondenzačním plynovým kotlem, který zajistí také přípravu teplé vody.
K bytu je možné koupit sklep, garáž, parkovací stání pro automobil a parkovací stání pro motocykl.
Energetický štítek bude na stupnici „B“ velmi úsporný.
Prodej nemovitostí je určen do osobního vlastnictví.
Pořízení bytu v tomto domě doporučujeme, jak k trvalému bydlení, tak na investici.
K financování koupě bytu je možné využít také hypotéční úvěr.

Cena
6 720 000 Kč /za nemovitost Spočítat hypotéku
Aktualizováno
4. 11. 2025
Adresa
Masarykova, Židlochovice
Stavba
Cihlová
Stav objektu
Projekt
Patro
1.
Vlastnictví
Osobní
Užitná plocha
62 m2
Lodžie

Máte zájem o tuto nemovitost?

Tímto, v souladu s nařízením Evropského parlamentu a Rady (EU) 2016/679, v platném znění, prohlašuji, že mi je alespoň 16 let a uděluji tak svůj souhlas se zpracováním zadaných údajů (jméno, telefon, e-mail, ip adresa) společnosti B3 Technology, s.r.o., IČ: 07330600, se sídlem Novostavby 126/23, 435 11 Lom (správce dat), za účelem předání dotazu z tohoto formuláře Vámi vybranému inzerentovi a zpětného kontaktování mé osoby. Osobní údaje bude správce zpracovávat manuálně i automaticky přímo prostřednictvím svých zaměstnanců. Informace předané tímto formulářem budou uloženy v databázi správce maximálně po dobu 10 let. Odvolání souhlasu s uložením a zpracováním poskytnutých dat lze e-mailem na info@realitymat.cz. V případě podezření na neoprávněné použití Vámi poskytnutých údajů máte právo předat podnět k šetření Úřadu pro ochranu osobních údajů. Více informací
Chystáte se prodat nemovitost?
Pomůžeme Vám!

Kontakt

Pavla Kropáčová

Pavla Kropáčová

Přihlášení k odběru

Nenechte si ujít nejnovější nabídky prodeje bytů 2+kk v Židlochovicích.

Podobné nabídky