Prodej rodinného domu, Svratka, Libušina, 135 m2 (ID: 1993309)

Libušina, Svratka


Cena na vyžádání /za nemovitost
Získejte výhodnou HYPOTÉKU

(včetně právních nákladů a provize)


Regionální dodavatelé v Svratce

Popis

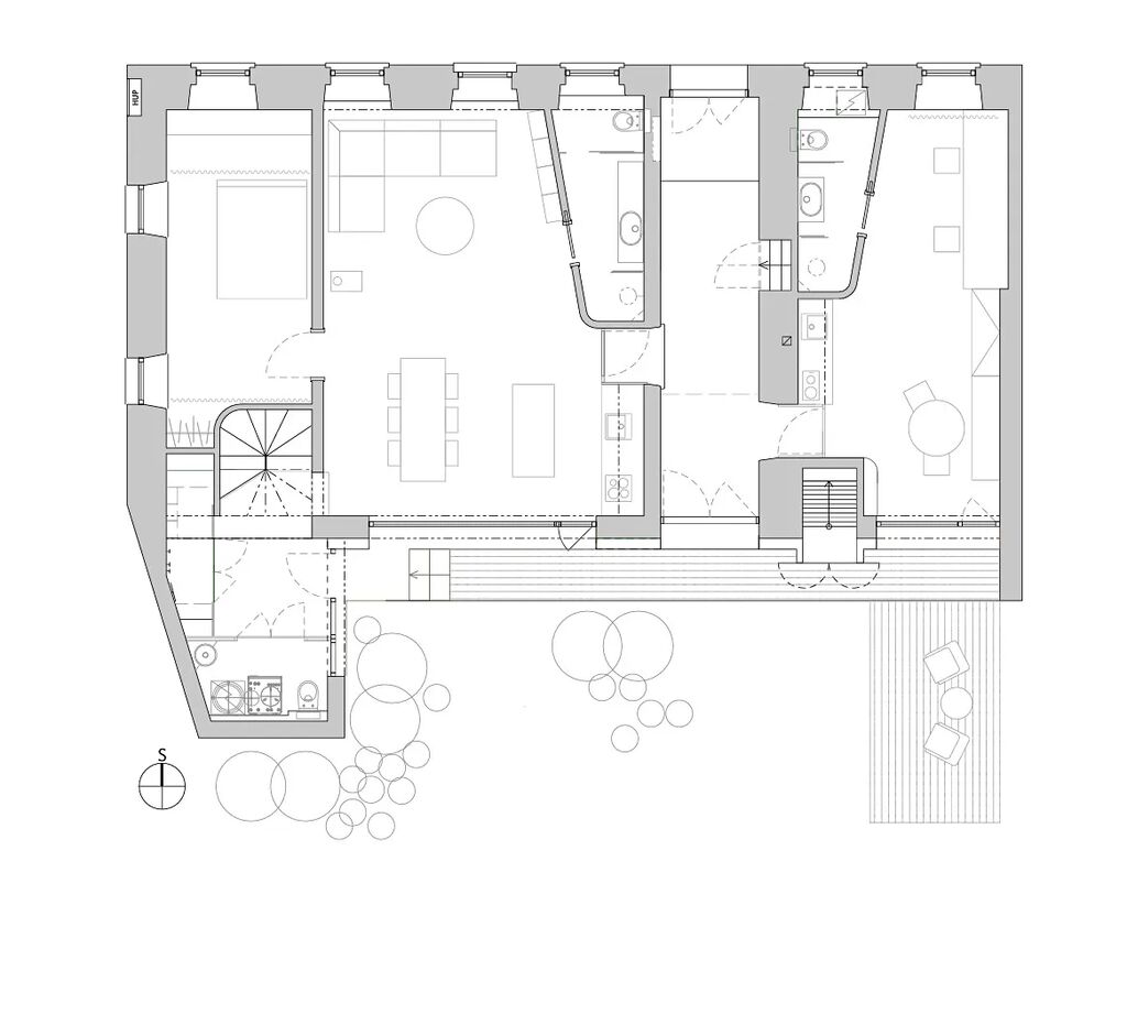
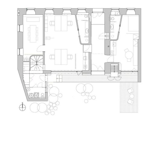
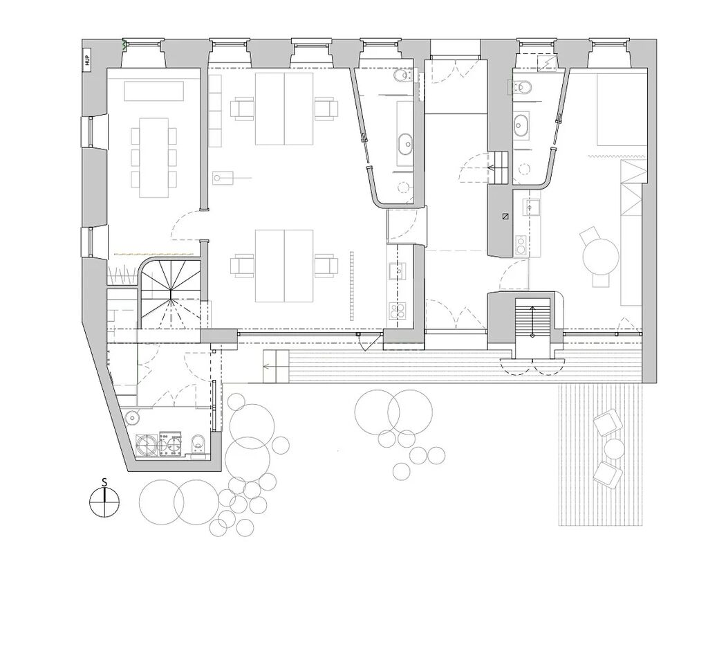
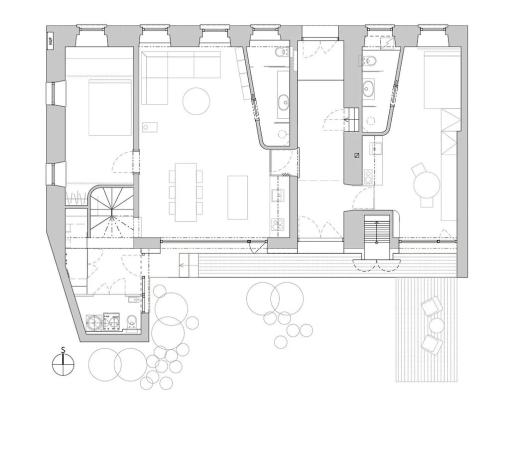
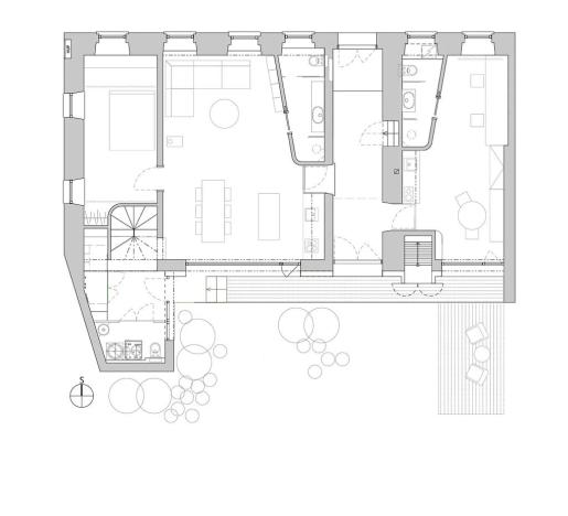
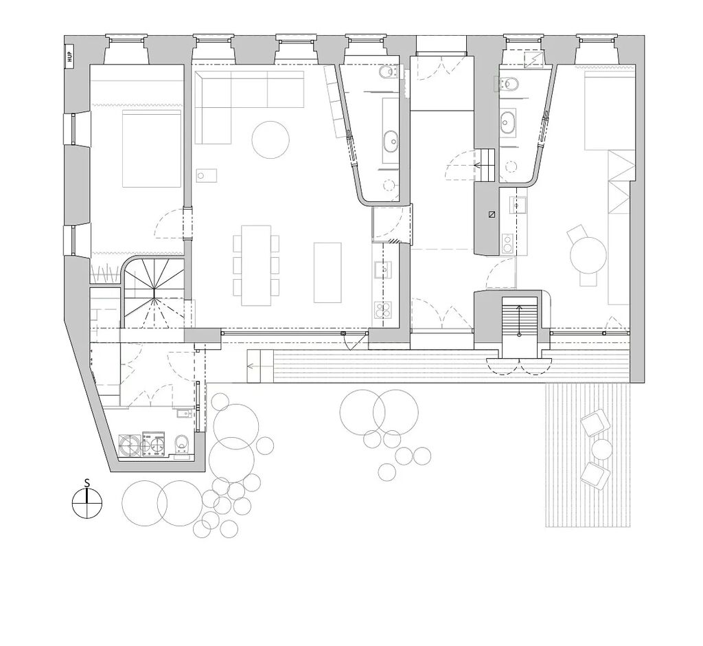
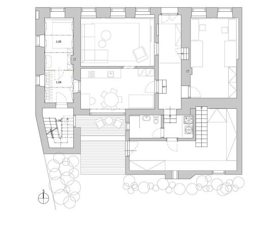
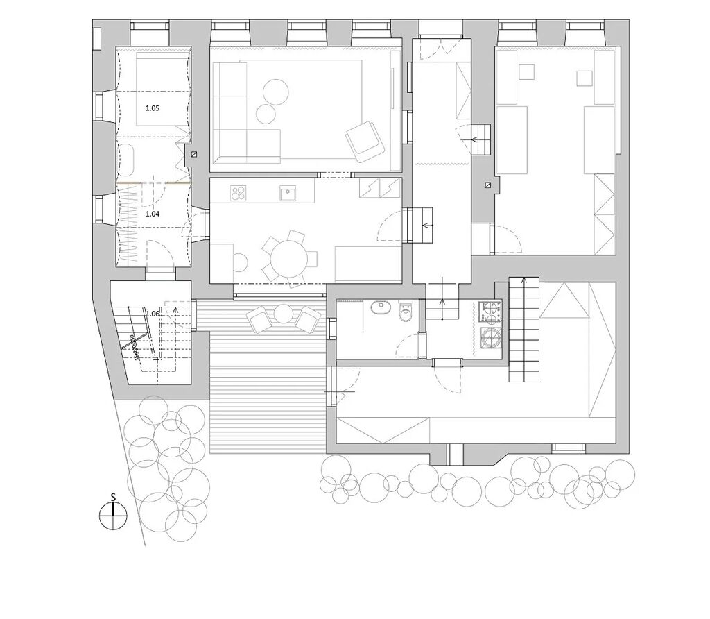
ZNOVU V NABÍDCE! RD Svratka, ul. Libušina,
zajímavý historický domek s potenciálem. Na trvalé bydlení, rekreaci nebo pronájem.

Zastavěná plocha 185m2, plocha pozemku 335m2, na pozemek, zahradu orientovanou na Jih je vjezd a vstup z boční ulice.

Dům je převážně z kamenného zdiva, je připojen na všechny inženýrské sítě: elektřina, plyn, voda, kanalizace (splašková a dešťová), studna ve sklepě. Dům lze nenáročnou rekonstrukcí zprovoznit.

Stávající dispozice 4+1, vstupní chodba 13m2, pokoje 22 + 23 + 9, podkrovní pokoj 12 m2, kuchyně 18m2, chodba 6+15m2, koupelna 4m2, WC 2m2, dílna 10m2, sklep 9m2, na zahradě kůlna.

Možné využití domu: rekreační chalupa, pronájem apartmánů, rodinný dům, sídlo firmy.

Je vydáno platné stavební povolení na stavební úpravy domu pro podnikatelské účely (kanceláře, sklad, studio) se 4 parkovacími místy. Dále je zpracován návrh několika variant účelu využití: RD s kanceláří/provozovnou, kanceláře s možností přespání/bydlení, apartmány k pronájmu. Projektová dokumentace v RK.
K dispozici a prohlídkám ihned
Cena dohodou

Cena
Cena na vyžádání Spočítat hypotéku
Poznámka k ceně
včetně právních nákladů a provize
Aktualizováno
3. 11. 2025
Adresa
Libušina, Svratka
Stavba
Smíšená
Stav objektu
Před rekonstrukcí
Užitná plocha
135 m2
Zastavěná plocha
185 m2
Plocha pozemku
335 m2
Elektřina
230V
Plyn
Plynovod
Odpad
Veřejná kanalizace
Voda
Vodovod, Studna
Sklep
Parkování

Máte zájem o tuto nemovitost?

Tímto, v souladu s nařízením Evropského parlamentu a Rady (EU) 2016/679, v platném znění, prohlašuji, že mi je alespoň 16 let a uděluji tak svůj souhlas se zpracováním zadaných údajů (jméno, telefon, e-mail, ip adresa) společnosti B3 Technology, s.r.o., IČ: 07330600, se sídlem Novostavby 126/23, 435 11 Lom (správce dat), za účelem předání dotazu z tohoto formuláře Vámi vybranému inzerentovi a zpětného kontaktování mé osoby. Osobní údaje bude správce zpracovávat manuálně i automaticky přímo prostřednictvím svých zaměstnanců. Informace předané tímto formulářem budou uloženy v databázi správce maximálně po dobu 10 let. Odvolání souhlasu s uložením a zpracováním poskytnutých dat lze e-mailem na info@realitymat.cz. V případě podezření na neoprávněné použití Vámi poskytnutých údajů máte právo předat podnět k šetření Úřadu pro ochranu osobních údajů. Více informací
Chystáte se prodat nemovitost?
Pomůžeme Vám!

Kontakt

Kamila Michnová

Kamila Michnová

Přihlášení k odběru

Nenechte si ujít nejnovější nabídky prodeje rodinných domů v Svratce.

Podobné nabídky