Pronájem bytu 3+kk, Praha - Libeň, Bedřichovská, 66 m2

Bedřichovská, Libeň - Praha 8


24 900 Kč /za měsíc
Získejte výhodnou HYPOTÉKU

(vratná jistota, zúčtovatelné zálohy 8.764,- Kč, poplatek za podnájem, internet v ceně)


Regionální dodavatelé v Praze 8

Stěhovací služby

Výkup a prodej starého nábytku

Popis

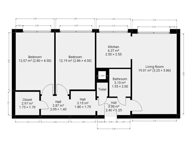
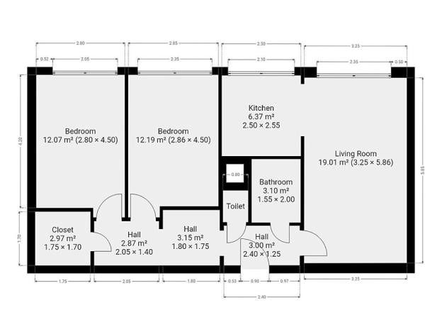
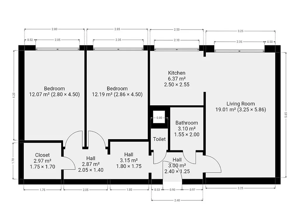
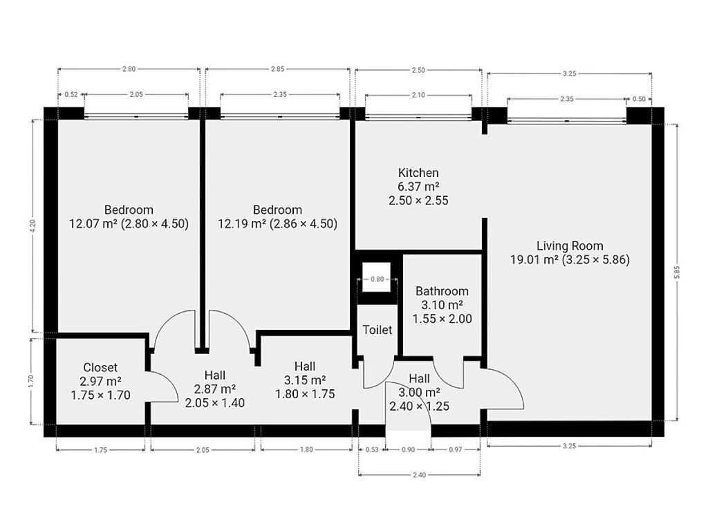
K dlouhodobému podnájmu nabízíme krásný byt o dispozici 3+kk v klidné lokalitě Praha 8 - Libeň. Byt o celkové výměře 66 m2 se nachází v 8. patře panelového domu s výtahem. K bytu patří i vnitřní a venkovní komora a rezidentům je k dispozici také kolárna.

Byt se nabízí částečně vybavený (dle fotografií). Kuchyně disponuje lednicí s mrazákem, myčkou, elektrickou troubou, varnou deskou, mikrovlnnou troubou a digestoří. Obývací část je zařízena jídelním stolem s lavicí a 2 židlemi, TV stolkem a knihovnou. Součástí první ložnice je skříň. V druhé ložnici najdeme postel s roštem, noční stolky a skříň. V koupelně je vana, umyvadlo, zrcadlo, koupelnová skříňka a pračka. Toaleta je umístěna samostatně. V předsíni je vestavěná šatní skříň, věšák, zrcadlo a botník.

Bezpečnostní vstupní dveře, podlahy dlažba + plovoucí, plastová okna, vytápění a ohřev vody centrální dálkové, aktivní internetové připojení (zahrnuto v ceně).

V okolí domu najdeme restaurace, hypermarket Kaufland, obchodní dům Ládví, lékárnu, základní a mateřskou školu, dětská hřiště, koupaliště Ládví, poštu, kulturní dům Ládví, lesopark Okrouhlík atd. Pár minut chůze od domu je vzdálena tramvajová a autobusová zastávka Štěpničná a v docházkové vzdálenosti je stanice metra C - Ládví.

Majitel preferuje zájemce bez domácích mazlíčků.

Byt je volný k nastěhování ihned.

Energetická třída: C (úsporná).

Cena
24 900 Kč /za měsíc
Poznámka k ceně
vratná jistota, zúčtovatelné zálohy 8.764,- Kč, poplatek za podnájem, internet v ceně
Aktualizováno
1. 11. 2025
Adresa
Bedřichovská, Libeň - Praha 8
ID
N5863
Stavba
Panelová
Stav objektu
Velmi dobrý
Patro
9. z 12
Vybaveno
Částečně
Typ objektu
Patrový
Lokalita objektu
Klidná část obce
Vlastnictví
Osobní
Užitná plocha
66 m2
Podlahová plocha
66 m2
Třída energetické náročnosti
C - Úsporná
Elektřina
230V
Topení
Ústřední dálkové
Telekomunikace
Internet
Doprava
Vlak, Dálnice, Silnice, MHD, Autobus
Voda
Vodovod
Výtah

Máte zájem o tuto nemovitost?

Tímto, v souladu s nařízením Evropského parlamentu a Rady (EU) 2016/679, v platném znění, prohlašuji, že mi je alespoň 16 let a uděluji tak svůj souhlas se zpracováním zadaných údajů (jméno, telefon, e-mail, ip adresa) společnosti B3 Technology, s.r.o., IČ: 07330600, se sídlem Novostavby 126/23, 435 11 Lom (správce dat), za účelem předání dotazu z tohoto formuláře Vámi vybranému inzerentovi a zpětného kontaktování mé osoby. Osobní údaje bude správce zpracovávat manuálně i automaticky přímo prostřednictvím svých zaměstnanců. Informace předané tímto formulářem budou uloženy v databázi správce maximálně po dobu 10 let. Odvolání souhlasu s uložením a zpracováním poskytnutých dat lze e-mailem na info@realitymat.cz. V případě podezření na neoprávněné použití Vámi poskytnutých údajů máte právo předat podnět k šetření Úřadu pro ochranu osobních údajů. Více informací
Chystáte se prodat nemovitost?
Pomůžeme Vám!

Kontakt

Miloslava Kačerová

Miloslava Kačerová

Přihlášení k odběru

Nenechte si ujít nejnovější nabídky pronájmu bytů 3+kk v Praze 8.

Podobné nabídky