Prodej rodinného domu, Miroslav, Brněnská, 28 m2
Brněnská, Miroslav
(včetně provize RK)
Popis
Nabízím k prodeji rodinný dům v Miroslavi, který čeká na nového majitele s vizí a chutí vytvořit si vlastní domov.
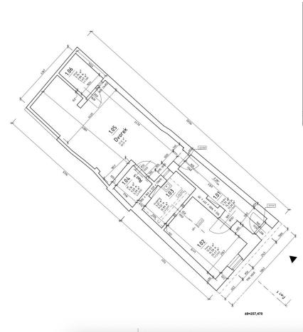
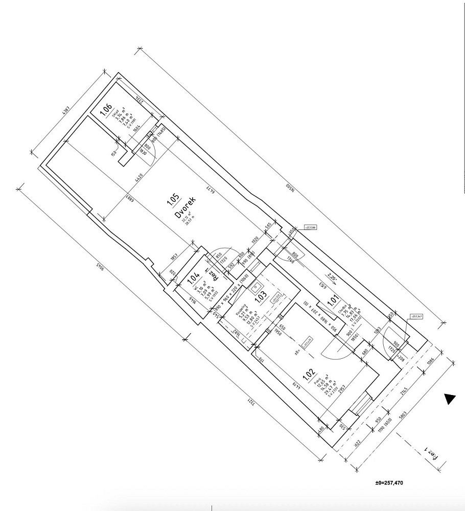
Součástí prodeje je architektonická studie, která rozšiřuje původní užitnou plochu z 28,71 m² na 88,40 m² a proměňuje objekt v moderní open-space rodinný dům se zahrádkou.
Projekt je navržen tak, že k realizaci rekonstrukce postačí pouze ohlášení stavby, bez nutnosti stavebního povolení. K dokončení stavební dokumentace zbývá doplnit stanoviska geologa, statika, hasičů a souhlas sousedů.
Odhadované náklady na rekonstrukci činí přibližně 1 800 000 Kč.
Dům je již napojen na elektřinu, vodovod i kanalizaci. V přiložené galerii naleznete vizualizace a půdorysy finální podoby domu po rekonstrukci.
Lokalita:
Miroslav leží zhruba 30 minut jízdy od Brna a nabízí veškerou občanskou vybavenost – školu, školku, obchody, restaurace i lékaře.
Výborné dopravní spojení vlakem i autobusem zajišťuje pohodlný dojezd do Brna, Znojma i okolních měst.
Klidné prostředí, blízkost vinic a dostatek zeleně dělají z Miroslavi ideální místo pro rodinné bydlení i rekreační dům.
Shrnutí nabídky:
- užitná plocha po rekonstrukci: 88,40 m²
- architektonická studie v ceně
- odhadované náklady: cca 1,8 mil. Kč
- napojeno na elektřinu, vodu, kanalizaci
- pouze ohlášení stavby, bez nutnosti stavebního povolení
- klidná a dobře dostupná lokalita
Máte zájem o více informací nebo osobní prohlídku?
Kontaktujte mě, rád vám vše představím osobně.
Máte zájem o tuto nemovitost?
Prosperity Financial Services a.s.
Pražákova 1008/69, Brno
Pomůžeme Vám!
Pomůžeme Vám!
Kontakt
 
                        Jiří Švec
Přihlášení k odběru
Nenechte si ujít nejnovější nabídky prodeje rodinných domů v Miroslavi.
Podobné nabídky
 
        Prodej rodinného domu, Miroslav - Kašenec, 82 m2
1 990 000 Kč
 
        Prodej rodinného domu, Božice, 81 m2
2 990 000 Kč
 
        Prodej rodinného domu, Skalice, 100 m2
3 680 000 Kč
 
        Prodej rodinného domu, Božice, 76 m2
2 790 000 Kč
 
                                                                                     
                                                                                     
                                                                                     
                                                                                     
                                                                                     
                                                                                     
                                                                                     
                                                                                     
                                                                                     
                                                                                     
                                                                                     
                                                                                     
                                                                                     
                                                                                     
                                                                                     
                                                                                     
                                                                                     
                                                                                     
                                                                                     
                                                                                     
                                                                                     
                                                                                    