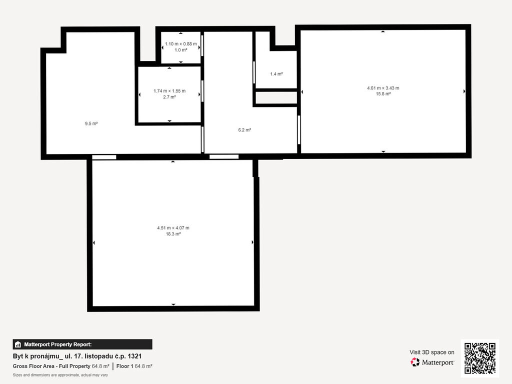
Pronájem bytu 2+1, Žamberk, 17. listopadu, 55 m2

17. listopadu, Žamberk


9 400 Kč /za měsíc
Získejte výhodnou HYPOTÉKU

(+ provize RK)


Regionální dodavatelé v Žamberku

Popis

Dlouhodobý pronájem bytu 2+1 s lodžií v žádané lokalitě Žamberk – Hledáme slušné a spolehlivé nájemníky!
Hledáte klidné a kvalitní bydlení s veškerými výhodami města?
Nabízíme k dlouhodobému pronájmu světlý, prostorný byt 2+1 s orientační výměrou 55 m², který je ideální pro ty, kteří si chtějí vytvořit skutečný domov.
Klíčové vlastnosti bytu a domu:
• Lokalita: Vyhledávaná část města Žamberk s kompletní občanskou vybaveností (obchody, školy, školky, zdravotnická zařízení, sportoviště) v pěší dostupnosti.
• Dispozice: Byt 2+1.
• Stav: Původní, ale velmi dobrý stav, částečně vybavený.
• Relaxace: Prosklená lodžie (balkon) s příjemným výhledem na město a parkoviště.
• Úložné prostory: K bytu náleží sklepní kóje pro uskladnění sezónních věcí.
• Dům: PENB, energetická třída D, revitalizovaný panelový dům s výtahem, 3. patro.
Finanční podmínky:
• Měsíční nájemné: 9 400 Kč
• Zálohy na energie a služby: 4 500 Kč (závislé na počtu osob)
• Vratná kauce: 20 000 Kč (Požadavek na složení kauce je z důvodu zajištění řádného užívání bytu.)
• Provize realitní kanceláři
Náš požadavek na nájemníky:
Hledáme solidní a spolehlivé nájemníky, kteří budou byt obývat s respektem, kteří hledají pohodlí, dostatek místa a chtějí si vytvořit vlastní domov.
Neváhejte, volejte, těším se na prohlídky se všemi zájemci.

Cena
9 400 Kč /za měsíc
Poznámka k ceně
+ provize RK
Aktualizováno
28. 10. 2025
Adresa
17. listopadu, Žamberk
ID
11075
Stavba
Panelová
Stav objektu
Dobrý
Vybaveno
Částečně
Lokalita objektu
Klidná část obce
Vlastnictví
Osobní
Užitná plocha
55 m2
Třída energetické náročnosti
D - Méně úsporná

Máte zájem o tuto nemovitost?

Tímto, v souladu s nařízením Evropského parlamentu a Rady (EU) 2016/679, v platném znění, prohlašuji, že mi je alespoň 16 let a uděluji tak svůj souhlas se zpracováním zadaných údajů (jméno, telefon, e-mail, ip adresa) společnosti B3 Technology, s.r.o., IČ: 07330600, se sídlem Novostavby 126/23, 435 11 Lom (správce dat), za účelem předání dotazu z tohoto formuláře Vámi vybranému inzerentovi a zpětného kontaktování mé osoby. Osobní údaje bude správce zpracovávat manuálně i automaticky přímo prostřednictvím svých zaměstnanců. Informace předané tímto formulářem budou uloženy v databázi správce maximálně po dobu 10 let. Odvolání souhlasu s uložením a zpracováním poskytnutých dat lze e-mailem na info@realitymat.cz. V případě podezření na neoprávněné použití Vámi poskytnutých údajů máte právo předat podnět k šetření Úřadu pro ochranu osobních údajů. Více informací
Chystáte se prodat nemovitost?
Pomůžeme Vám!

Kontakt

Roman Kroulík

Roman Kroulík

Přihlášení k odběru

Nenechte si ujít nejnovější nabídky pronájmu bytů 2+1 v Žamberku.

Podobné nabídky