Pronájem bytu 4+1, Brno, Bzenecká, 85 m2

Bzenecká, Brno, Židenice


21 000 Kč /za měsíc
Získejte výhodnou HYPOTÉKU

(+ 5000,- Kč inkaso)


Regionální dodavatelé v Brně

Popis

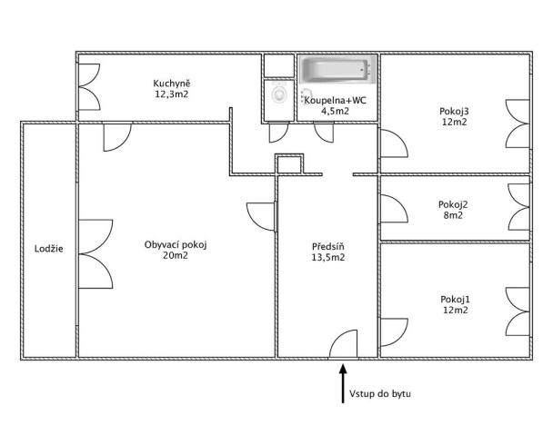
Nabízíme k pronájmu prostorný byt 4+1 ve druhém patře panelového domu, který prošel kompletní rekonstrukcí.

Byt má neprůchozí pokoje, což zajišťuje dostatek soukromí pro všechny obyvatele, a je tak vhodný i pro studenty či spolubydlení.

Z velké předsíně se dostanete do každého pokoje a kuchyně. Ta je navíc plně vybavená a příjemně propojená s největším obývacím pokojem, odkud můžete vyjít na zasklenou lodžii – skvělé místo pro ranní kávu nebo večerní odpočinek.

V okolí najdete vše, co potřebujete – obchody, školy, parky a MHD vás pohodlně dopraví do centra města.

Pokud hledáte pohodlné a praktické bydlení s dostatkem soukromí, které je ihned k nastěhování, ozvěte se!

Cena
21 000 Kč /za měsíc
Poznámka k ceně
+ 5000,- Kč inkaso
Aktualizováno
28. 10. 2025
Adresa
Bzenecká, Brno, Židenice
ID
25102701
Stavba
Panelová
Stav objektu
Po rekonstrukci
Patro
2.
Vlastnictví
Osobní
Užitná plocha
85 m2
Lodžie

Máte zájem o tuto nemovitost?

Tímto, v souladu s nařízením Evropského parlamentu a Rady (EU) 2016/679, v platném znění, prohlašuji, že mi je alespoň 16 let a uděluji tak svůj souhlas se zpracováním zadaných údajů (jméno, telefon, e-mail, ip adresa) společnosti B3 Technology, s.r.o., IČ: 07330600, se sídlem Novostavby 126/23, 435 11 Lom (správce dat), za účelem předání dotazu z tohoto formuláře Vámi vybranému inzerentovi a zpětného kontaktování mé osoby. Osobní údaje bude správce zpracovávat manuálně i automaticky přímo prostřednictvím svých zaměstnanců. Informace předané tímto formulářem budou uloženy v databázi správce maximálně po dobu 10 let. Odvolání souhlasu s uložením a zpracováním poskytnutých dat lze e-mailem na info@realitymat.cz. V případě podezření na neoprávněné použití Vámi poskytnutých údajů máte právo předat podnět k šetření Úřadu pro ochranu osobních údajů. Více informací
Chystáte se prodat nemovitost?
Pomůžeme Vám!

Kontakt

Ilona Peňázová

Ilona Peňázová

Přihlášení k odběru

Nenechte si ujít nejnovější nabídky pronájmu bytů 4+1 v Brně.

Podobné nabídky