Pronájem bytu 2+1, Strakonice - Strakonice II, Dukelská, 58 m2

Dukelská, Strakonice II


10 500 Kč /za měsíc
Získejte výhodnou HYPOTÉKU

(měsíční poplatky záloha na služby 4 000,- Kč)


Regionální dodavatelé v Strakonicích

Popis

Nabízíme k pronájmu novostavbu podkrovního bytu 2+1 o výměře 58,2 m²
Byt se nachází ve 4. nadzemním podlaží bytového domu v centru Strakonic. Díky své poloze nabízí pohodlné bydlení v dosahu všech služeb — mateřské i základní školy, zdravotnického zařízení, obchodů a také vlakového a autobusového nádraží.
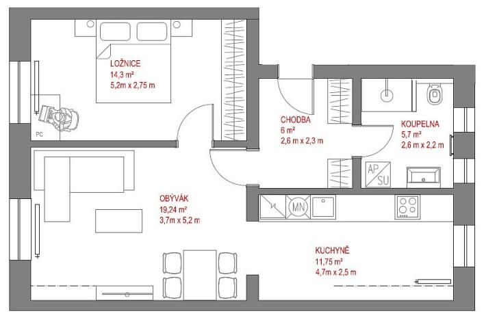
Dispozice bytu:
kuchyně – 11,7 m², obývací pokoj – 19,1 m², ložnice – 14,9 m², koupelna s WC – 6,2 m², předsíň – 6,3 m²
Celková podlahová plocha: 58,2 m²
K bytu náleží také sklepní kóje.
Vybavení a standard bytu:
Byt je vybaven vstupními protipožárními dveřmi s ocelovou zárubní a bezpečnostním kováním. Okna obývacího pokoje a ložnice směřují na jih, kuchyně a koupelna jsou orientovány na sever do klidného vnitrobloku.
Interiérové dveře jsou bezfalcové s obložkovými zárubněmi. WC je odvětráváno otevíravým oknem.
Součástí bytu je kuchyňská linka s vestavěnými spotřebiči Electrolux (varná deska, trouba, mikrovlnná trouba, lednice a myčka).
Podlahy jsou laminátové (mimo koupelnu a WC), v koupelně a na WC je keramický obklad a dlažba v matném provedení. Koupelna nabízí sprchový kout s nerezovým žlabem, přípravu pro pračku a sušičku a topný žebřík pro vyšší komfort. Závěsné WC usnadňuje údržbu.
Díky nadstandardnímu zateplení má byt nízké provozní náklady a příjemné klima i v létě. Dům je napojen na vlastní výměníkovou stanici Teplárny Strakonice – zajištěno teplovodní vytápění i ohřev TUV. V bytě jsou instalovány deskové radiátory a připraveno připojení na internet.
Nájemné 10 500,- Kč, záloha na služby 4 000,- Kč, kauce 21 000,- Kč, provize RK 10 500,- Kč

Více informací vám rádi poskytneme v RK Ciao…Reality, Strakonice, tel.: 736 643 882

Cena
10 500 Kč /za měsíc
Poznámka k ceně
měsíční poplatky záloha na služby 4 000,- Kč
Aktualizováno
27. 10. 2025
Adresa
Dukelská, Strakonice II
ID
Dukelská 337 16
Stav objektu
Novostavba
Vybaveno
Částečně
Lokalita objektu
Centrum obce
Vlastnictví
Osobní
Užitná plocha
58 m2
Třída energetické náročnosti
B - Velmi úsporná

Máte zájem o tuto nemovitost?

Tímto, v souladu s nařízením Evropského parlamentu a Rady (EU) 2016/679, v platném znění, prohlašuji, že mi je alespoň 16 let a uděluji tak svůj souhlas se zpracováním zadaných údajů (jméno, telefon, e-mail, ip adresa) společnosti B3 Technology, s.r.o., IČ: 07330600, se sídlem Novostavby 126/23, 435 11 Lom (správce dat), za účelem předání dotazu z tohoto formuláře Vámi vybranému inzerentovi a zpětného kontaktování mé osoby. Osobní údaje bude správce zpracovávat manuálně i automaticky přímo prostřednictvím svých zaměstnanců. Informace předané tímto formulářem budou uloženy v databázi správce maximálně po dobu 10 let. Odvolání souhlasu s uložením a zpracováním poskytnutých dat lze e-mailem na info@realitymat.cz. V případě podezření na neoprávněné použití Vámi poskytnutých údajů máte právo předat podnět k šetření Úřadu pro ochranu osobních údajů. Více informací
Chystáte se prodat nemovitost?
Pomůžeme Vám!

Kontakt

Ing. Miroslav Kučera MBA

Ing. Miroslav Kučera MBA

Přihlášení k odběru

Nenechte si ujít nejnovější nabídky pronájmu bytů 2+1 v Strakonicích.

Podobné nabídky