Pronájem bytu 3+kk, Praha - Stodůlky, Márova, 71 m2
Márova, Praha, Stodůlky
Popis
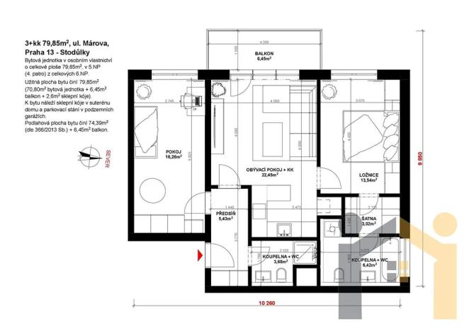
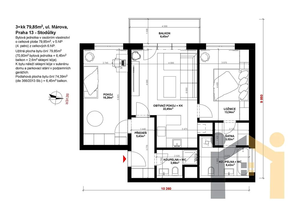
Byt 3+kk s balkonem, parkovacím stáním, sklepní kójí a klimatizací, zkolaudován v roce 2014 (developerská společnost DARAMIS) se nachází v ulici Márova, Praha 13 – Stodůlky.
Podlahová plocha bytu je 74,39m2, užitná plocha 70,80m2. K bytu náleží balkon (6,50m2), sklepní kóje (2,60m2) a parkovací stání v 1PP.  Bytová jednotka se nachází ve 4.patře (5.NP) cihlového bytového domu se dvěma výtahy. Okna (dřevěná) jsou orientována na západ do klidného a velmi tichého vnitrobloku se zelení.
Velkou přidanou hodnotou této nemovitosti je důmyslná dispozice, která umožňuje mít k ložnici nejen šatnu, ale také druhou samostatnou koupelnu s toaletou a vanou. První koupelna spojená s WC má sprchový kout a je přístupná z chodby. Z té je rovněž přístupný i pokoj, který může být pokojem dětským, či velmi komfortní pracovnou. Kuchyňský kout s obývacím pokojem je centrem celého bytu, ze kterého je přístup na balkon a rovněž do ložnice s šatnou a koupelnou. V bytě jsou nainstalovány klimatizační jednotky, tudíž i v horkých letních dnech je v této nemovitosti velmi příjemně. Převážná část vybavení a nábytku byla provedena truhlářsky na míru. Některé vybavení (převážně ve vyobrazené pracovně) není součástí pronájmu. Vybavení si konkrétně upřesníme na prohlídkách. Stejně tak bude byt nově vymalován a uklizen.
Byt svou velikostí a svými parametry splňuje podmínky jak bydlení pro pár, či rodinu s dítětem.
Pro milovníky západní části Prahy, kteří mají rádi kombinaci klidu, přírody a skvělé občanské vybavenosti se super dopravní dostupností, se jedná o skvělou příležitost ke koupi. Byt je součástí projektu společnosti DARAMIS, který byl situován v klidné části Stodůlek „Na Vidouli“. Ačkoli je v blízkosti Rozvadovské spojky, jedná se o velmi klidné a tiché místo. Za bytovým komplexem je domov seniorů a z druhé strany bytového domu jsou budovy ministerstva vnitra. Celý projekt byl postaven do těsného sousedství čtvrti s rodinnými domy. Samotný byt je orientován směrem do krásného a klidného vnitrobloku s velmi pěknou a udržovanou zelení. Projekt se nachází v blízkosti Přírodní památky Motolský ordovik, golfového klubu „Golf Club Praha“, Parku Cibulka, a nedaleko se rovněž nachází i Centrální park s několika vodními plochami skvělý na procházky, bruslení, jízdu na kole a venčení psích mazlíčků. Ti mají ostatně pár minut od domu vyhlášenou veterinární kliniku. Pro delší procházku lze využít i krásné Prokopské údolí. Byt je v obklopení přírody a zeleně, a přesto nedaleko od občanské vybavenosti potřebné ke každodennímu životu. V docházkové vzdálenosti od domu se nachází Lidl, Kaufland, kavárny. Blíže k metru Hůrka, Lužiny a Nové Butovice najdete pak kompletní vybavenost – polikliniku, obchody, poštu, restaurace, kavárny, hřiště, MŠ, ZŠ, OC Galerie Butovice, OC Lužiny. A kdyby i tato vybavenost byla málo, můžeme nabídnout pár minut cesty autem obchodní centrum Metropole Zličín a Homepark Zličín. Pouhé dvě minuty chůze od domu je umístěna autobusová zastávka „Za Mototechnou“. Na metru „Hůrka“ budete během 8min. jízdy autobusem, a na metru „Nové Butovice“ během 11min. Osobně tuto lokalitu vřele doporučuji!  Možnosti, které svými vlastnostmi a svou polohou tento byt nabízí, u jiných nemovitostí jen tak nezískáte.
Pronájem je možný od 17.11.2025. Cena nájemného je 28.000,- Kč/měsíc + zúčtovatelné poplatky ve výši 6.358,- Kč/měsíc/2os. (včetně zálohy na elektřinu ve výši 2.010,- Kč/měsíc). PENB: „B“. Při rezervaci se hradí provize ve výši 1 nájmu (28.000,- Kč), první nájem s poplatky a vratná kauce majiteli ve stejné výši. Pro dotazy či domluvení prohlídky jsem kdykoli k dispozici. Budu se těšit na osobní setkání při prohlídce nemovitosti.
Máte zájem o tuto nemovitost?
Ivana Ráčková (Tvarůžková) - ŘEŠÍM NEMOVITOST
Ovocný trh 572/11, Praha, Staré Město
Pomůžeme Vám!
Pomůžeme Vám!
Kontakt
 
                        Ivana Ráčková
Přihlášení k odběru
Nenechte si ujít nejnovější nabídky pronájmu bytů 3+kk v Praze 5.
Tipy Realitymatu
 
                                                                                     
                                                                                     
                                                                                     
                                                                                     
                                                                                     
                                                                                     
                                                                                     
                                                                                     
                                                                                     
                                                                                     
                                                                                     
                                                                                     
                                                                                     
                                                                                     
                                                                                     
                                                                                     
                                                                                     
                                                                                     
                                                                                     
                                                                                     
                                                                                     
                                                                                     
                                                                                     
                                                                                     
                                                                                     
                                                                                     
                                                                                     
                                                                                     
                                                                                     
                                                                                     
                                                                                     
                                                                                     
                                                                                     
                                                                                     
                                                                                     
                                                                                     
                                             
         
         
         
         
        