Prodej rodinného domu, Chotýšany, 88 m2

Chotýšany


7 900 000 Kč /za nemovitost
HYPOTÉKA od 35 308 Kč /měs.

(cena vč. provize RK)


Regionální dodavatelé v Chotýšanech

Popis

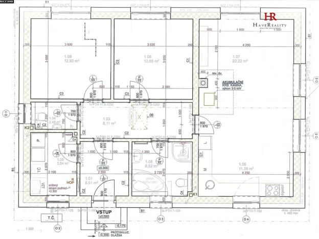
Nabízíme ke koupi novostavbu zkolaudovaného, přízemního, rodinného domu s pozemkem. Dům se nachází v Chotýšanech okr. Benešov, a je postaven na vlastním oploceném pozemku o celkové výměře parcel 1.196 m2. Zastavěná plocha a nádvoří 114 m2, podlahová plocha domu 87,68 m2, zahrada – trvalý travní porost 1.082 m2. Dům je zděný a není podsklepený. IS – vlastní vrtaná studna (30 m), elektřina 230/400 V (3x32A), ČOV (čistírna odpadních vod), na zahradě jsou osazeny dvě betonové 4 m3 jímky na vodu. Topení – v celém domě podlahové vodní vytápění. Zdroj tepla je tepelné čerpadlo LG (vzduch – voda), sloužící i k ohřevu vody. V domě je nainstalována rekuperační jednotka zajišťující přívod čerstvého vzduchu do domu s šetřením energií. V obývacím pokoji je příprava pro krbová kamna. Podlahy – dlažba, vinylová podlaha. Interiérové dveře s obložkou. Okna – plastová, trojsklo. Střecha – sedlová, betonová taška. Obvodové zdivo Porotherm 30 cm. Obvodové zdivo domu je zatepleno polystyrenem 20 cm, Strop je zateplen foukanou izolací. Dům splňuje nízkoenergetický standard, PENB – třída B – velmi úsporná budova. Dispozice domu 3kk - zádveří (předsíň) 5,51 m2, technická místnost (s přípravou pro pračku) 5,84 m2, obývací pokoj se vstupem na terasu 22,22 m2, kuchyňský kout 11,39 (kuchyňská linka není instalována), chodba 8,11 m2, koupelna se sprchovým koutem, vanou, skříňkou s umyvadlem a toaletou 6,52 m2, samostatná toaleta s umyvadlem 2,48 m2, ložnice 12,92 m2, dětský pokoj 12,69 m2. Půda neobytná – případně může sloužit jako úložný prostor. V domě jsou zhotoveny rozvody internetu. V okolí domu jsou dokončeny dlážděné chodníky, terasa, terénní úpravy a vysazen trávník. Před vjezdovou bránou je vydlážděn prostor pro parkování. Kolaudace se uskutečnila v letošním roce. Příjezdová komunikace asfaltová, obecní. Lokalita - Chotýšany se nachází cca 11 km východně od okresního města Benešov, kde je veškerá občanská vybavenost. Vzdálenost do města Vlašim je cca 9 km a do Prahy cca 50 km. Přímo v Chotýšanech naleznete obecní úřad, MŠ, ZŠ, obchod s potravinami, restauraci, poštu, sportoviště, autobusovou zastávku atd. K dispozici ihned. Možnost zprostředkování sjednání hypotéky.
V případě více zájemců o koupi této nemovitosti si prodávající vyhrazuje právo výběru kupujícího dle svých kritérií.

Cena
7 900 000 Kč /za nemovitost Spočítat hypotéku
Poznámka k ceně
cena vč. provize RK
Aktualizováno
24. 10. 2025
Adresa
Chotýšany
ID
NJCE5840
Stavba
Cihlová
Stav objektu
Novostavba
Druh objektu
Samostatný
Užitná plocha
88 m2
Zastavěná plocha
114 m2
Podlahová plocha
88 m2
Plocha pozemku
1196 m2
Plocha zahrady
1082 m2
Třída energetické náročnosti
B - Velmi úsporná
Elektřina
230V, 400V
Odpad
ČOV pro celý objekt
Komunikace
Asfaltová
Telekomunikace
Internet
Doprava
Silnice, Autobus
Voda
Studna, Retenční nádrž na dešt’ovou vodu
Topné těleso
Podlahové vytápění
Zdroj topení
Tepelné čerpadlo
Zdroj teplé vody
Tepelné čerpadlo
Parkování

Máte zájem o tuto nemovitost?

Tímto, v souladu s nařízením Evropského parlamentu a Rady (EU) 2016/679, v platném znění, prohlašuji, že mi je alespoň 16 let a uděluji tak svůj souhlas se zpracováním zadaných údajů (jméno, telefon, e-mail, ip adresa) společnosti B3 Technology, s.r.o., IČ: 07330600, se sídlem Novostavby 126/23, 435 11 Lom (správce dat), za účelem předání dotazu z tohoto formuláře Vámi vybranému inzerentovi a zpětného kontaktování mé osoby. Osobní údaje bude správce zpracovávat manuálně i automaticky přímo prostřednictvím svých zaměstnanců. Informace předané tímto formulářem budou uloženy v databázi správce maximálně po dobu 10 let. Odvolání souhlasu s uložením a zpracováním poskytnutých dat lze e-mailem na info@realitymat.cz. V případě podezření na neoprávněné použití Vámi poskytnutých údajů máte právo předat podnět k šetření Úřadu pro ochranu osobních údajů. Více informací
Chystáte se prodat nemovitost?
Pomůžeme Vám!

Kontakt

Jiří Čeleda

Jiří Čeleda

Přihlášení k odběru

Nenechte si ujít nejnovější nabídky prodeje rodinných domů v Chotýšanech.

Podobné nabídky