Prodej bytu 2+kk, Prostějov, Vojtěcha Outraty, 38 m2

Vojtěcha Outraty, Prostějov


Cena na vyžádání /za nemovitost
Získejte výhodnou HYPOTÉKU

(info v RK)


Regionální dodavatelé v Prostějově

Popis

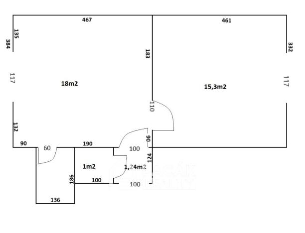
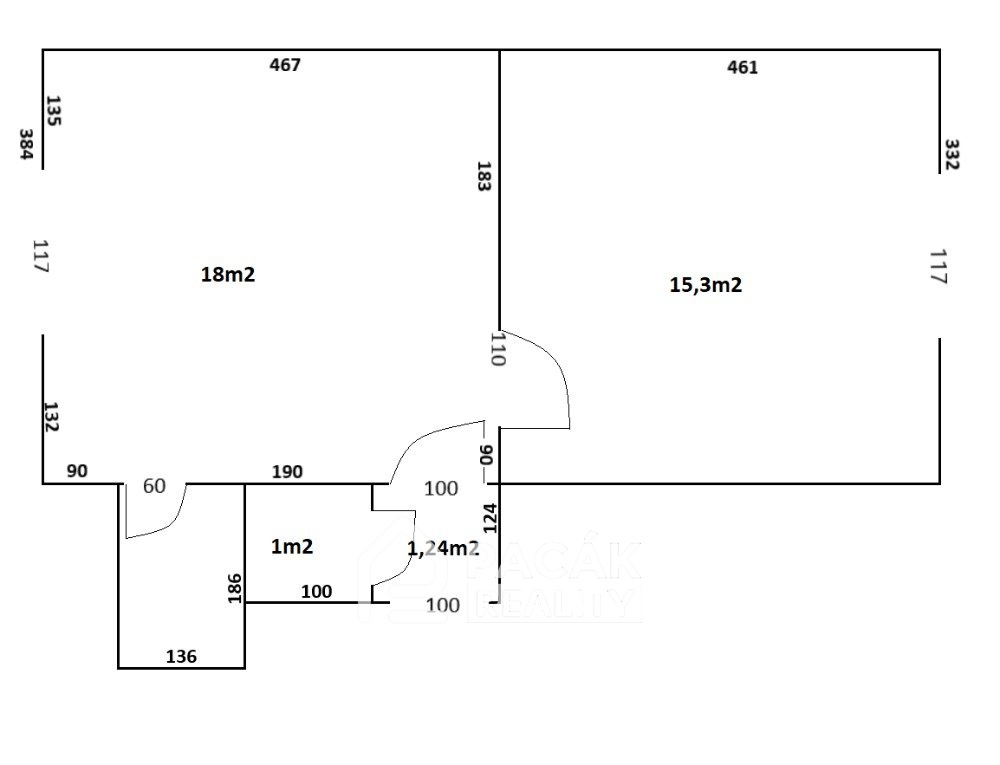
Nabízíme k prodeji byt v osobním vlastnictví o dispozici 2+kk o užitné ploše 38 m2 v klidné části města Prostějova, ul. V. Outraty v docházkové vzdálenosti do centra. Byt je umístěn ve 2. patře v dvoupatrovém bytovém cihlovém domě. Bytový dům je osazen sedlovou střechou s krytinou z pálených tašek, plastovými okny, připojen na městský vodovod, kanalizaci, elektro a plyn. Byt o dispozici 2 + kk tvoří obývací pokoj s kuchyňským koutem, samostatný pokoj, zázemí bytu doplňuje samostatná koupelna a WC. Byt je vytápěn plynovými topidly WAF, ohřev vody je zajištěn elektrickým bojlerem. Byt je vhodný pro vlastní bydlení, popř. jako investice. Veškerá občanská vybavenost v docházkové vzdálenosti bytového domu. Parkování je možné v okolí domu. Byt je připravený k okamžitému nastěhování. Pro více informací a domluvení prohlídky nás kontaktujte.

Cena
Cena na vyžádání Spočítat hypotéku
Poznámka k ceně
info v RK
Aktualizováno
25. 11. 2025
Adresa
Vojtěcha Outraty, Prostějov
ID
00718
Stavba
Cihlová
Stav objektu
Dobrý
Patro
3.
Vlastnictví
Osobní
Užitná plocha
38 m2
Třída energetické náročnosti
G - Mimořádně nehospodárná
Elektřina
230V
Plyn
Plynovod
Odpad
Veřejná kanalizace
Topení
Lokální plynové
Doprava
Vlak, Dálnice, Silnice, MHD, Autobus
Voda
Vodovod

Máte zájem o tuto nemovitost?

Tímto, v souladu s nařízením Evropského parlamentu a Rady (EU) 2016/679, v platném znění, prohlašuji, že mi je alespoň 16 let a uděluji tak svůj souhlas se zpracováním zadaných údajů (jméno, telefon, e-mail, ip adresa) společnosti B3 Technology, s.r.o., IČ: 07330600, se sídlem Novostavby 126/23, 435 11 Lom (správce dat), za účelem předání dotazu z tohoto formuláře Vámi vybranému inzerentovi a zpětného kontaktování mé osoby. Osobní údaje bude správce zpracovávat manuálně i automaticky přímo prostřednictvím svých zaměstnanců. Informace předané tímto formulářem budou uloženy v databázi správce maximálně po dobu 10 let. Odvolání souhlasu s uložením a zpracováním poskytnutých dat lze e-mailem na info@realitymat.cz. V případě podezření na neoprávněné použití Vámi poskytnutých údajů máte právo předat podnět k šetření Úřadu pro ochranu osobních údajů. Více informací
Chystáte se prodat nemovitost?
Pomůžeme Vám!

Kontakt

Ing. Květoslav Pěcha

Ing. Květoslav Pěcha

Přihlášení k odběru

Nenechte si ujít nejnovější nabídky prodeje bytů 2+kk v Prostějově.

Tipy Realitymatu

Podobné nabídky