Prodej bytu 3+1, Novalja, Chorvatsko, 76 m2 (ID: 1976881)

Novalja


6 312 000 Kč /za nemovitost

(sleva)


Regionální dodavatelé

Popis

Chorvatsko-Nemovitosti.cz má pro Vás velký třípokojový apartmán 76m2 s podlahovým topením. Velká zastřešená terasa 22,48 m2 pro příjemné posezení ve stínu a nepřízní počasí. Velký dvůr 104,22 m2 je vhodný pro grilování, hru dětí nebo příjemné slunění. Krásný výhled na celý záliv Novalja. Pláž je vzdálena 10 minut chůze, cca 300m. Apartmán má velikost 76 m2 a je včetně dvou parkovacích stání. Pláž je písčito-oblázková a je včetně sprch a sociálních zařízení. Na terasu vstoupíte přímo z ložnice. Nedaleko jsou obchody a pizzerie případně kebab. Do města Novalja se dostanete pohodlnou kvalitní silnicí z trajektu nebo z mostu, spojující pevninu a ostrov Pag. Podrobně o apartmánu:

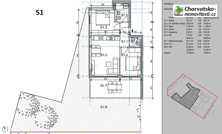
Prodej třípokojového apartmánu o čisté užitné ploše 76 m2 v novostavbě v Novalji. Při stavbě byly použity pouze nejkvalitnější materiály a zařízení.

Skládá se z chodby, koupelny s WC, 2 ložnic, obývacího pokoje a kuchyně, dále z velké zastřešené terasy a velkého dvora.
Je klimatizovaný a včetně podlahového topení.
Má také parkovací dvě parkovací místa před budovou.
Cca 10 minut chůze od moře
Díky mírnému sklonu má skvělý výhled na celý záliv Novalja

Novalja je město a přímořské letovisko v Chorvatsku na severní straně ostrova Pag. Novalja po městě Pag je druhým největším městem na ostrově. Je též největším městem na části Pagu připadající Licko-senjské župě. V roce 2001 žilo ve městě 2 078 obyvatel, v celé opčině pak 3 335 obyvatel. Novalja je známá především díky své pláži Zrče, která díky čistotě získala modrou vlajku. Mezi sporty zde patří vodní lyžování,wakeboarding,bungee jumping a jízda na vodním skůtru.

Ostrov Pag je známý díky teplému klimatu a blízkostí k České republice - Brno 750km po dálnici. Na ostrov se dostanete trajektem i po mostě, najdete zde benzínové pumpy, obchody, stavebniny a prodejny hobby doplňků. Jsou zde také restaurace, bary, diskotéky a mariny pro ukotvení lodí skůtrů atd. Na Pagu najdete výborné Pažské sýry, speciální krajky nebo výrobu solných přípravků.

Veřejné služby:
Voda
Elektro
Kanalizace
Vytápění a chlazení: Podlahové topení, klimatizace
Certifikáty:
Energetická třída: Energetický certifikát
Stavební povolení
Kolaudační rozhodnutí

Info:
Vzdálenost od moře: 300 m
Most, který spojuje ostrov pevninu je zdarma
Obchody
Restaurace
Služby města a kulturní centrum
Parkování

Cena
6 312 000 Kč /za nemovitost
Poznámka k ceně
sleva
Aktualizováno
24. 10. 2025
Adresa
Novalja
ID
155
Stavba
Smíšená
Stav objektu
Novostavba
Patro
1.
Vlastnictví
Osobní
Užitná plocha
76 m2
Třída energetické náročnosti
C - Úsporná
Elektřina
230V
Odpad
Veřejná kanalizace
Komunikace
Asfaltová
Telekomunikace
Internet
Doprava
Silnice
Voda
Vodovod
Terasa
Bezbarierový přístup
Parkování

Máte zájem o tuto nemovitost?

Tímto, v souladu s nařízením Evropského parlamentu a Rady (EU) 2016/679, v platném znění, prohlašuji, že mi je alespoň 16 let a uděluji tak svůj souhlas se zpracováním zadaných údajů (jméno, telefon, e-mail, ip adresa) společnosti B3 Technology, s.r.o., IČ: 07330600, se sídlem Novostavby 126/23, 435 11 Lom (správce dat), za účelem předání dotazu z tohoto formuláře Vámi vybranému inzerentovi a zpětného kontaktování mé osoby. Osobní údaje bude správce zpracovávat manuálně i automaticky přímo prostřednictvím svých zaměstnanců. Informace předané tímto formulářem budou uloženy v databázi správce maximálně po dobu 10 let. Odvolání souhlasu s uložením a zpracováním poskytnutých dat lze e-mailem na info@realitymat.cz. V případě podezření na neoprávněné použití Vámi poskytnutých údajů máte právo předat podnět k šetření Úřadu pro ochranu osobních údajů. Více informací
Chystáte se prodat nemovitost?
Pomůžeme Vám!

Kontakt

Monika Adamíková

Monika Adamíková

Přihlášení k odběru

Nenechte si ujít nejnovější nabídky prodeje bytů 3+1.

Podobné nabídky