Prodej pozemku pro bydlení, Kačice, Na Vršku, 859 m2 (ID: 1976744)
Na Vršku, Kačice
(Cena včetně provize RK a právního servisu)
Popis
K prodeji stavební pozemek o výměře 859 m² v obci Kačice, okres Kladno. Pozemek tvoří parc. č. 424/65 a 424/56 a nachází se v nové rezidenční čtvrti s rodinnými domy.
Pozemek je plně zasíťovaný – k dispozici je elektřina, plyn, obecní vodovod, kanalizace a optický internet.
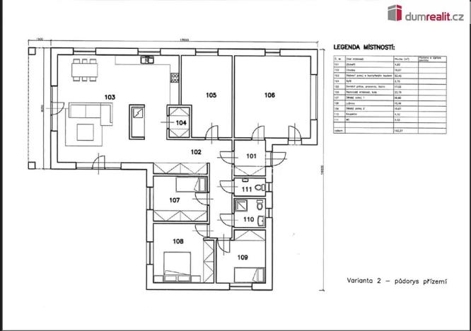
Velkou výhodou je, že se prodává s platným stavebním povolením a kompletním projektem rodinného domu 4+kk s valbovou střechou, akumulační nádrží na dešťovou vodu a dvěma parkovacími místy. Nový majitel tak může okamžitě zahájit výstavbu bez zdlouhavého vyřizování.
Regulace dle územního plánu Kačice
zastavitelnost až 45 % plochy pozemku (cca 387 m²) – možnost postavit prostorný rodinný dům s garáží či doplňkovými stavbami
přípustná výstavba: 1 nadzemní podlaží + obytné podkroví
Výhody pozemku
plocha 859 m² (parc. č. 424/65 a 424/56)
kompletní inženýrské sítě včetně optiky
stavební povolení a projekt v ceně
možnost okamžité výstavby
klidná lokalita s novou zástavbou
výborná dopravní dostupnost: Praha 20 minut (rychlý nájezd na D6), Kladno jen pár minut
Občanská vybavenost
Obec Kačice nabízí mateřskou i základní školu, obchod, restaurace a další služby. V okolí jsou lesy, cyklostezky a možnosti rodinného vyžití, což zvyšuje atraktivitu pro bydlení.
Tento pozemek není jen prázdná parcela, ale kompletně připravený základ pro okamžitou výstavbu rodinného domu. Pokud hledáte místo, kde můžete bez zbytečných průtahů realizovat své bydlení, je to ideální volba. Ev. číslo: 652351.
Máte zájem o tuto nemovitost?
Pomůžeme Vám!
Kontakt
 
                        Michal Gažo
Přihlášení k odběru
Nenechte si ujít nejnovější nabídky prodeje pozemků pro bydlení v Kačici.
Podobné nabídky
 
        Prodej pozemku pro bydlení, Kačice, Na Vršku, 859 m2
6 400 000 Kč
 
        Prodej pozemku pro bydlení, Knovíz, 1033 m2
5 165 000 Kč
 
        Prodej pozemku pro bydlení, Libušín, 979 m2
3 600 000 Kč
 
                                                                                     
                                                                                     
                                                                                     
                                                                                     
                                                                                     
                                                                                     
                                                                                     
                                                                                     
                                                                                     
                                                                                     
                                                                                     
                                                                                     
                                                                                     
                                                                                     
                                                                                     
                                                                                     
                                                                                     
                                                                                     
                                                                                     
                                                                                     
        