Prodej pozemku pro bydlení, Čestlice, 722 m2

Čestlice


14 990 000 Kč /za nemovitost
HYPOTÉKA od 66 996 Kč /měs.

(možnost odpočtu DPH!)


Regionální dodavatelé v Čestlicích

Popis

Nabízíme k prodeji stavební pozemek určený pro bydlení v klidné části obce Čestlice. Tento pozemek o rozloze 722 m² představuje ideální příležitost pro ty, kteří hledají místo pro výstavbu svého vysněného domova obklopeného pohodou a klidem.


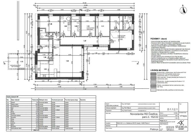
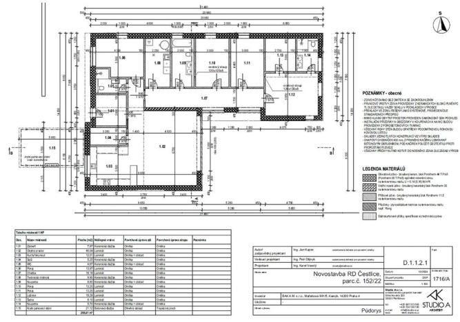
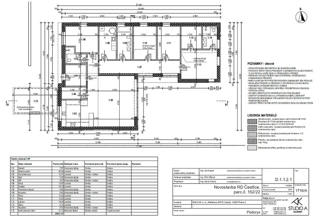
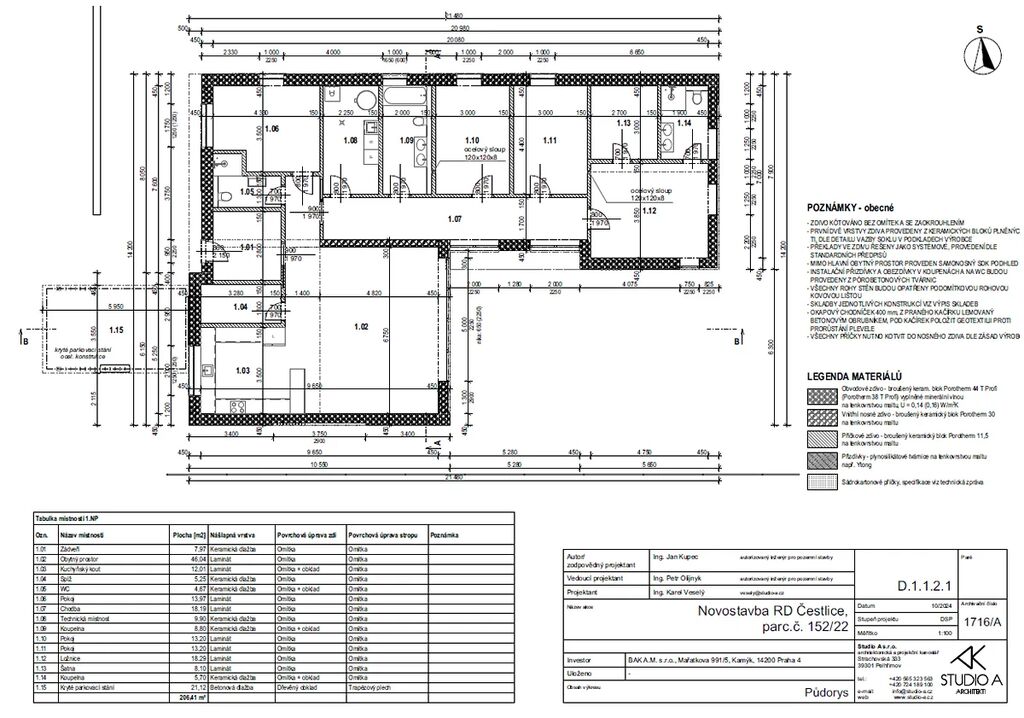
Předmětem prodeje je pozemek včetně kompletní projektové dokumentace a zajištěným stavebním povolením k výstavbě rodinného domu dispozice 5+kk se zastřešeným parkovacím stáním, vše na parcele číslo 152/22 v k.ú. Čestlice. Celková zastavěná plocha činí 249,3 m2 a celková užitná plocha 206,4 m2.

Projekt lze upravit dle požadavků nového majitele a v případě zájmu jsme schopní zajistit výstavbu na klíč. Pozemek je umístěn v rámci nově vzniklé části obce, kde jsou již vybudované a zkolaudované nové cesty, sítě, chodníky i osvětlení.

Stavba je orientována rovnoběžně se severní hranicí pozemku. Celý objekt má půdorys tvaru „L“ o celkových vnějších rozměrech 21,5x14,2 m. Výška hřebene plánovaného rodinného domu se nachází v úrovni +6,2 m nad úrovní čisté podlahy v přízemí. Jedná se o stavbu s jedním nadzemním podlaží.

Konstrukční systém rodinného domu je navržen jako systémový zděný s nosnými obvodovými a příčnými stěnami, které zajišťují prostorové ztužení. Založení objektu je navrženo jako plošné – základové pasy a prahy. Základní nosnou konstrukci objektu tvoří obvodové a příčné nosné stěny z tepelněizolačních keramických tvárnic zděných na tenkovrstvou maltu. Objekt je navržen v kombinaci se sedlovou střechou, kterou vynáší tradiční vaznicová soustava.

Fasáda objektu je vizuálně rozčleněna na jednotlivé úseky pomocí keramických obkladů a jednotlivých dřevěných tyčových prvků. Okenní a dveřní výplně jsou řešeny v kombinaci „dřevěných“ rámů se zasklením tepelněizolačním trojsklem. V případě požadavku majitele je možné osadit předsazené venkovní žaluzie dotvářející celkový vzhled budovy. Zachytávání dešťových vod je řešeno pomocí skrytých nástřešních vyhřívaných žlabů, které jsou napojeny na dešťové svody vedené v rámci zdiva. Technická místnost se nachází v přízemí v severní části objektu, kde je umístěna veškerá technologie budovy (vytápění, ohřev vody, atd.). Veškeré technologie jsou řešeny centralizovaným způsobem.


Strategická poloha v Čestlicích zajišťuje snadný přístup k městské infrastruktuře, přičemž si zachovává klidnou atmosféru dál od městského shonu. Okolní prostředí je vhodné nejen k poklidnému bydlení, ale také k volnočasovým aktivitám a relaxaci. Největšími devizami Čestlic jsou jejich těsná blízkost vůči Praze i luxusním Průhonicím, velmi dobrá autobusová obslužnost, nájezd na dálnici D1 i vynikající občanská vybavenost v místě i blízkém okolí. Čestlice mají moderní ráz a působí uspořádaným dojmem. V místě je k dispozici Obecní úřad, základní a mateřská škola, pošta, široká řada obchodů, služeb, restaurací, kaváren i sportovišť pro děti i pro dospělé (Akvapark Čestlice, skákací centrum Žirafa). Jen 2 km od lokality se nachází Průhonický zámek a park zanesený na seznam Kulturních a přírodních památek UNESCO, dalším skvostem je jen 300 m vzdálená Dendrologická zahrada. Velmi dobré je i autobusové spojení s okrajovými částmi Prahy až na metro C - Opatov a taktéž výborná obslužnost do Říčan i okolních obcí.


Prodejní cena pozemku je s možností odpočtu DPH a díky tomu je tato nabídka vhodná jak pro zájemce o vlastní bydlení, tak v rámci investice. V případě zájmu neváhejte využít kontaktní informace níže pro sjednání prohlídky nebo zodpovězení jakýchkoliv dotazů.

Cena
14 990 000 Kč /za nemovitost Spočítat hypotéku
Poznámka k ceně
možnost odpočtu DPH!
Aktualizováno
24. 10. 2025
Adresa
Čestlice
ID
PC
Lokalita objektu
Klidná část obce
Plocha pozemku
722 m2
Voda
Vodovod
Zdroj topení
Tepelné čerpadlo
Zdroj teplé vody
Tepelné čerpadlo

Máte zájem o tuto nemovitost?

Tímto, v souladu s nařízením Evropského parlamentu a Rady (EU) 2016/679, v platném znění, prohlašuji, že mi je alespoň 16 let a uděluji tak svůj souhlas se zpracováním zadaných údajů (jméno, telefon, e-mail, ip adresa) společnosti B3 Technology, s.r.o., IČ: 07330600, se sídlem Novostavby 126/23, 435 11 Lom (správce dat), za účelem předání dotazu z tohoto formuláře Vámi vybranému inzerentovi a zpětného kontaktování mé osoby. Osobní údaje bude správce zpracovávat manuálně i automaticky přímo prostřednictvím svých zaměstnanců. Informace předané tímto formulářem budou uloženy v databázi správce maximálně po dobu 10 let. Odvolání souhlasu s uložením a zpracováním poskytnutých dat lze e-mailem na info@realitymat.cz. V případě podezření na neoprávněné použití Vámi poskytnutých údajů máte právo předat podnět k šetření Úřadu pro ochranu osobních údajů. Více informací
Chystáte se prodat nemovitost?
Pomůžeme Vám!

Kontakt

BAK development - Pavol Bak

BAK development - Pavol Bak

Přihlášení k odběru

Nenechte si ujít nejnovější nabídky prodeje pozemků pro bydlení v Čestlicích.

Podobné nabídky