Prodej bytu 2+kk, Ivančice, Kounická, 38 m2 (ID: 1975691)
Kounická, Ivančice
(včetně DPH, včetně provize, včetně právního servisu)
Popis
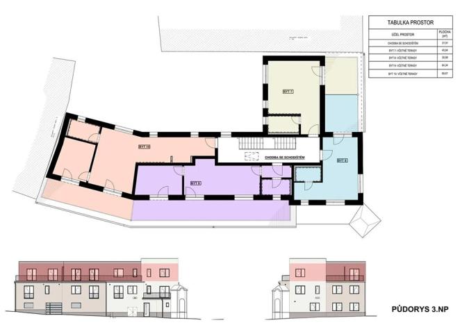
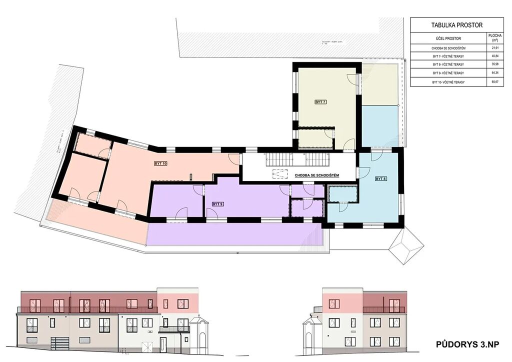
Nabízíme k prodeji byt 2+kk s výjimečně prostornou terasou v novostavbě bytového domu o 10 jednotkách v bezprostředním centru města Ivančic, na nároží ulic Kounická  a Jana Fibicha.
Bytová jednotka o dispozici 2+kk a podlahové ploše 38,00 m² se nachází ve 3. nadzemním podlaží nízkoenergetického bytového domu v klidné části města Ivančice. Dominantou tohoto bytu je terasová plocha o výměře 26,34 m², která nabízí nadstandardní venkovní prostor vhodný pro posezení, grilování, pěstování rostlin i relaxaci.
Dispozice bytu:
– hala: 3,00 m²
– koupelna: 3,77 m²
– obývací pokoj s kuchyňským koutem: 19,91 m²
– ložnice: 11,32 m²
– terasa: 26,34 m²
Byt je součástí novostavby o pouhých 10 jednotkách, což zajišťuje klidné a komfortní bydlení bez anonymní atmosféry velkých rezidenčních projektů.
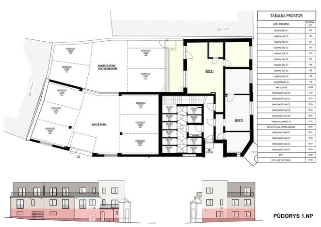
K bytu náleží sklepní kóje (cca 1,8 m²) a kryté parkovací stání, které poskytuje pohodlí a ochranu vozu během celého roku. Lokalita nabízí vynikající občanskou vybavenost – v pěší dostupnosti jsou obchody, škola, MHD, zdravotnická zařízení i sportovní infrastruktura.
Vybavení bytu:
– kvalitní vinylové podlahy a dlažba
– příprava na kuchyňskou linku
– plastová okna s izolačními trojskly
– předokenní žaluzie u oken orientovaných do ulice (jižní/západní strana)
– moderní sanitární vybavení
Bytový dům je aktuálně ve fázi dokončovacích prací,  probíhá realizace koupelen a pokládka podlah, instalují se zařizovací předměty. Předpokládaný termín k nastěhování je 01/2026.
Pro více informací, půdorysy nebo sjednání prohlídky nás neváhejte kontaktovat.
Prodej přímo od investora – neplatíte provizi.
Máte zájem o tuto nemovitost?
Třešňová 1633/5, Ivančice
Pomůžeme Vám!
Pomůžeme Vám!
Kontakt
 
                        Bc. Lucie Hajdová, MBA. DiS.
Přihlášení k odběru
Nenechte si ujít nejnovější nabídky prodeje bytů 2+kk v Ivančicích.
Tipy Realitymatu
 
        Prodej bytu 4+kk, Šlapanice, Těsnohlídkova, 97 m2
11 490 000 Kč
 
        Prodej bytu 3+kk, Rajhrad, Klášterní Dvůr, 60 m2
7 890 000 Kč
Podobné nabídky
 
        Prodej bytu 2+kk, Ivančice, 44 m2
5 480 000 Kč
 
        Prodej bytu 2+kk, Ivančice, 50 m2
6 325 000 Kč
 
        Prodej bytu 2+kk, Ivančice, Ořechová, 63 m2
5 400 000 Kč
 
        Prodej bytu 2+kk, Dolní Loučky, 54 m2
3 675 999 Kč
 
                                                                                     
                                                                                     
                                                                                     
                                                                                     
                                                                                     
                                                                                     
                                                                                     
                                                                                     
                                                                                     
                                                                                     
                                                                                    