Prodej bytu 2+kk, Ivančice, 44 m2 (ID: 1975689)
Ivančice
(včetně DPH, včetně provize, včetně právního servisu)
Popis
Nabízíme k prodeji byt 2+kk s prostornou terasou v novostavbě bytového domu o 10 jednotkách v bezprostředním centru města Ivančic, na nároží ulic Kounická  a Jana Fibicha.
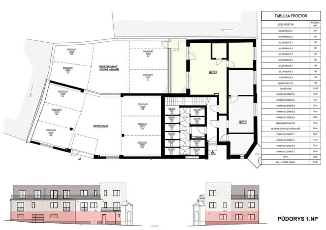
Bytová jednotka o dispozici 2+kk a podlahové ploše 43,92 m² se nachází v 1. nadzemním podlaží nízkoenergetického bytového domu situovaného v klidné části města Ivančice. Součástí bytu je terasová plocha o výměře 13,96 m², která nabízí příjemný prostor pro relaxaci nebo posezení. Součástí ceny bytu je sklepní kóje a nekryté parkovací stání.
Dispozice bytu:
– hala: 2,40 m²
– obývací pokoj s kuchyňským koutem: 27,48 m²
– ložnice: 10,35 m²
– koupelna s WC: 3,69 m²
– terasa: 13,96 m²
Byt je součástí novostavby bytového domu o pouhých 10 jednotkách, což zajišťuje klidné a komfortní bydlení bez rušného prostředí rozsáhlých rezidenčních komplexů.
K bytu náleží sklepní kóje (cca 1,8 m²) a nekryté parkovací stání, které poskytuje pohodlí a ochranu vozidla v průběhu celého roku. Dům se nachází v atraktivní lokalitě s výbornou dostupností do centra města a kompletní občanskou vybaveností – v okolí najdete školy, školky, obchody, zdravotnická zařízení, sportoviště i zastávky MHD.
Vybavení bytu:
– kvalitní vinylové podlahy a dlažba
– příprava na kuchyňskou linku
– plastová okna s izolačními trojskly
– předokenní žaluzie u oken orientovaných do ulice (jižní/západní strana)
– moderní sanitární vybavení
Bytový dům je aktuálně ve fázi dokončovacích prací,  probíhá realizace koupelen a pokládka podlah, instalují se zařizovací předměty. Předpokládaný termín k nastěhování je 01/2026.
Pro více informací, půdorysy nebo sjednání prohlídky nás neváhejte kontaktovat.
Prodej přímo od investora – neplatíte provizi.
Máte zájem o tuto nemovitost?
Třešňová 1633/5, Ivančice
Pomůžeme Vám!
Pomůžeme Vám!
Kontakt
 
                        Bc. Lucie Hajdová, MBA. DiS.
Přihlášení k odběru
Nenechte si ujít nejnovější nabídky prodeje bytů 2+kk v Ivančicích.
Tipy Realitymatu
 
        Prodej bytu 4+kk, Šlapanice, Těsnohlídkova, 97 m2
11 490 000 Kč
 
        Prodej bytu 3+kk, Rajhrad, Klášterní Dvůr, 60 m2
7 890 000 Kč
Podobné nabídky
 
        Prodej bytu 2+kk, Ivančice, Kounická, 38 m2
5 639 000 Kč
 
        Prodej bytu 2+kk, Ivančice, 50 m2
6 325 000 Kč
 
        Prodej bytu 2+kk, Ivančice, Ořechová, 63 m2
5 400 000 Kč
 
        Prodej bytu 2+kk, Dolní Loučky, 54 m2
3 675 999 Kč
 
                                                                                     
                                                                                     
                                                                                     
                                                                                     
                                                                                     
                                                                                     
                                                                                     
                                                                                     
                                                                                    