Prodej rodinného domu, Chlumy, 90 m2
Chlumy
(včetně právního servisu)
Popis
Hledáte místo, kde si odpočinete od shonu města, užijete si klid venkovského života a přitom budete mít vše potřebné na dosah? Pak je tahle chalupa v obci Chlumy ideálním řešením právě pro Vás! Domek, situovaný na mírném návrší s orientací na jih a jihozápad, Vám nabídne nejen krásný výhled do okolí, ale i dostatek světla po celý den. Svoji atmosféru si zachoval díky původním prvkům, jako jsou kachlová kamna v kuchyni i v jednom z pokojů, dřevěné podlahy či prostorná půda s možností rozšíření obytné plochy. Domek je z větší části v původním stavu, nutno počítat s rekonstrukcí.
Co Vám chalupa nabídne?
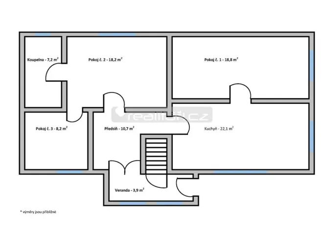
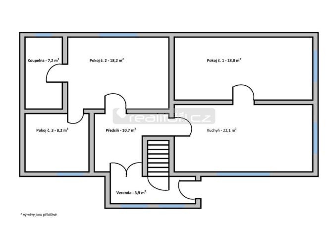
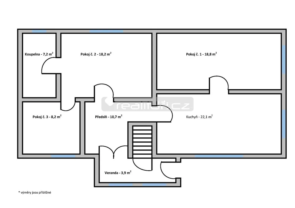
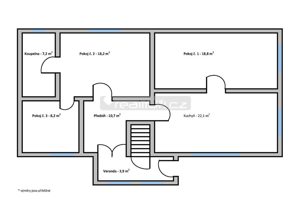
✔ Velká kuchyně s tradičními kachlovými kamny a plotnou na vaření – ideální pro milovníky venkovské atmosféry.
✔ Tři prostorné pokoje, z nichž jeden má také kachlová kamna s plotnou.
✔ Vybavenost sítí – Elektřina 220/380 V (ve větší části již předělána), voda z vlastní studny a odpady napojené na obecní kanalizaci.
✔ Příprava na koupelnu a WC – instalace je hotová, chybí jen obklady a sanitární vybavení (WC již k dispozici).
✔ Tradiční podlahy – kombinace dřeva a dlažby dodává domu rustikální ráz.
✔ Menší sklípek – ideální pro uchování potravin, vína či domácích produktů.
✔ Prostorná půda – s možností přestavby na útulné podkrovní bydlení.
✔ Hospodářské zázemí – Velká stodola s chlívky poskytuje dostatek prostoru pro dílnu, skladování nebo drobné chovatelské či pěstitelské aktivity.
✔ Pozemek o výměře 872 m2 – část pozemku je zastavěný a před domem je zatravněný dvorek a za domem další travnatá část s velkým ořešákem .
Místo, které si zamilujete
Chalupa se nachází v klidné části vesnice Chlumy, kde na Vás dýchne pohoda venkovského života. Okolí nabízí nádhernou přírodu ideální pro procházky, cykloturistiku či houbaření. Přitom se však nemusíte vzdát pohodlí – město Nepomuk s veškerou občanskou vybaveností je jen 10 minut jízdy autem.
Máte zájem o tuto nemovitost?

Náměstí Republiky 28, Plzeň
Pomůžeme Vám!
Pomůžeme Vám!
Kontakt

Martina Dlouhá
Přihlášení k odběru
Nenechte si ujít nejnovější nabídky prodeje rodinných domů v Chlumech.
Tipy Realitymatu

Prodej rodinného domu, Lisov, 90 m2
3 900 000 Kč
Podobné nabídky

Prodej rodinného domu, Oselce - Kotouň, 112 m2
2 793 000 Kč

Prodej rodinného domu, Chlum, 88 m2
3 581 000 Kč

Prodej rodinného domu, Dobřany, 133 m2
3 497 000 Kč

Prodej rodinného domu, Řenče - Osek, 70 m2
3 700 000 Kč