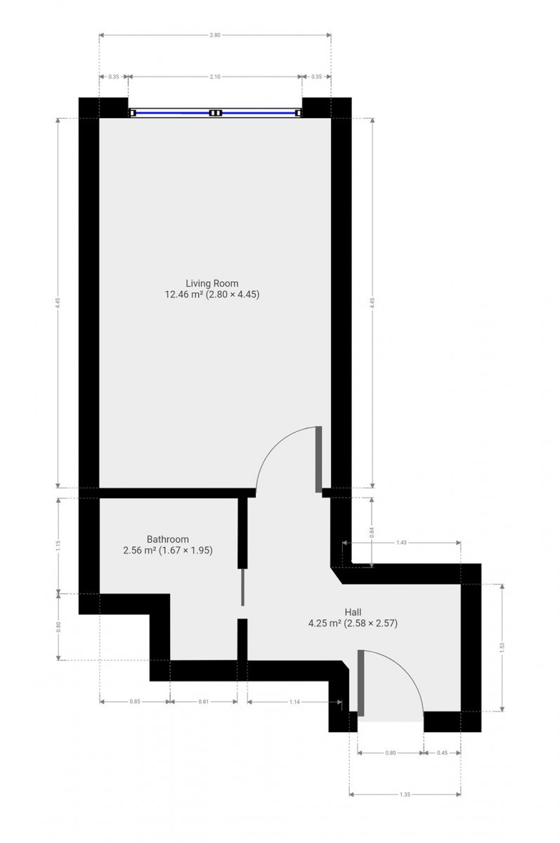
Pronájem bytu 1+kk, Praha - Řepy, Vondroušova, 21 m2
Vondroušova, Řepy - Praha 17
(vratná jistota náklady na bydlení 4013, poplatek za podnájem)
Popis
K dlouhodobému podnájmu nabízíme příjemný byt o dispozici 1+kk v oblíbené lokalitě Praha - Řepy. Byt o celkové výměře 21 m2 se nachází v druhém patře panelového domu s výtahem.
Byt se nabízí částečně vybavený. Kuchyně disponuje vařičem, digestoří, lednicí a mikrovlnnou troubou. Je zde také barový stůl s židlemi. Součástí koupelny je sprchový kout, umyvadlo, pračka a toaleta. V předsíni najdeme vestavěnou šatní skříň.
V okolí je dobrá občanská vybavenost - např. supermarket Tesco, Lidl, drogerie, bowling apod. Metropole Zličín je v těsné blízkosti. Dopravní dostupnost zajišťuje zastávka Blatiny, která je vzdálená pět minut chůze od domu.
Byt je volný k nastěhování od 1.12.2025. Majitel preferuje zájemce bez domácích mazlíčků.
Uvedena energetická kategorie G, jelikož nemáme k dispozici PENB.
Byt pronajímá Ideální nájemce - služba, se kterou budete bydlet bezstarostně a za férových podmínek. Když se něco přihodí, k dispozici jsou správci, kteří s vámi vše vyřeší. Pomůžeme s veškerou administrativou, s nastavením plateb a zajistíme vám speciální pojištění. Pojďte bydlet s námi!
Máte zájem o tuto nemovitost?

Milady Horákové 1957/13, Brno
Pomůžeme Vám!
Pomůžeme Vám!
Kontakt

Miloslava Kačerová
Přihlášení k odběru
Nenechte si ujít nejnovější nabídky pronájmu bytů 1+kk v Praze 6.