Prodej rodinného domu, Pozořice, Nad Ostrůvkem, 46 m2

Nad Ostrůvkem, Pozořice


Cena na vyžádání /za nemovitost
Získejte výhodnou HYPOTÉKU

(včetně provize RK, právního servisu,)


Regionální dodavatelé v Pozořicích

Popis

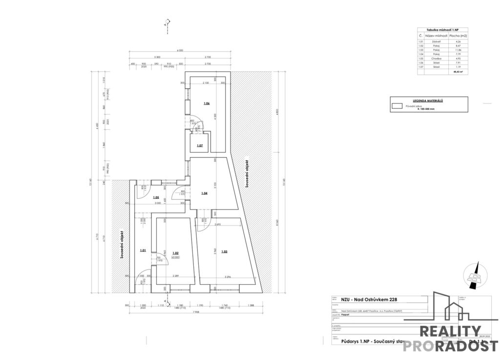
Nabízíme k prodeji řadový rodinný dům v Pozořicích. Zastavěná plocha a nádvoří o celkové výměře 120 m2 v okrese Brno- venkov , který je vhodný jako investice nebo ke kompletní rekonstrukci dle vlastních představ. Součástí prodeje je také vypracovaný stávající stav RD k čerpání dotačního titulu programu Nová zelená úsporám. Rodinný dům lze rozšířit o půdní vestavbu. Po realizaci rekonstrukce s půdní vestavbou by užitná plocha domu činila cca 70 m2 . Situace stávajícího stavu na první patro je vypracovaná projektantem s možností vyřízení dotací k rekonstrukci a výhodného financování z dotačního titulu s úrokovou sazbou 3%. Dům je částečně podsklepený. V RD je zavedená elektřina. Voda, plyn a kanalizační přípojka se nachází na hranici pozemku. Za domem se rozprostírá menší zahrádka, ideální pro relaxaci. Pozořice se nachází v okrese Brno-venkov, vzdálené přibližně 15 km východně od Brna. V obci se nachází kompletní občanská vybavenost – škola, školka, obchody, pošta i zdravotní služby. Energetický štítek nebyl dodán majitelem, proto je uvedena třída G. Pro více informací či domluvu osobní prohlídky kontaktujte makléřku.

Cena
Cena na vyžádání Spočítat hypotéku
Poznámka k ceně
včetně provize RK, právního servisu,
Aktualizováno
15. 10. 2025
Adresa
Nad Ostrůvkem, Pozořice
ID
27927
Stavba
Cihlová
Stav objektu
Před rekonstrukcí
Typ objektu
Přízemní
Druh objektu
Řadový
Lokalita objektu
Centrum obce
Užitná plocha
46 m2
Zastavěná plocha
46 m2
Podlahová plocha
120 m2
Plocha pozemku
120 m2
Třída energetické náročnosti
G - Mimořádně nehospodárná
Elektřina
230V
Doprava
Dálnice, MHD
Převod do OV

Máte zájem o tuto nemovitost?

Tímto, v souladu s nařízením Evropského parlamentu a Rady (EU) 2016/679, v platném znění, prohlašuji, že mi je alespoň 16 let a uděluji tak svůj souhlas se zpracováním zadaných údajů (jméno, telefon, e-mail, ip adresa) společnosti B3 Technology, s.r.o., IČ: 07330600, se sídlem Novostavby 126/23, 435 11 Lom (správce dat), za účelem předání dotazu z tohoto formuláře Vámi vybranému inzerentovi a zpětného kontaktování mé osoby. Osobní údaje bude správce zpracovávat manuálně i automaticky přímo prostřednictvím svých zaměstnanců. Informace předané tímto formulářem budou uloženy v databázi správce maximálně po dobu 10 let. Odvolání souhlasu s uložením a zpracováním poskytnutých dat lze e-mailem na info@realitymat.cz. V případě podezření na neoprávněné použití Vámi poskytnutých údajů máte právo předat podnět k šetření Úřadu pro ochranu osobních údajů. Více informací
Chystáte se prodat nemovitost?
Pomůžeme Vám!

Kontakt

Pavlina Konzen

Pavlina Konzen

Přihlášení k odběru

Nenechte si ujít nejnovější nabídky prodeje rodinných domů v Pozořicích.

Podobné nabídky