Prodej bytu 3+1, Praha - Hlubočepy, Pražského, 76 m2
Pražského, Praha, Hlubočepy
Popis
Stojíte před skvělou příležitostí stát se vlastníkem bytu s výhledem na panorama Prahy ve vyhledávané části Hlubočepy sídliště Barrandov.
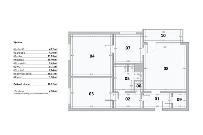
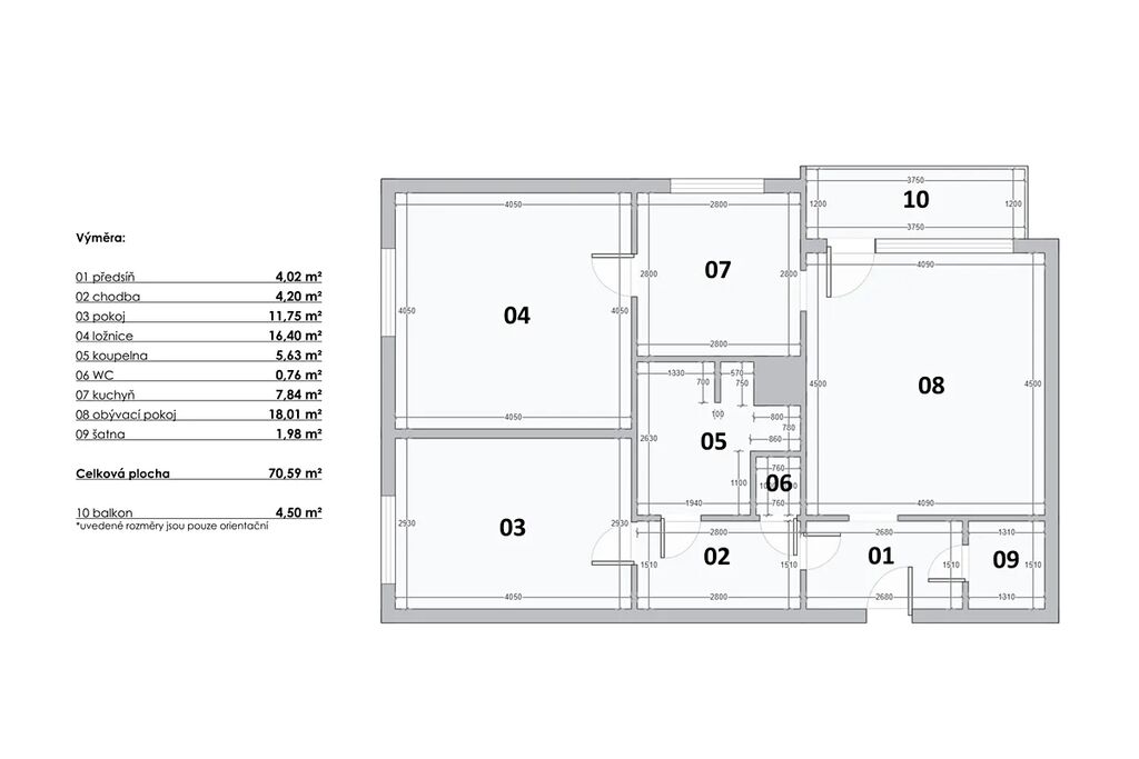
Nabízíme k prodeji útulný a světlý byt 3+1 s užitnou plochou 76 metrů čtverečních, nacházející se na šestém patře, sedmipatrového domu s výtahem na adrese Pražského 636/34. Dům je situován v klidné části s výbornou dostupností veřejné dopravy, obchodů a služeb.
Byt se pyšní nejen skvělým rozložením, ale světlostí díky jihozápadní orientaci. Dispozice bytu zahrnuje obývací pokoj, dvě neprůchozí ložnice, koupelnu, samostatné WC a praktickou komoru. Z obývacího pokoje je přístup na zasklenou lodžii o velikosti 4,5 metru čtverečního, která umožňuje pohodlné posezení s nádherným výhledem na okolí bez ohledu na počasí.
Interiér bytu je částečně zařízen. Součástí vybavení jsou spotřebiče včetně pračky. Bezpečnostní prvek je zajištěn vchodem na čip a domovním telefonem. Byt je ideální volbou jak pro rodiny s dětmi kvůli blízkosti škol, školek a parků, tak pro jednotlivce či páry, kteří ocení blízkost kultury a zábavních možností, jež nabízí metropole.
Nový majitel má možnost si na tento byt vzít hypotéku, což může proces koupi usnadnit.
Cena tohoto bytu je stanovena na 8 950 000 CZK a zahrnuje také sklep. Tato nemovitost je ideální volbou pro ty, kteří hledají komfortní bydlení v Praze s vynikajícím spojením do centra a zároveň si potrpí na klid a soukromí.
Nejenže je lokalita Hlubočepy známá svou kompletní občanskou vybaveností včetně širokého výběru škol, zdravotnických zařízení, obchodů a míst pro volný čas, ale také vyniká skvělou dopravní dostupností. Veřejná doprava včetně autobusu a metra je na dosah, stejně jako hlavní dopravní tepny, které umožní snadné a rychlé spojení s ostatními částmi Prahy i okolím.
Pokud tedy hledáte byt v Praze, který kombinuje moderní bydlení s přístupem k zeleni a zároveň nabízí výhody městského života, tento byt by rozhodně měl být ve vašem úvahu. Navštívit tento byt a prožít pocit domova je něco, co si zaslouží každý zájemce o kvalitní bydlení.
Máte zájem o tuto nemovitost?
Pomůžeme Vám!
Kontakt

Vendula Hlaváčová
Přihlášení k odběru
Nenechte si ujít nejnovější nabídky prodeje bytů 3+1 v Praze 5.
Tipy Realitymatu

Prodej bytu 5+1, Praha - Smíchov, Podbělohorská, 126 m2
21 700 000 Kč

Prodej bytu 3+kk, Praha - Třebonice, K metru, 70 m2
12 967 000 Kč
Podobné nabídky

Prodej bytu 3+1, Praha - Hlubočepy, Dreyerova, 69 m2
8 950 000 Kč

Prodej bytu 3+1, Praha - Košíře, Musílkova, 81 m2
13 900 000 Kč

Prodej bytu 3+1, Praha - Stodůlky, Janského, 75 m2
8 347 500 Kč

Prodej bytu 3+1, Praha - Stodůlky, Kurzova, 75 m2
7 199 900 Kč