Pronájem rodinného domu, Zlonín, Hlavní, 78 m2
Hlavní, Zlonín
(nájemné 30.000Kč, provize 30.000Kč, kauce 35.000Kč)
Popis
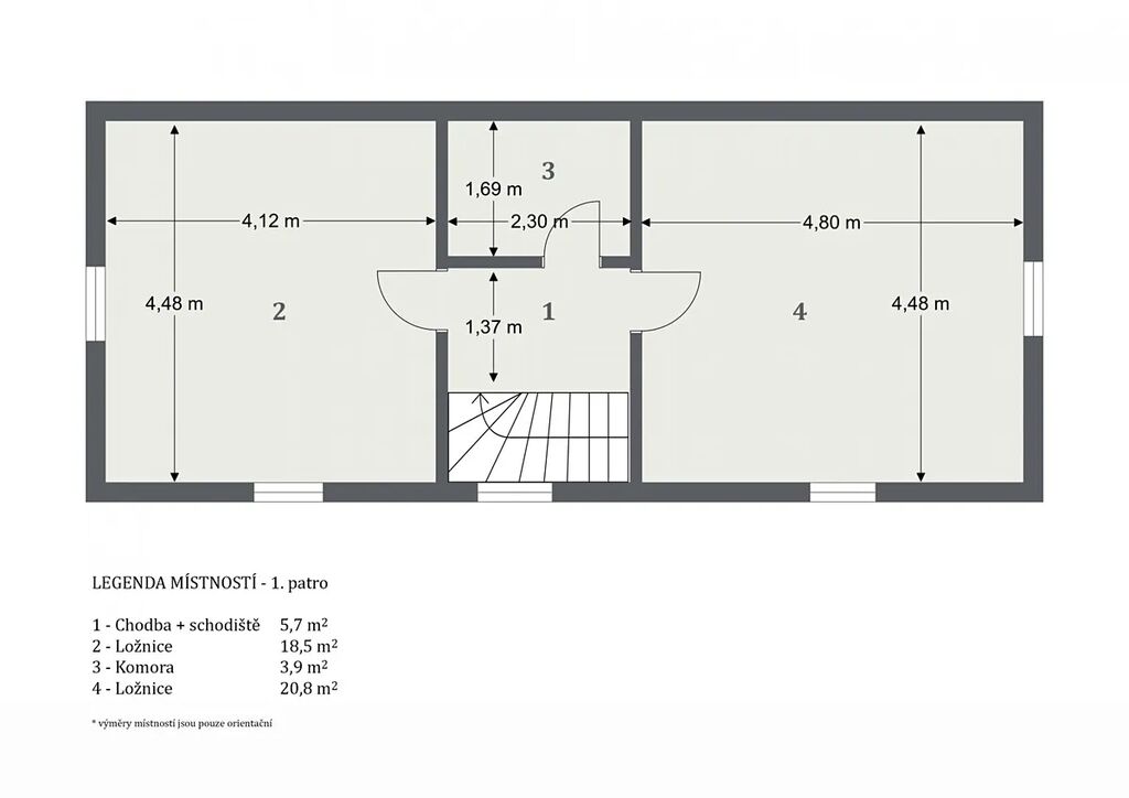
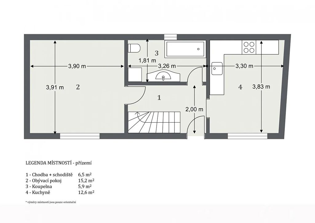
Exkluzivně nabízíme k pronájmu rodinný dům 3+1 o užitné ploše 78 m2, který se nachází na pozemku o velikosti 165 m2.
V přízemí je vstupní chodba, obývací pokoj, kuchyň se spotřebiči a myčkou, koupelna a WC. V patře naleznete dva samostatné pokoje a šatnu. Nemovitost se nabízí bez zařízení.
Vytápění je zajištěno elektrickým kotlem s radiátory.
Finanční podmínky pronájmu:
Nájemné: 30 000 Kč měsíčně
Záloha na vodu: 500 Kč / osoba / měsíc
Záloha na elektřinu (včetně vytápění): cca 6 000 Kč / měsíc. Elektřina bude převedena na nájemníka.
Kauce: 35 000 Kč
Provize realitní kanceláři: 30 000 Kč
Zahrada nabízí příjemné posezení pod dřevěnou pergolou. Je kompletně oplocená s udržovaným trávníkem. Parkování pro jedno auto na pozemku.
Zlonín je klidná a vyhledávaná obec v těsné blízkosti Prahy. Nabízí výbornou dopravní dostupnost přímé vlakové spojení do centra Prahy (Hlavní nádraží cca 35 minut), autobusové linky i rychlý nájezd na D8. V obci najdete základní občanskou vybavenost včetně školky, obchodu, restaurace i dětského hřiště. V okolí je hezká příroda a možnosti pro volnočasové aktivity. Ideální místo pro rodinné bydlení s výhodami života u Prahy.
Zaujala vás nabídka? Pro více informací kontaktujte makléřku!
Máte zájem o tuto nemovitost?
Klára Kyliánková - realitní makléřka
Chmelova 550, Kralupy nad Vltavou
Pomůžeme Vám!
Pomůžeme Vám!
Kontakt

Klára Kyliánková
Přihlášení k odběru
Nenechte si ujít nejnovější nabídky pronájmu rodinných domů v Zloníně.
Tipy Realitymatu