Prodej pozemku pro bydlení, Kozlov, 607 m2

Kozlov


3 400 Kč /za metr čtvereční
HYPOTÉKA od 15 Kč /měs.
Regionální dodavatelé v Kozlově

Popis

Chcete koupit pozemek a obratem začít stavět? Zde je díky platnému stavebnímu povolení taková příležitost.

Nabízíme k prodeji rovinatý pozemek v obci Kozlov u Jihlavy. Jedná se o velmi atraktivní lokalitu, která kombinuje klid venkovského prostředí s výbornou dostupností do krajského města Jihlava, kam se pohodlně dostanete během několika minut jízdy. To samé platí i o nájezdu na dálnici D1. Pozemek se nachází v obci s funkčním zázemím najdete zde mateřskou a základní školu, hospodu, obchod nebo sportovní areál.

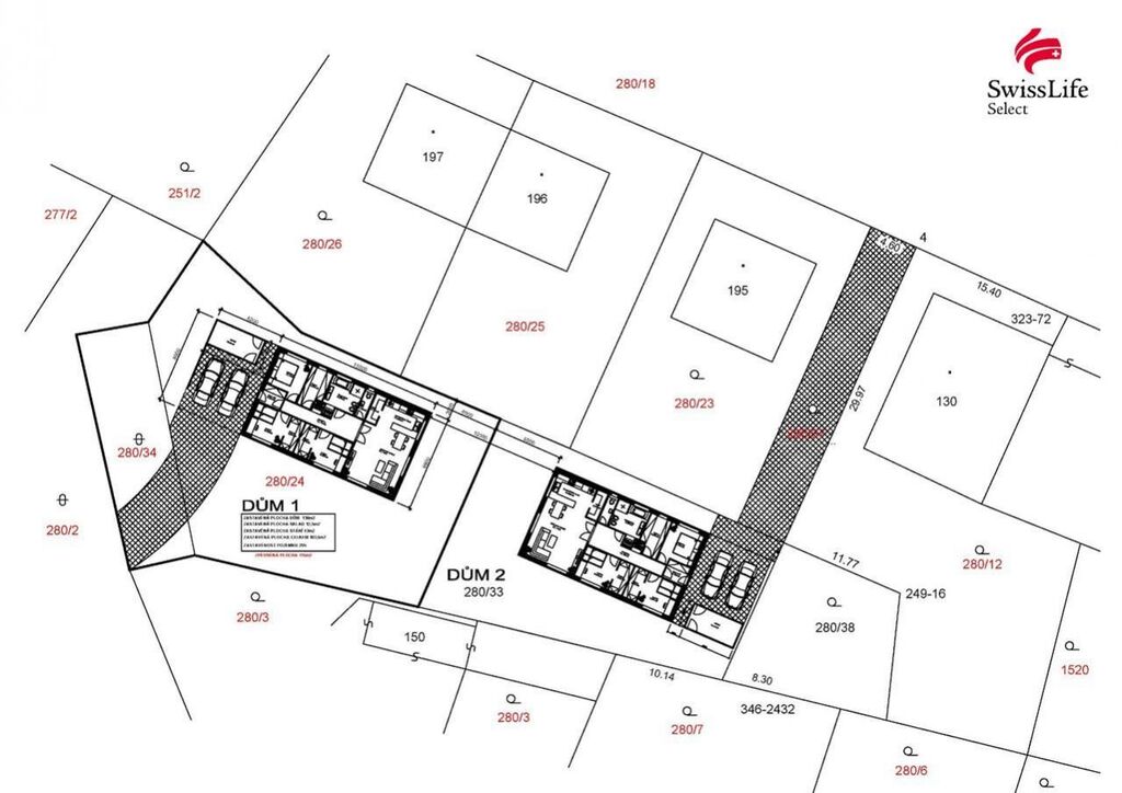
Samotný pozemek je rovinatý, s kvalitní půdou a nabízí ideální podmínky pro výstavbu rodinného domu. Možností je také na již rozděleném pozemku postavit dva rodinné domy s tím, že každý by měl svoje napojení na sítě a svůj příjezd, jak je patrno z mapky a přiložené studie. Zde se tedy jedná o prodej menší části nabízeného pozemku, a to o velikosti 607 metrů.

Na pozemku je k dispozici dřevěná kůlna k uložení nářadí, což se na stavbě vždy hodí. Veškeré inženýrské sítě se nacházejí na hranici pozemku, což výrazně usnadňuje napojení a snižuje náklady na budoucí výstavbu.

Kozlov je vyhledávanou lokalitou díky své poloze, příjemné atmosféře a okolní přírodě. Místo je ideální pro ty, kteří hledají klidné bydlení s veškerým komfortem a rychlým spojením do města.

Pro více informací nebo sjednání prohlídky nás neváhejte kontaktovat. Rádi Vám poskytneme veškeré detaily a pomůžeme i s kompletním právním a finančním servisem.

Cena
3 400 Kč /za metr čtvereční Spočítat hypotéku
Aktualizováno
6. 3. 2026
Adresa
Kozlov
ID
24655
Plocha pozemku
607 m2
Plyn
Plynovod
Odpad
Veřejná kanalizace
Voda
Vodovod
Bezbarierový přístup

Máte zájem o tuto nemovitost?

Tímto, v souladu s nařízením Evropského parlamentu a Rady (EU) 2016/679, v platném znění, prohlašuji, že mi je alespoň 16 let a uděluji tak svůj souhlas se zpracováním zadaných údajů (jméno, telefon, e-mail, ip adresa) společnosti B3 Technology, s.r.o., IČ: 07330600, se sídlem Novostavby 126/23, 435 11 Lom (správce dat), za účelem předání dotazu z tohoto formuláře Vámi vybranému inzerentovi a zpětného kontaktování mé osoby. Osobní údaje bude správce zpracovávat manuálně i automaticky přímo prostřednictvím svých zaměstnanců. Informace předané tímto formulářem budou uloženy v databázi správce maximálně po dobu 10 let. Odvolání souhlasu s uložením a zpracováním poskytnutých dat lze e-mailem na info@realitymat.cz. V případě podezření na neoprávněné použití Vámi poskytnutých údajů máte právo předat podnět k šetření Úřadu pro ochranu osobních údajů. Více informací
Chystáte se prodat nemovitost?
Pomůžeme Vám!

Kontakt

Petr Mašek

Petr Mašek

Přihlášení k odběru

Nenechte si ujít nejnovější nabídky prodeje pozemků pro bydlení v Kozlově (okr. Jihlava).

Podobné nabídky