Pronájem bytu 4+kk, Brno, Lidická, 125 m2
Lidická, Brno, Veveří
Popis
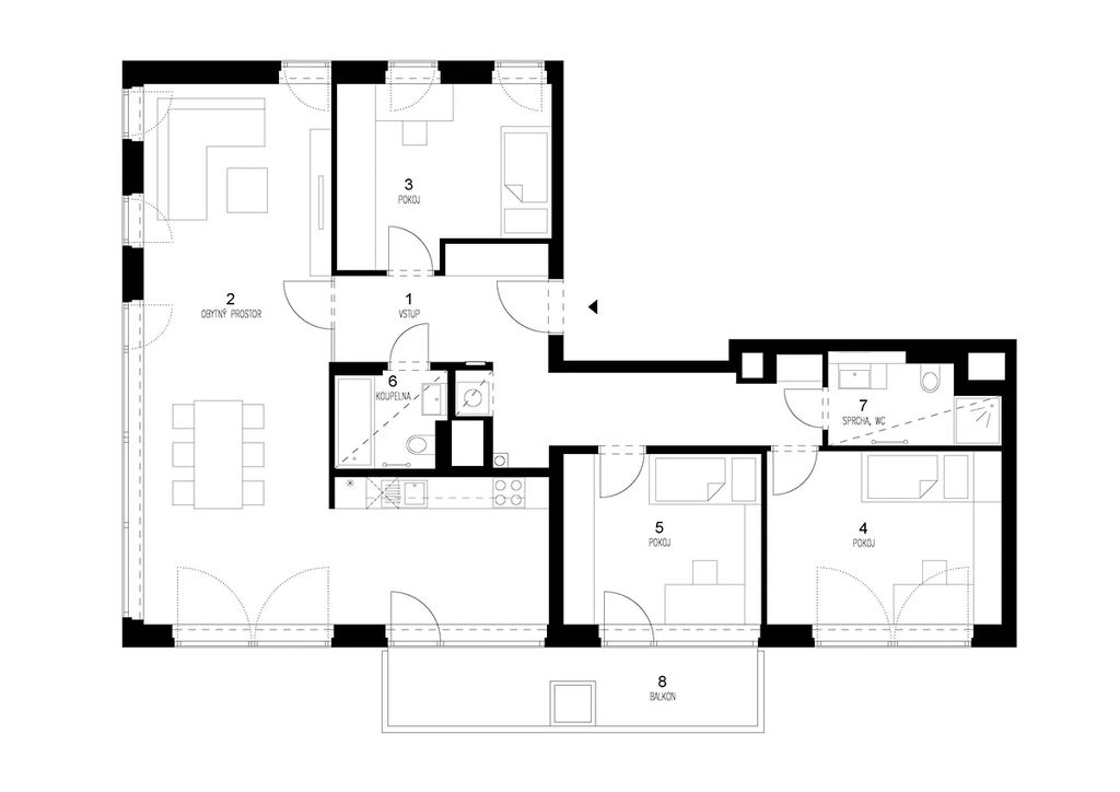
V exkluzivním zastoupení majitele Vám nabízíme Byt 4+kk v třináctém patře v nejvyšší ze tří budov Rezidence Lužánky (ul. Lidická) s krásným výhledem na Lužánecký park. Tento byt tvoří celou stranu tohoto domu a přehlédne vedlejší budovy, výhled se rozšiřuje o centrum Brna i Řečkovice
- Krásný a světlý byt byl nadstandardně zařízen architektonickou kanceláří architekti.in
- Rozloha bytu je 125m2 včetně 12m2 velkého balkónu
- V obývacím pokoji jsou velká francouzská okna a stejně jako na všech ostatních oknech jsou textilní rolety pro vytvoření většího soukromí a komfortu. Rozloha obývacího pokoje s jídelnou a kuchyní je bezmala 40m2. Vztup na prostorný balkón
- Byt je vybavený moderní, na míru vyrobenou kuchyňskou linkou a se všemi spotřebiči značky Whirpool (lednička, myčka, trouba, sklokeramická deska, mikrovlnná trouba)
- V ložnici je na míru zhotovená vestavěná skřín s efektivně vymyšleným vnitřním řešením s posuvnými dveřmi
- Koupelna je vybavena jak vanou tak I sprchovým koutem, toaletou a pračkou
- Oddělená toaleta pro hosty
- Klimatizace
- Možnost připojení kabelové TV a internetu přes poskytovatele DialTelecom
- Byt se pronajímá nevybavený
Jako doplňkové služby poskytujeme:
- Možnost pronájmu parkovacího stání
- Úplné vybavení bytu Rent&Live
- Jednorázový nebo pravidelný úklid
Máte zájem o tuto nemovitost?
Prašnice 943/17, Brno, Jundrov
Pomůžeme Vám!
Pomůžeme Vám!
Kontakt

Lukáš Patočka
Přihlášení k odběru
Nenechte si ujít nejnovější nabídky pronájmu bytů 4+kk v Brně.