Prodej bytu 3+1, Jihlava, Srázná, 78 m2 (ID: 1969799)
Srázná, Jihlava
Popis
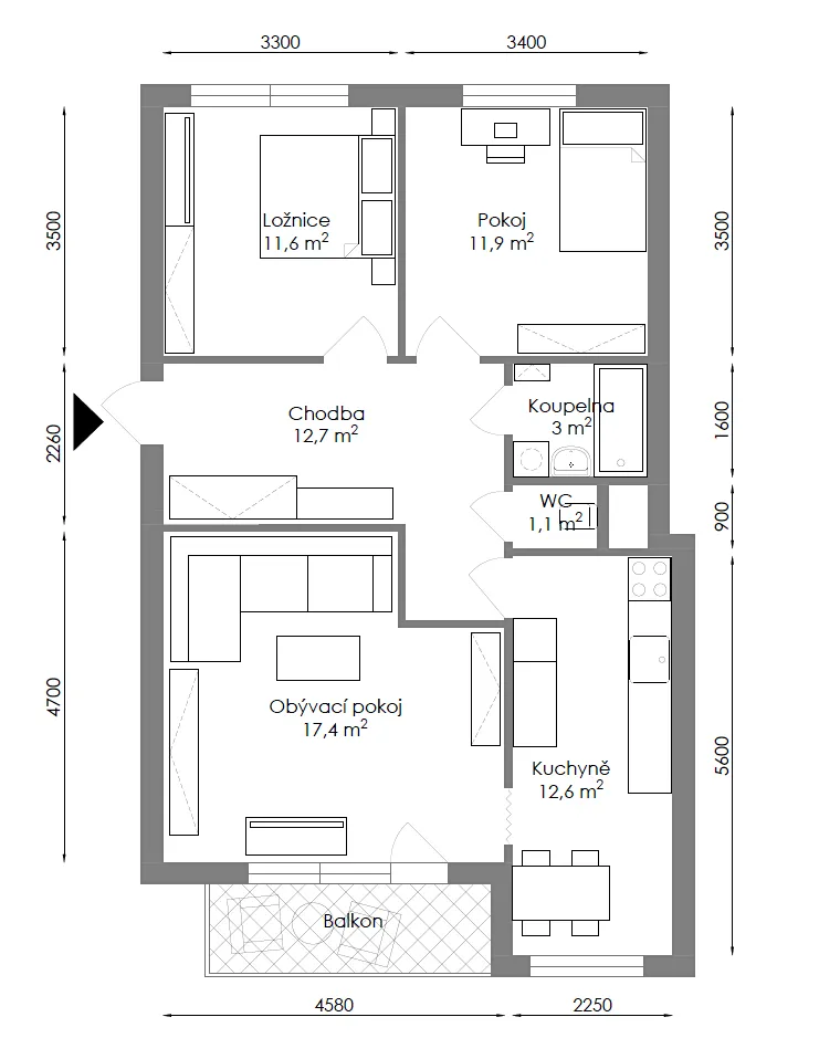
Ve výhradním zastoupení nabízíme prodej bytu 3+1 v osobním vlastnictví, o výměře 74 m² + 4,8 m² balkon v Jihlavě na ulici Srázná. Byt se nachází v 1.NP panelového domu s výtahem.
Byt disponuje vstupní chodbou se skříní, samostatným WC, koupelnou s vanou, kuchyňskou linkou se spotřebiči, obývacím pokojem, ložnicí a dětským pokojem. Z obývacího pokoje je přímý vstup na balkon. Balkon prošel kompletní rekonstrukcí, nové prosklené tabule + UV zastínění pomocí rolet. Balkon je orientovaný do zeleně a nabízí tak nejen krásné výhledy, ale i klid. K bytu náleží také sklep 2 m².
V bytě je laminátová podlaha (ložnice dětský pokoj), vinyl (kuchyň, obývací pokoj) a dlažba (chodba, koupelna, WC). Kuchyň po kompletní rekonstrukci – voda, odpady, elektřina. Nové odpady i voda v koupelně a na WC. Okna plastová dvojskla. Celý dům prošel revitalizací. Vytápění bytu i ohřev vody je zajištěn z centrální kotelny (plyn). Energetická náročnost budovy je C. Měsíční náklady na bydlení jsou cca 8 000 Kč.
Byt se nachází v bezprostřední blízkosti centra města na ulici Srázná. Lokalita tedy nabízí veškerou občanskou vybavenost jen pár kroků od bytu. Zastávky MHD, obchod, pošta, kavárny, restaurace, dětské hřiště, mateřská škola, střední škola, vše na dosah ruky. V Jihlavě je možné využívat MHD, vlak nebo autobusové spojení. Do hlavního města Prahy je to 120 km po D1, do Brna 90 km po D1. V okolí Jihlavy jsou velmi dobré pracovní příležitosti, díky velkému množství průmyslu.
Samozřejmostí je rychlé vyřízení hypotéky za velmi příznivých podmínek.
Máte zájem o tuto nemovitost?
Hruškové Dvory 99, Jihlava
Pomůžeme Vám!
Pomůžeme Vám!
Kontakt

Iveta Uhrová
Přihlášení k odběru
Nenechte si ujít nejnovější nabídky prodeje bytů 3+1 v Jihlavě.
Podobné nabídky

Prodej bytu 3+1, Jihlava, Demlova, 69 m2
4 300 000 Kč

Prodej bytu 3+1, Jihlava, U Hřbitova, 71 m2
4 400 000 Kč

Prodej bytu 3+1, Jihlava, Vrchlického, 74 m2
4 550 000 Kč

Prodej bytu 3+1, Jihlava - Antonínův Důl, 79 m2
2 699 000 Kč