Prodej chalupy, Kokořín, 375 m2 (ID: 1969791)
Kokořín
(včetně provize, včetně právního servisu)
Popis
Nabízíme Vám k prodeji chalupu/dům, s fungující restaurací, v samém srdci obce Kokořín.
Dům je určen pro každého, kdo ocení život v přírodě, na turisticky atraktivním místě, a využije tak potenciál vlastního podnikání v gastronomii, s možností bydlení, nebo využije celý dům pouze pro účely bydlení.
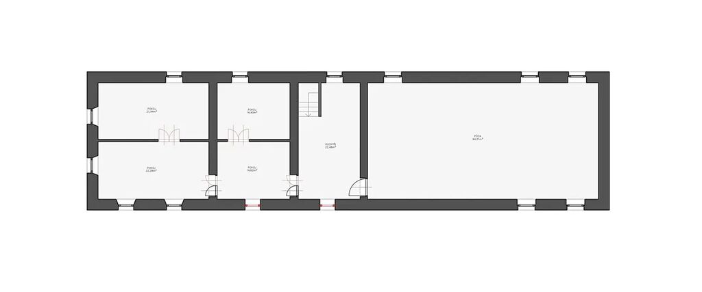
Restaurace je zkolaudována, a v celém domě proběhla rekonstrukce elektrických rozvodů, topení, vodovodních trubek a odpadních trubek.
Nabízí se tu velká řada možností s rozšířením služeb na ubytování(pension, apartmány), s využitím volných ploch v domě nebo ve stodole která je součástí pozemku.
Další možností je zvětšit si obytnou plochu pro vlastní potřeby.
Objekt je celý uzavřený se vstupní bránou, pro účely restaurace je k dispozici venkovní posezení, pro vlastní potřeby je k dispozici zahrada.
Na zahradě je mnoho ovocných stromů a okrasných a keřů, na dvorku je momentálně nevyužitý prodejní stánek.
Stodola je v současnosti využívána jako sklad surovin a nápojů, v druhé části je dílna.
Více informací v RK.
Máte zájem o tuto nemovitost?
Uruguayská 380/17, Praha
Pomůžeme Vám!
Pomůžeme Vám!
Kontakt

Vratislav Netolický
Přihlášení k odběru
Nenechte si ujít nejnovější nabídky prodeje chalup v Kokoříně.
Tipy Realitymatu

Prodej rodinného domu, Tuhaň, 220 m2
8 300 000 Kč

Prodej rodinného domu, Libiš, Polní, 148 m2
12 400 000 Kč
Podobné nabídky

Prodej chalupy, Dobřeň, 154 m2
8 290 000 Kč

Prodej chalupy, Mšeno, 113 m2
4 990 000 Kč

Prodej chalupy, Vysoká, 55 m2
3 990 000 Kč

Prodej rodinného domu, Kokořín - Janova Ves, 250 m2
12 892 000 Kč