Pronájem bytu 3+kk, Humpolec, Masarykova, 71 m2
Masarykova, Humpolec
(Požadovaný nájem + poplatky, jistota, provize RK)
Popis
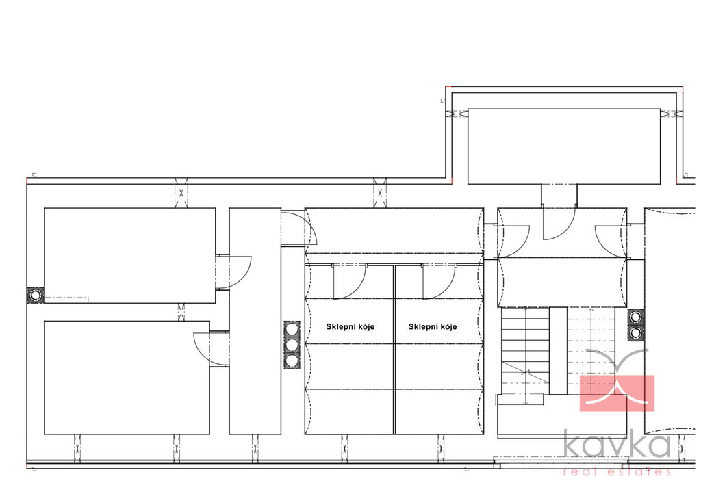
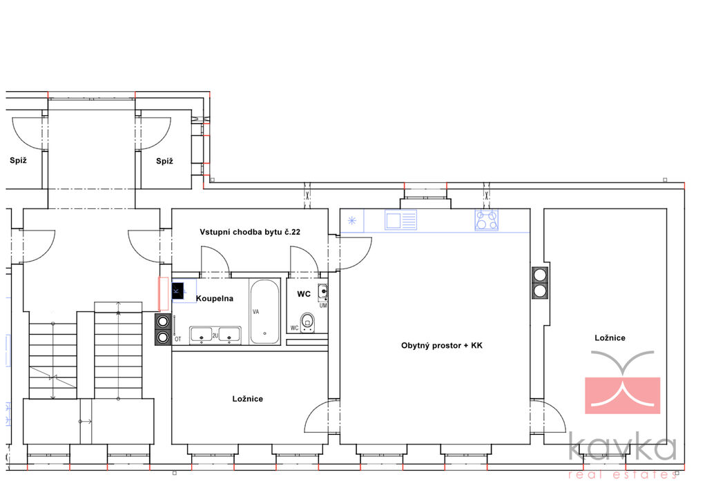
KAVKA REAL ESTATES Vám exkluzivně zprostředkují k pronájmu nový byt o dispozici 3+KK, užitné ploše 71,24 m² v centru města Humpolec. Byt se nachází v 2.NP třípodlažního nově realizovaného bytového domu o 6-ti bytech a je bez výtahu. U realizace tohoto objektu je kladený důraz na moderní a pohodlné bydlení v centru města Humpolec. Dispoziční členění: vstupní chodba, koupelna (vana), samostatné WC, kuchyň + obývací pokoj, pokoj č. 1, pokoj č. 2. Součástí bytu je spíž na chodbě vedle bytu a sklepní kóje v suterénu bytového domu. Dále je zde možnost pronájmu venkovního parkovacího stání. Vytápění a ohřev vody je řešeno kondenzačním plynovým kotlem (podlahové vytápění) v kuchyni je ohřev vody řešen přes průtokový ohřívač. Nízké provozní náklady. Velmi dobrá lokalita. Kolaudace 2025. Veškerá občanská vybavenost nedaleko bytu. V případě zájmu o více informací či prohlídku kontaktujte makléře společnosti.
Máte zájem o tuto nemovitost?

Karlovarská 1104/14b, Praha
Pomůžeme Vám!
Pomůžeme Vám!
Kontakt

Lukáš Kavka
Přihlášení k odběru
Nenechte si ujít nejnovější nabídky pronájmu bytů 3+kk v Humpolci.