Prodej rodinného domu, Rajhrad, Syrovická, 175 m2
Syrovická, Rajhrad
(včetně provize RK)
Popis
Nabízím k prodeji rodinný dům (č.2) o dispozici 5+kk, se zastřešeným parkovacím stáním na vlastním pozemku (283 m²), ve městě Rajhrad.
Rodinný dům o podlahové ploše 175 m² je ve fázi výstavby a je jeden ze čtyř nízkoenergetických rodinných domů na ulici Syrovická, v Rajhradě.
Energetické náročnost domu je klasifikována do třídy A - mimořádně úsporné.
VÝSTAVBA ZAHÁJENA 9/2025
Dispozice domu:
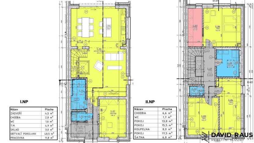
1.NP
Vstupní dveře vedou do zádveří ( 4,5 m²), vedoucí do chodby (2,8 m²) s přístupem na samostatné WC ( 1,6 m²), do technické místnosti ( 4,9 m²), pracovny (11,8m²), skladu (3,0 m²)a otevřeného obývacího pokoje s kuchyňským koutem ( 48,5 m²). Ústředním prvkem propojující jednotlivá patra domu je schodiště z obývacího pokoje.
2.NP
Do druhého patra domu vystoupáme po schodišti na chodbu ( 6,6 m²), kde se nachází tři samostatné pokoje, které mohou sloužit jako samostatné dva dětské pokoje ( 13,8m², 15,5m²) a ložnice (17,5m²) ze které vedou dveře do šatny (6,8m²). K dispozici na patře je prostorná koupelna ( 8,0 m²) a samostatné WC ( 1,7m²).
Základní informace :
- výstavba RD na klíč (5+kk )
- podlahová plocha domu 175 m²
- užitná plocha domu 147 m²
- výměra pozemku 283 m²
- fotovoltaická elektrárna
- podlahové teplovodní topení
- tepelné čerpadlo
- zastřešené parkovací stání
- perfektní občanská vybavenost a dostupnost do města Brna
- atraktivní lokalita pro bydlení
- stavba zahájena 9/2025
Veškerý právní servis zajištěn. Nabízím možnost financování. Pro více informací kontaktujte makléře.
Máte zájem o tuto nemovitost?

Jiřikovského 260/20, Brno
Pomůžeme Vám!
Pomůžeme Vám!
Kontakt

Ing. David Raus
Přihlášení k odběru
Nenechte si ujít nejnovější nabídky prodeje rodinných domů v Rajhradu.
Tipy Realitymatu

Prodej rodinného domu, Syrovice, 139 m2
12 350 000 Kč
Podobné nabídky

Prodej rodinného domu, Rajhrad, 95 m2
5 499 000 Kč

Prodej rodinného domu, Rajhrad, 165 m2
13 900 000 Kč

Prodej rodinného domu, Rajhrad, Hrůzova, 72 m2
9 500 000 Kč

Prodej rodinného domu, Rajhrad, Tovární, 220 m2
10 490 000 Kč