Prodej pozemku pro bydlení, Nové Město nad Metují, 1128 m2 (ID: 1968614)
Nové Město nad Metují
(cena k jednání)
Popis
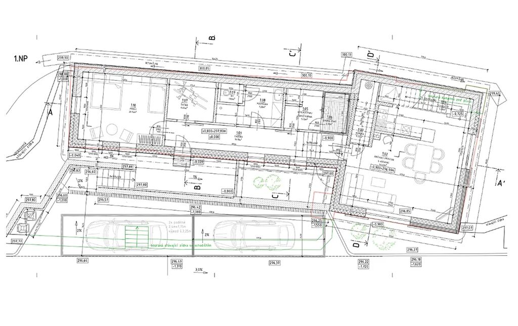
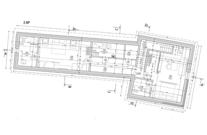
Z pozice vlastníka pozemku nabízím prodej pozemku s vydaným pravomocným stavebním povolením pro výstavbu rodinného domu. Jedná se o pozemek v ulici Pod Hradbami o výměře 1.128 m2. Vyprojektovaný dům má zastavěnou plochu 145 m2, celková užitná plocha je 220 m2. Jedná se o klidné místo pod náměstím, v dosahu občanské vybavenosti. Nedaleko probíhá výstavba letního areálu s koupalištěm. V případě zájmu o více informací mne neváhejte kontaktovat.
Máte zájem o tuto nemovitost?
Sokolovská 668/136d, Praha
Pomůžeme Vám!
Pomůžeme Vám!
Kontakt

Jan Hospodář
Přihlášení k odběru
Nenechte si ujít nejnovější nabídky prodeje pozemků pro bydlení v Novém Městu nad Metují.
Podobné nabídky

Prodej pozemku pro bydlení, Žernov, 1504 m2
2 950 000 Kč

Prodej pozemku pro bydlení, Litoboř, 1339 m2
1 990 000 Kč