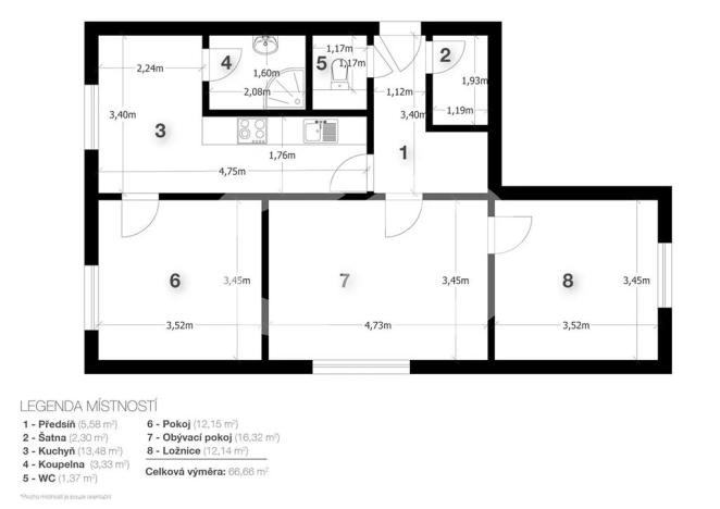
Prodej bytu 3+1, Volary, Sídl. Míru, 65 m2
Sídl. Míru, Volary
Výkup a prodej starého nábytku
Popis
Hledáte byt, který si můžete upravit přesně podle svých představ? Pak pro vás mám ideální příležitost.
Ve městě Volary, na samém okraji krásné Šumavy, nabízím ke koupi družstevní byt o dispozici 3+1 a podlahové ploše 65 m².
Byt se nachází v panelovém domě po kompletní rekonstrukci – dům má zateplenou fasádu, nová okna, čisté a udržované společné prostory a příjemné sousedské vztahy, které v domě skutečně fungují. Okolí domu je klidné, zelené a působí velmi upraveně – ideální prostředí pro rodinu nebo kohokoli, kdo hledá pohodu a klidné bydlení.
Samotný byt je v původním, ale plně funkčním a udržovaném stavu. Nabízí tak možnost vytvořit si domov přesně podle sebe – od nového uspořádání až po vlastní design interiéru.
Teplo je zajištěno dálkovým vytápěním, vodovod i kanalizace jsou napojeny na obecní sítě.
Měsíční náklady pro čtyřčlennou rodinu činí 6 166 Kč, což dělá z tohoto bytu úsporné a dostupné bydlení i do budoucna.
Byt je ideální volbou pro ty, kteří hledají klidné místo k bydlení a chtějí si domov zařídit podle sebe.
A co samotné Volary?
Tohle malebné město leží v srdci Šumavy a je ideálním místem pro všechny, kteří mají rádi přírodu, turistiku a klidný životní rytmus. Najdete zde veškerou občanskou vybavenost – školy, školku, obchody, restaurace i vlakové spojení – a zároveň jste jen pár minut od nádherných lesů, cyklostezek a lyžařských tras.
Prodávající si vyhrazuje právo vybrat kupujícího na základě jím zvolených kritérií.
Máte zájem o tuto nemovitost?
Slámova 965, Prachatice
Pomůžeme Vám!
Pomůžeme Vám!
Kontakt

Lenka Čajanová
Přihlášení k odběru
Nenechte si ujít nejnovější nabídky prodeje bytů 3+1 v Volarech.
Podobné nabídky

Prodej bytu 3+1, Volary, Sídl. Míru, 66 m2
2 400 000 Kč

Prodej bytu 3+1, Volary, Sídl. Míru, 69 m2
1 950 000 Kč

Prodej bytu 3+1, Volary, Sídl. Míru, 66 m2
2 100 000 Kč

Prodej bytu 3+1, Malovice, 80 m2
2 600 000 Kč