Prodej bytu 3+1, Nové Město na Moravě, Mírová, 182 m2 (ID: 1966927)
Mírová, Nové Město na Moravě
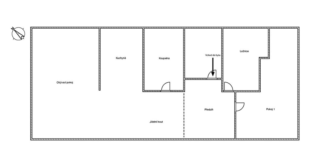
Popis
Prostorný podkrovní byt 3+1 s půdou a sklepem, ul. Mírová – Nové Město na Moravě
Nabízíme ke koupi nadstandardní podkrovní byt o dispozici 3+1 a celkové výměře 182,5 m², umístěný v nadstavbě bytového domu na ulici Mírová v Novém Městě na Moravě. Byt se nachází ve stávající nadstavbě a zaujme především svou rozlohou, praktičností i zajímavým dispozičním řešením.
Byt má samostatný vstup do patra, který zajišťuje klid a soukromí. Dominantou je prostorná předsíň, ze které vedou vstupy do jednotlivých místností – pokoje, ložnice, velké koupelny s WC a především do rozsáhlé obytné místnosti, která propojuje obývací pokoj, kuchyni a jídelnu. Celý prostor působí vzdušně a příjemně díky velkým rozměrům a světlosti.
Z předsíně je přístup i do vlastního půdního prostoru, který se rozkládá nad celým bytem a nabízí obrovský potenciál.
K bytu dále náleží velký sklep, ideální pro uložení věcí nebo sportovního vybavení.
Dům se nachází v klidné části města, v docházkové vzdálenosti od centra. Veškerá občanská vybavenost je k dispozici– v blízkosti jsou restaurace, obchodní centrum, školy, školky, lékaři i možnosti volnočasového vyžití.
Tato nabídka je ideální volbou pro ty, kteří hledají prostorné a komfortní bydlení s možností dalšího využití prostoru v žádané lokalitě.
Máte zájem o tuto nemovitost?
Červený kopec 824/24, Brno, Štýřice
Pomůžeme Vám!
Pomůžeme Vám!
Kontakt

Ilona Peňázová
Přihlášení k odběru
Nenechte si ujít nejnovější nabídky prodeje bytů 3+1 v Novém Městu na Moravě.
Tipy Realitymatu
Podobné nabídky

Prodej bytu 3+1, Žďár nad Sázavou, U Taferny, 72 m2
5 500 000 Kč

Prodej bytu 3+1, Velké Meziříčí, Poštovní, 70 m2
4 600 000 Kč