Prodej bytu 2+kk, Praha - Vinohrady, Libická, 57 m2
Libická, Praha, Vinohrady
(Včetně provize RK. Hypotéka možná.)
Popis
Nabízíme k prodeji luxusní byt ve zrekonstruovaném cihlovém domě na Vinohradech, ul. Libická. 400 m od náměstí Jiřího z Poděbrad.
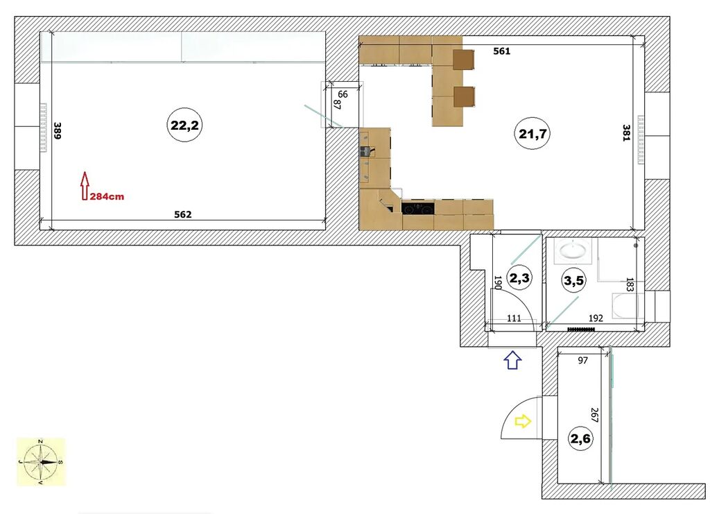
Dispozice 2+kk, 50,5 m2 + 6 m2 skllep + společný balkon 2,6 m2 hned vedle bytu, 4. patro z 5 s výtahem. Výborná dostupnost MHD (5 min. chůze na |M| Flora nebo Jiřího z Poděbrad).
Betonový dvorek ve vnitrobloku.
Orientace oken na jih a sever.
Vysoké stropy (284 cm) se sádrokartonovými podhledy s bodovým osvětlením a s dálkově ovládaným barevným led podsvícením.
Kuchyňská linka se všemi spotřebiči. Na podlahách vinyl a dlažba. Koupelna s oknem, sprchovým koutem a s WC. Byt je kompletně zařízen nábytkem včetně obrovské vestavěné skříně v ložnici.
Vytápění novým plynovým kotlem JUNKERS. Plastová okna i stoupačky.
Velký zděný (6 m2) sklep. Kabelová televize a internet optickým kabelem (2 Gb/s). Parkování před domem – modrá zóna Praha 3. Veškerá občanská vybavenost v okruhu 300 m.
Velmi nízké zálohy na služby ve výši 2.068,- Kč včetně fondu oprav ve výši 1.010,-Kč.
Skvělá investice! Byt je v současné době obsazen řádně platícím nájemcem za 26.000,-Kč + poplatky. Nájemní smlouva končí za 3 měsíce. Pokud bude mít nový majitel zájem o prodloužení, nájemce toto uvítá.
Více fotografií (33) na stránkách blanikreality pod ID: 25282.
Máte zájem o tuto nemovitost?
Slovenská 967/1, Praha, Vinohrady
Pomůžeme Vám!
Pomůžeme Vám!
Kontakt

Mgr. Bohuslav Papírník
Přihlášení k odběru
Nenechte si ujít nejnovější nabídky prodeje bytů 2+kk v Praze 3.
Tipy Realitymatu

Prodej bytu 3+1, Praha, Biskupcova, 83 m2
9 990 000 Kč
Podobné nabídky

Prodej bytu 2+kk, Praha - Žižkov, Jeseniova, 60 m2
7 800 000 Kč

Prodej bytu 2+kk, Praha - Žižkov, Jeseniova, 45 m2
8 499 900 Kč

Prodej bytu 2+kk, Praha - Žižkov, Biskupcova, 42 m2
6 750 000 Kč

Prodej bytu 2+kk, Praha - Žižkov, Květinková, 89 m2
10 400 000 Kč