Pronájem bytu 3+kk, Praha - Kunratice, Za valem, 80 m2
Za valem, Kunratice - Praha-Kunratice
(vratná jistota, náklady na bydlení 4.400 Kč, poplatek za podnájem)
Popis
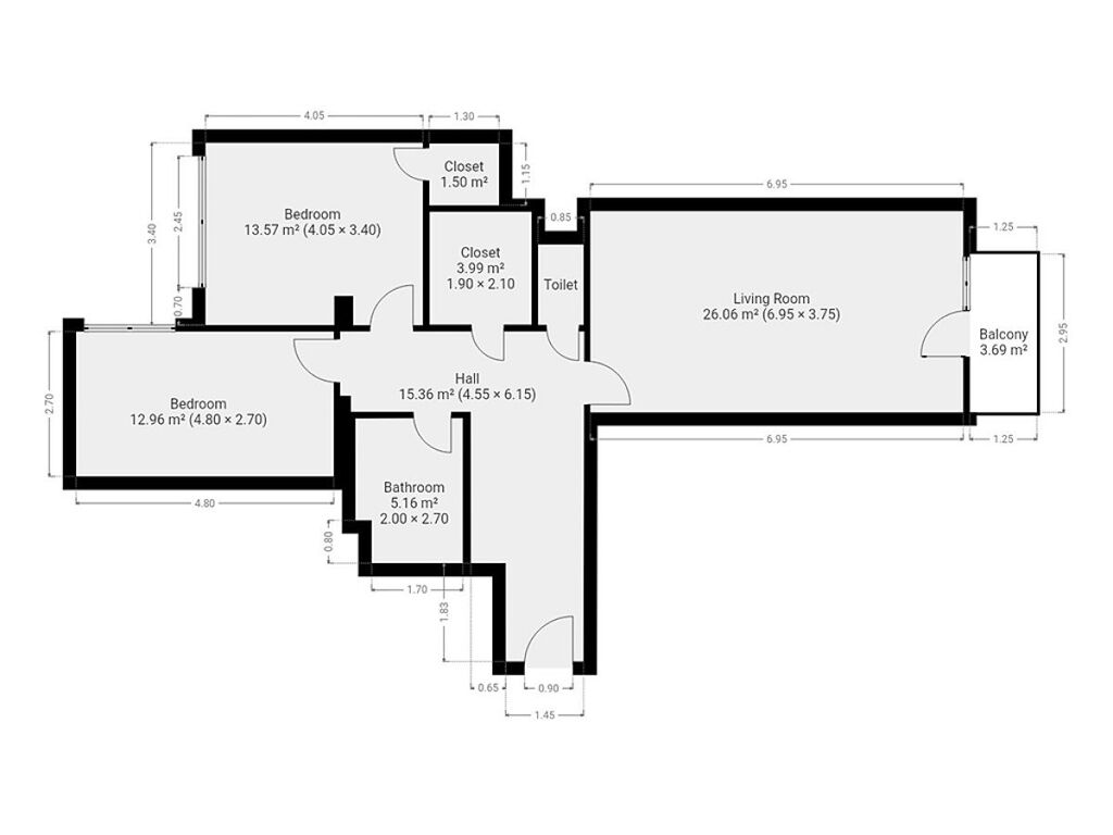
Nabízíme k dlouhodobému podnájmu prostorný a světlý byt o dispozici 3+kk a celkové výměře 80 m², který se nachází v 5. patře udržovaného bytového domu s výtahem.
Byt je částečně vybavený, což dává novým nájemníkům možnost dotvořit si interiér podle vlastního vkusu. Moderní kuchyňská linka je plně vybavena – najdete zde lednici s mrazákem, elektrickou a mikrovlnnou troubu, indukční varnou desku, digestoř i myčku nádobí. Součástí kuchyně je také praktická komora s pračkou. Na kuchyň plynule navazuje obývací pokoj s pohodlnou sedací soupravou, jídelním koutem a přímým vstupem na balkon, který poskytuje příjemné místo k odpočinku. Byt dále nabízí dva samostatné pokoje, které lze využít jako ložnice, dětský pokoj či pracovnu. Koupelna je vybavena vanou, umyvadlem a pračkou, toaleta je samostatná. Velkou výhodou jsou také dvě úložné místnosti, ideální například jako šatna nebo komora.
V okolí domu je kompletní občanská vybavenost – supermarket Lidl, restaurace, pošta, lékařská péče, školy a školky. Milovníky přírody potěší Kunratický les, vzdálený jen pár minut chůze. Výbornou dopravní dostupnost zajišťují blízké zastávky autobusů s rychlým spojením na metro.
Byt je volný k nastěhování ihned.
Energetická náročnost budovy: třída G (průkaz nedodán).
Máte zájem o tuto nemovitost?

Milady Horákové 1957/13, Brno
Pomůžeme Vám!
Pomůžeme Vám!
Kontakt

Miloslava Kačerová
Přihlášení k odběru
Nenechte si ujít nejnovější nabídky pronájmu bytů 3+kk v Praze 4.
Tipy Realitymatu