Prodej rodinného domu, Hřiměždice, 418 m2 (ID: 1965419)
Hřiměždice
Popis
Exkluzivní nemovitost s dvěma stavbami a vlastním molem u Slapské přehrady
Nabízíme jedinečnou příležitost ke koupi exkluzivního rekreačního areálu na pozemku o velikosti 2 842 m², situovaného na samém okraji zástavby s přímým přístupem k vodě. Součástí areálu jsou dva samostatné rekreační objekty, venkovní bazén, venkovní kuchyně a přístřešky pro auta. Lokalita nabízí maximální soukromí a nádhernou přírodu v bezprostřední blízkosti Slapské přehrady.
Objekt 1 – Rekreační chata
Zastavěná plocha: 127 m²
Pozemek: 2 140 m²
Dispozice:
Přízemí: prostorný obývací pokoj s dvěma krbovými kamny a kuchyňským koutem se vstupem na terasu, ložnice se šatnou, WC, předsíň
Patro: 3 ložnice, každá s vlastním sociálním zařízením a vstupem na terasu
Suterén: sklep, technická místnost
Technologie: bioklárna (biologická čistička), elektrické vytápění, solární kolektory na ohřev vody
Bezpečnost: kamerový zabezpečovací systém
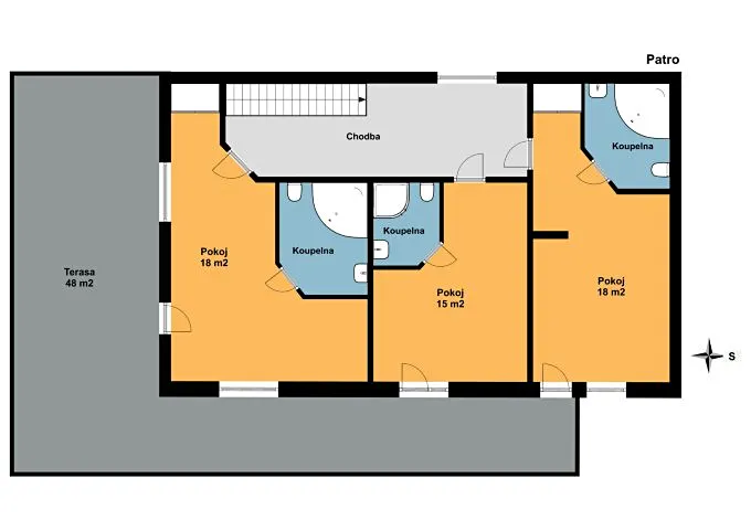
Objekt 2 – Novostavba rodinného domu (2016)
Zastavěná plocha: 146 m²
Pozemek: 702 m²
Dispozice:
Přízemí: prostorný obývací pokoj s krbovými kamny a velkorysým prosklením, kuchyň, sauna, fitness, garáž pro dva vozy, technická místnost, WC
Patro: 3 apartmány, každý s vlastním sociálním zařízením, jeden apartmán s kuchyní, vstup na venkovní terasu
Technologie: bioklárna, elektrické vytápění, solární kolektory
Bezpečnost: kamerový systém napojený na bezpečnostní službu
Další benefity
venkovní bazén
venkovní kuchyně
přístřešky pro parkování
vlastní molo vhodné pro loď i koupání
exkluzivní místo s nádhernými výhledy a zajištěným soukromím
Máte zájem o tuto nemovitost?
Hlubočepská 1156/38b, Praha
Pomůžeme Vám!
Pomůžeme Vám!
Kontakt

Daniela Göttlicher
Přihlášení k odběru
Nenechte si ujít nejnovější nabídky prodeje rodinných domů v Hřimeždicích.
Tipy Realitymatu

Prodej rodinného domu, Nový Knín, Reinišova, 87 m2
7 990 000 Kč

Prodej rodinného domu, Dobříš, Mírové náměstí, 450 m2
33 650 000 Kč
Podobné nabídky

Prodej rodinného domu, Hřiměždice, 335 m2
10 900 000 Kč

Prodej rodinného domu, Věšín, 80 m2
7 800 000 Kč