Prodej rodinného domu, Vrchlabí, 429 m2 (ID: 1964969)
Hořejší Vrchlabí
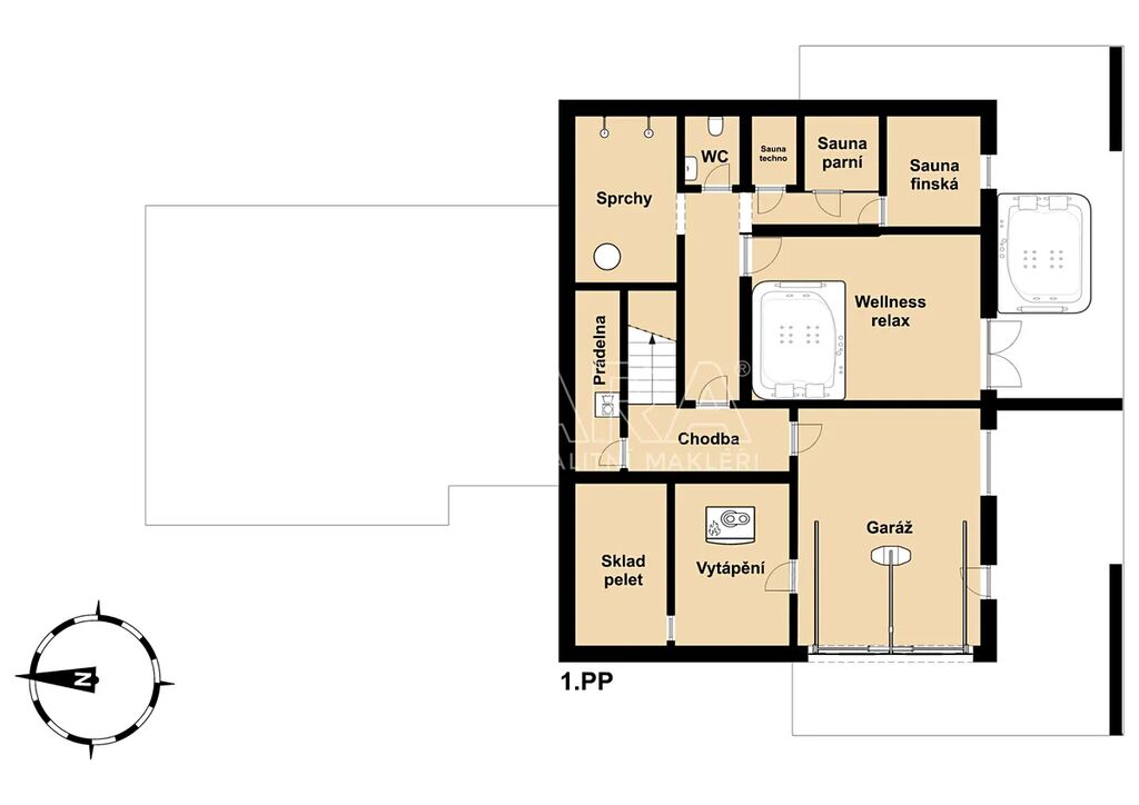
Popis
Nabízíme ke koupi exkluzivní horskou rezidenci ve vyhledávané lokalitě Vrchlabí, přímo mezi skiareály Bubákov a Herlíkovice. Dům o dispozici 7+kk je doplněn o samostatný apartmán 2+1 a nabízí celkovou užitnou plochu 568 m². Nachází se na prostorném pozemku o rozloze 4 087 m² a je nabízen kompletně vybavený, připravený k okamžitému užívání. Co na této nemovitosti oceníte nejvíce je naprosté soukromí, klid a nádherné výhledy.
Interiér je řešen velkoryse s důrazem na komfort a prostor, k dispozici je vnitřní i venkovní wellness zóna se saunou a vířivkou, prostorná terasa s posezením, venkovní ohniště a praktické zázemí šatny a lyžárny.
Parkování je možné přímo na pozemku. V zimní sezóně je smluvně zajištěno parkování níže pod rezidencí naproti penzionu Ranč (2 parkovací místa) a k dispozici na residenci je i sněžný skútr, který je součástí prodeje.
Vrchlabí, často nazývané branou do Krkonoš, nabízí ideální kombinaci městské občanské vybavenosti a přímého kontaktu s přírodou. V zimě oceníte blízkost sjezdovek, v létě zase nespočet turistických a cyklistických tras v okolí.
Pro více informací nebo domluvu prohlídky nás neváhejte kontaktovat.
Máte zájem o tuto nemovitost?
Pomůžeme Vám!
Kontakt

Bc. Jana Kuželíková
Přihlášení k odběru
Nenechte si ujít nejnovější nabídky prodeje rodinných domů v Vrchlabí.
Tipy Realitymatu

Prodej chaty, Vrchlabí, 12 m2
299 000 Kč
Podobné nabídky

Prodej rodinného domu, Vrchlabí, Dělnická, 177 m2
7 998 000 Kč

Prodej rodinného domu, Vrchlabí, Lidická, 238 m2
6 490 000 Kč