Prodej bytu 2+kk, Praha - Vysočany, Pod Harfou, 63 m2

Pod Harfou, Praha, Vysočany


6 656 000 Kč /za nemovitost
HYPOTÉKA od 29 748 Kč /měs.

(Včetně provize RK. Hypotéka možná.)


Regionální dodavatelé v Praze 9

Stěhovací služby

Výkup a prodej starého nábytku

Popis

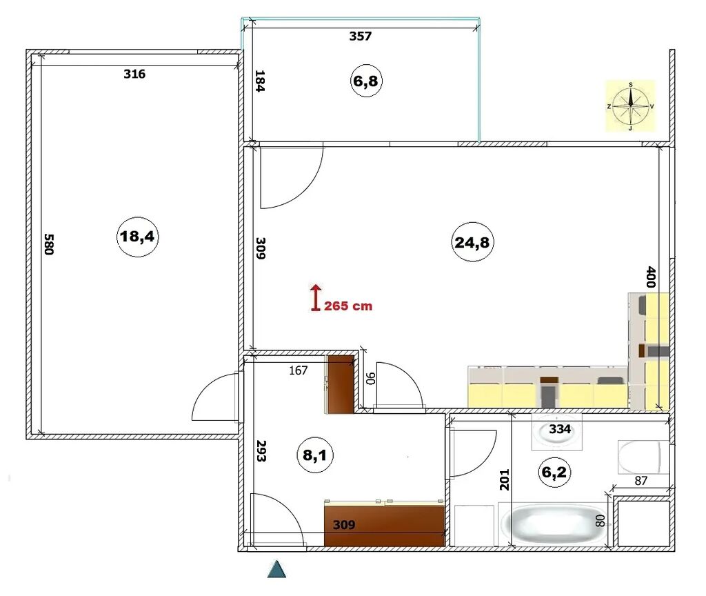
Nabízíme k prodeji luxusní, skvěle dispozičně vyřešený a velmi světlý byt v novostavbě Harfa Park (kolaudace 2024) v Praze 9 - Vysočany, ul. Pod Harfou.

Absolutní klid, množství zeleně, nádherný výhled a výborná dostupnost MHD (12 min. chůze na |M| Vysočanská, nebo 7 minut tramvají na |M| Palmovka - zastávka 270 m od domu).

Byt 2+kk (57,5 m2) se zastřešenou terasou (6,8 m2) a garážovým stáním. 7. patro z 8 se dvěma výtahy.

Cena za převod družstevního podílu 6.656.000,-Kč + zbývající anuita ve výši 4.844.000,-Kč s 3% úrokovou sazbou bez nutnosti prokazování příjmů! Měsíční splátka ve výši 21.439,-Kč. Anuitu lze doplatit vždy 2x ročně a převést byt do osobního vlastnictví. Možnost financování prostřednictvím hypotéčního úvěru.

Velké vestavěné šatní skříně, věšáky a botník v předsíni. Kuchyňská linka s vestavěnou indukční deskou, horkovzdušnou troubou, myčkou a digestoří s odtahem a lednicí s mrazákem.

V obývacím pokoji 4 okna včetně francouzského se vstupem na terasu. Orientace oken do volného prostoru bez zástavby! Velmi prostorná koupelna s oknem, vanou, závěsným WC a pračkou. Na podlahách dlažba, vinyl a koberec. Vytápění dálkové - měřič vstupního tepla do bytu. Stropy vysoké 265 cm.

Společné prostory (kočárkárna a kolárna).

Internet (optický kabel – 1 Gb/s) zaveden do bytu, datové a televizní zásuvky v každé místnosti. Bezpečnostní dveře.

Krásné okolí s plnou občanskou vybaveností a sportovního vyžití. Cyklostezka (Outdoor fitness stezka Rokytka) A26 přímo u domu. Skvěle vybavená venkovní posilovna, lezecká stěna, bazén, OC Fénix, pizzerie, restaurace, …

Skvělá investice! Byt je v současné době obsazen řádně platícím nájemcem za 23.000,-Kč + poplatky. Nájemní smlouva končí za 3 měsíce. Pokud bude mít nový majitel zájem o prodloužení, nájemce toto uvítá.

Více fotografií (34) na stránkách blanikreality pod ID: 25281.

Třída energetické náročnosti (PENB) - B - velmi úsporná.

Cena
6 656 000 Kč /za nemovitost Spočítat hypotéku
Poznámka k ceně
Včetně provize RK. Hypotéka možná.
Aktualizováno
7. 10. 2025
Adresa
Pod Harfou, Praha, Vysočany
ID
25281
Stavba
Cihlová
Stav objektu
Novostavba
Patro
8. z 9
Vybaveno
Částečně
Lokalita objektu
Klidná část obce
Vlastnictví
Družstevní
Užitná plocha
63 m2
Třída energetické náročnosti
B - Velmi úsporná
Elektřina
230V, 400V
Topení
Ústřední dálkové
Telekomunikace
Telefon, Internet, Kabelová televize, Kabelové rozvody
Doprava
MHD
Voda
Vodovod
Garáž
Terasa
Výtah
Bezbarierový přístup
Převod do OV
Parkování

Máte zájem o tuto nemovitost?

Tímto, v souladu s nařízením Evropského parlamentu a Rady (EU) 2016/679, v platném znění, prohlašuji, že mi je alespoň 16 let a uděluji tak svůj souhlas se zpracováním zadaných údajů (jméno, telefon, e-mail, ip adresa) společnosti B3 Technology, s.r.o., IČ: 07330600, se sídlem Novostavby 126/23, 435 11 Lom (správce dat), za účelem předání dotazu z tohoto formuláře Vámi vybranému inzerentovi a zpětného kontaktování mé osoby. Osobní údaje bude správce zpracovávat manuálně i automaticky přímo prostřednictvím svých zaměstnanců. Informace předané tímto formulářem budou uloženy v databázi správce maximálně po dobu 10 let. Odvolání souhlasu s uložením a zpracováním poskytnutých dat lze e-mailem na info@realitymat.cz. V případě podezření na neoprávněné použití Vámi poskytnutých údajů máte právo předat podnět k šetření Úřadu pro ochranu osobních údajů. Více informací
Chystáte se prodat nemovitost?
Pomůžeme Vám!

Kontakt

Mgr. Bohuslav Papírník

Mgr. Bohuslav Papírník

Přihlášení k odběru

Nenechte si ujít nejnovější nabídky prodeje bytů 2+kk v Praze 9.

Podobné nabídky