Pronájem bytu 3+kk, Praha - Holešovice, Na Maninách, 146 m2 (ID: 1963241)
Na Maninách, Praha, Holešovice
(Poplatky za služby a energie se hradí zvlášť)
Popis
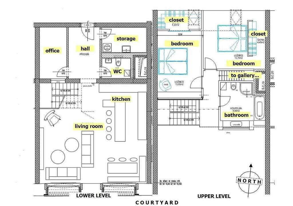
Unikátní prostorný mezonet, 3+kk, 146 m2, situovaný ve 2.patře budovy, v populární lokalitě Praha 7 Holešovice.
Interiér bytu je moderně zařízený s industriálními prvky velká okna, tři úrovně s galerií. Strop v obývacím pokoji je vysoký 8 metrů, v ložnicích je strop vysoký 5 metrů. Byt se nachází v přestavěné pivovarské budově a je plně zařízený. Ve spodním patře se nachází moderně zařízená kuchyň (indukční deska, trouba, lednice, mrazák, mikrovlnka, myčka), v kuchyni je specifickým prvkem bar s designovými sedadly z tramvaje Tatra T3 z 60.let., kuchyňský kout je spojen s prostorným obývacím pokojem, separátní toaleta a prádelna s pračkou a sušičkou. V horním patře je moderně zařízená koupelna (sprchový kout, vana, toaleta) a dvě samostatné ložnice s šatnou. Z obývacího pokoje vedou schody na designovou galerii. Byt je plně klimatizovaný a má přípojky pro vysokorychlostní internet/TV a satelitní TV.
Oblíbená rezidenční lokalita poskytuje komfortní bydlení s veškerou občanskou vybaveností v okolí v pěší dostupnosti. Součástí komplexu je supermarket Albert a DM drogerie, dále restaurace a kavárna. Tato atraktivní čtvrť se rozprostírá mezi levým břehem Vltavy a Letnou. Dnes jednou z nejzajímavějších lokalit v Praze. Holešovice jsou lokalitou s průmyslovou historií. Dnes je mnoho budov po rekonstrukci a nachází druhý život jako byty, kancelářské komplexy, ateliéry mladých umělců, designérů a architektů. Výborné dopravní spojení: na křižovatce Komunardů a u Průhonu, do 3 minut chůze na čtyři tramvajové zastávky U Průhonů, Dělnická, Ortenovo náměstí a Maniny. Jedna zastávka tramvají od vlakového nádraží Holešovice, velmi blízko hlavní severojižní dálnice.
Možnost pronájmu garážového stání za 5.000, Kč/měsíčně a sklepa za poplatek 1.500, Kč/měsíčně. Krátkodobé parkování pro hosty je k dispozici přímo před budovou.
Fixní poplatky za služby činí 5000, /měsíčně a zálohové poplatky za energie spojené s užíváním bytu 7.000, Kč/měsíčně (elektřina, topení, voda). Vratná kauce 2 nájmy. Provize RK.
Máte zájem o tuto nemovitost?
Vinohradská 939/39, Praha, Vinohrady
Pomůžeme Vám!
Pomůžeme Vám!
Kontakt

Eva Cinculová
Přihlášení k odběru
Nenechte si ujít nejnovější nabídky pronájmu bytů 3+kk v Praze 7.
Tipy Realitymatu