Prodej bytu 2+kk, Praha - Žižkov, Havlíčkovo náměstí, 60 m2

Havlíčkovo náměstí, Praha, Žižkov


11 300 000 Kč /za nemovitost
HYPOTÉKA od 50 504 Kč /měs.
Regionální dodavatelé v Praze 3

Stěhovací služby

Výkup a prodej starého nábytku

Popis

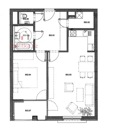
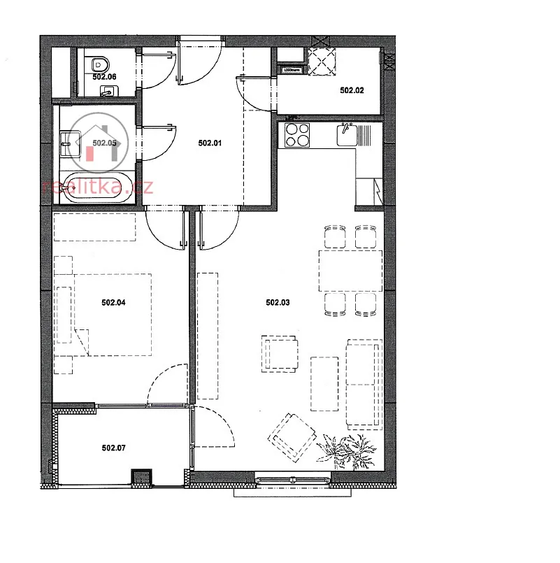
Nabízíme k prodeji krásný a prostorný byt o dispozici 2+kk, ve třetím patře, s celkovou výměrou 65 m², který se nachází na klidném místě Rezidence u Žižkovské radnice. Byt je ideální pro ty, kteří hledají moderní bydlení v srdci Prahy s veškerým komfortem.
Popis bytu:
• Dispozice: Chodba, WC, koupelna, vnitřní komora, ložnice, kuchyň s jídelnou a obývacím pokojem.
• Kuchyň: Nová kuchyňská linka v dekoru bílého lesku, vybavená vestavnou lednicí, myčkou, troubou, dvouplotýnkovou varnou deskou, odsavačem par a mikrovlnnou troubou.
• Obývací pokoj a ložnice: Z obou místností je přístup na lodžii s krásným výhledem do parku a klimatizační jednotkou.
• WC: Moderní WC Geberit, keramický obklad a dlažba
• Koupelna: Vana, podlahové vytápění a žebřík na sušení, keramický obklad a dlažba
• Podlahy: Dřevěné masivní parkety – dub rustikal
• Okna a prosklené stěny: Dřevohliníková, bezúdržbová (přírodní dřevo do místnosti a hliník na vnější straně se zvýšenou odolností proti povětrnostním vlivům), kování vícepolohové s mikroventilací.
• Dveře: Interiér hladká dýhovaná s bílým nástřikem, obložkové zárubně. Vstupní dveře bezpečnostní, protipožární.
• Stropy a stěny: štukované s oděruvzdornou malbou
Další vybavení:
• Klimatizace – cirkulační chlazený systém
• Prostorná vnitřní komora s policemi
• Lodžie s výhledem do parku, se zábradlím z bezpečnostního skla a mrazuvzdornou dlažbou
Parkování: K bytu náleží vnitřní parkovací stání v garážích domu.
Vytápění: Centrální plynový kotel, v pokojích topná ocelová tělesa, každý byt má vlastní předávací stanici pro ohřev TUV a regulaci a měření topné vody a studené vody.
Společné prostory:
• Společné chodby a schodiště s dlažbou.
• Garáže s podlahou ze syntetické podlahoviny, odolné proti úkapům látek, mrazu, solím i vodě.
• Výtah jednostranný, neprůchozí
• Zvonky a domácí telefon s ovládáním zámku vchodových dveří
• Schránky v přízemí domu
Náklady bytu – měsíční poplatky: cca 3.000,- Kč + záloha na elektřinu
Žižkov, srdce a duše Prahy 3, je místem, kde se historie setkává s moderním životem. Okolí Žižkovské radnice je charakteristické svým historickým šarmem a živou atmosférou. Nachází se zde řada kaváren, restaurací a obchodů, které nabízejí pestrou škálu služeb a kulinářských zážitků. Přímo v přízemních prostorách domu je prodejna Tesco Expres. Blízkost Mahlerových sadů poskytuje obyvatelům i návštěvníkům možnost odpočinku a relaxace v zeleni. V okolí se také nachází několik kulturních a historických památek, které dodávají oblasti jedinečnou atmosféru. Díky výborné dopravní dostupnosti, kterou zajišťuje síť MHD, je Žižkovská radnice snadno přístupná a činí z této lokality atraktivní místo pro život i práci.
Nabízíme Vám jedinečnou příležitost stát se součástí této historické čtvrti a pořídit si byt, který splní všechny vaše sny o ideálním bydlení v Praze. Nechte se okouzlit Žižkovem a objevte místo, které se stane vaším novým domovem.
Neváhejte kontaktovat makléřku pro více informací nebo pro domluvení prohlídky.

Cena
11 300 000 Kč /za nemovitost Spočítat hypotéku
Aktualizováno
6. 10. 2025
Adresa
Havlíčkovo náměstí, Praha, Žižkov
ID
25002
Stavba
Smíšená
Stav objektu
Velmi dobrý
Patro
5.
Vybaveno
Částečně
Lokalita objektu
Klidná část obce
Vlastnictví
Osobní
Užitná plocha
60 m2
Třída energetické náročnosti
C - Úsporná
Odpad
Veřejná kanalizace
Topení
Ústřední plynové
Telekomunikace
Internet
Voda
Vodovod
Topné těleso
Podlahové vytápění, Radiátory
Lodžie
Výtah
Bezbarierový přístup
Parkování

Máte zájem o tuto nemovitost?

Tímto, v souladu s nařízením Evropského parlamentu a Rady (EU) 2016/679, v platném znění, prohlašuji, že mi je alespoň 16 let a uděluji tak svůj souhlas se zpracováním zadaných údajů (jméno, telefon, e-mail, ip adresa) společnosti B3 Technology, s.r.o., IČ: 07330600, se sídlem Novostavby 126/23, 435 11 Lom (správce dat), za účelem předání dotazu z tohoto formuláře Vámi vybranému inzerentovi a zpětného kontaktování mé osoby. Osobní údaje bude správce zpracovávat manuálně i automaticky přímo prostřednictvím svých zaměstnanců. Informace předané tímto formulářem budou uloženy v databázi správce maximálně po dobu 10 let. Odvolání souhlasu s uložením a zpracováním poskytnutých dat lze e-mailem na info@realitymat.cz. V případě podezření na neoprávněné použití Vámi poskytnutých údajů máte právo předat podnět k šetření Úřadu pro ochranu osobních údajů. Více informací
Chystáte se prodat nemovitost?
Pomůžeme Vám!

Kontakt

Soňa Hrdličková

Soňa Hrdličková

Přihlášení k odběru

Nenechte si ujít nejnovější nabídky prodeje bytů 2+kk v Praze 3.

Podobné nabídky