Pronájem bytu 2+1, Praha, Poděbradská, 55 m2
Poděbradská, Praha 9
Popis
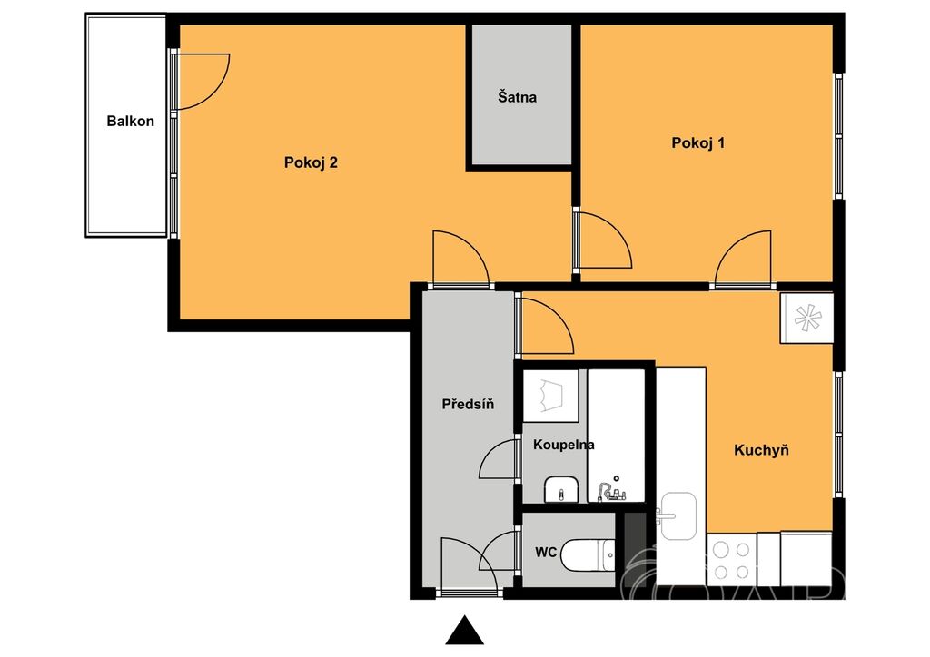
Nabízíme k dlouhodobému pronájmu světlý byt 2+1 o velikosti 55 m², s balkonem, který se nachází ve 4. patře (bez výtahu) bytového domu jen pár vteřin od stanice metra B – Hloubětín a tramvajové zastávky.
Byt je dispozičně velmi dobře řešený – tvoří jej dva neprůchozí pokoje, samostatná kuchyně, koupelna s vanou, samostatné WC a předsíň.
V jednom z pokojů se nachází prostorná šatna, která nabízí dostatek úložného prostoru, další vestavěné úložné prostory jsou i v bytě.
Výborná dopravní dostupnost – metro i tramvaj pár kroků od domu, do centra za pár minut. V okolí je kompletní občanská vybavenost – obchody, restaurace, služby i zeleň pro volnočasové aktivity.
Nájemné 15 000 Kč / měsíc,
služby 2 800 Kč / 2 osoby,
vratná kauce 15 000 Kč,
energie (převod na nájemce - elektřina, plyn),
provize RK,
dostupný IHNED.
Byt je ideální pro jednotlivce či pár hledající pohodlné a dlouhodobé bydlení s perfektní dopravní dostupností.
📞 V případě zájmu o prohlídku nás neváhejte kontaktovat.
Máte zájem o tuto nemovitost?

Šafaříkova 201/17, Praha
Pomůžeme Vám!
Pomůžeme Vám!
Kontakt

Lukáš Helešic
Přihlášení k odběru
Nenechte si ujít nejnovější nabídky pronájmu bytů 2+1 v Praze 9.