Prodej rodinného domu, Vranov nad Dyjí, 110 m2
Vranov nad Dyjí
(- včetně právního servisu, provize realitní kanceláři i DPH)
Popis
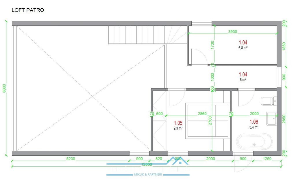
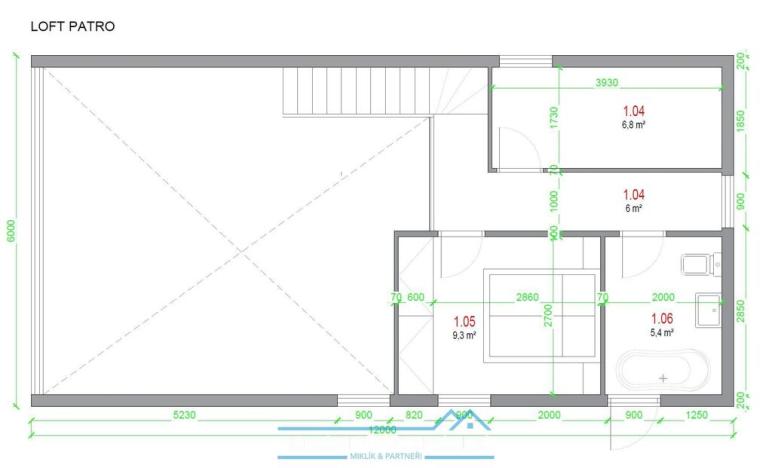
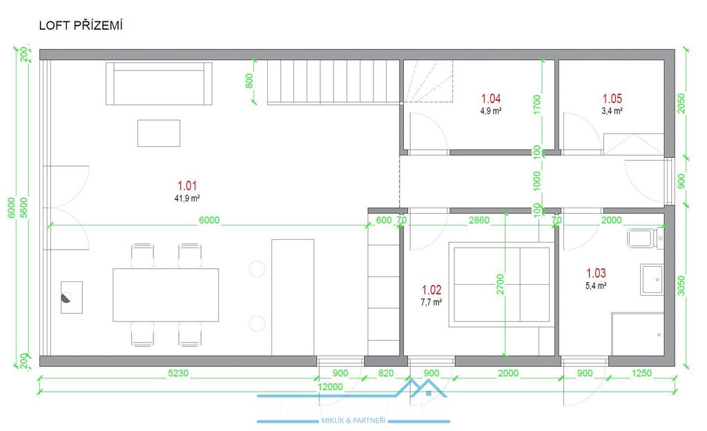
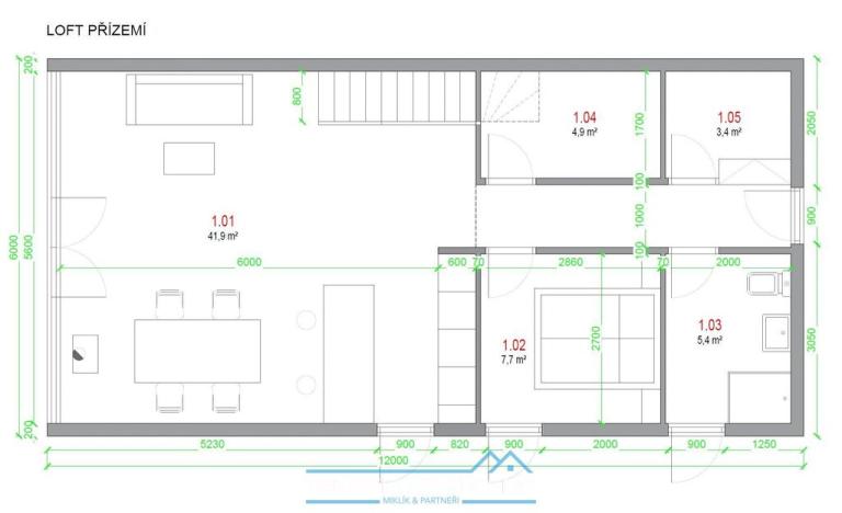
K prodeji nabízíme luxusní loftový dům, o zastavěné ploše 72m2, který je koncipovaný jako 3+kk a dvě koupelny, ale je možné jej také upravit na 4+kk s jednou koupelnou. Jednou z mnoha výhod domu je nadčasový design, nezávislost, cena, rychlé dodání, mobilita, a soulad s přírodou díky vzdušným základům a energetické nenáročnosti.
Nabízíme zde možnost koupě daného domu, který bude vystavěný na míru konkrétnímu klientovi na stavební parcele o výměře 1000m2, ve Vranově nad Dyjí, v blíkozsti Národního parku Podyjí, v úžasné oblasti mezi řekou a vzrostlými stromy.
Informace o domě:
Povrchové materiály:
- vnější úprava: profilovaný plech Satjam Rapid na střeše, barva RAL 7016 Antracit Grau, stěny dřevo sibiřský modřín (ošetřen bezbarvou lazurou)
- dekorace interiéru: stěny a strop bio deska Smrk, Remers vosková lazura bílá, podlaha smrkové palubky ošetřené voskovou lazurou bílou a tvrdým voskem.
- koupelna: dlažba a bio deska Smrk, vosková lazura bílá + bezbarvá vodouodpudivá lazura
Zasklení:
- okna: dřevěné rámy 76 mm, okna s dvojitým zasklením
- vchodové dveře: dřevěná zárubeň, dvojsklo
- panoramatické zasklení: dvoukomorové termoizolačních kalené sklo
Inženýrské sítě:
- vodovodní a kanalizační rozvody,
- vestavěná elektrika a vestavěný rozvaděč
- venkovní a vnitřní osvětlení
Vybavení a vodoinstalace:
- vyhřívaná podlaha v koupelně
- koupelna: umyvadlo, vana, baterie, WC mísa, bidetovací sprcha
- bojler na 80 litrů
- kamna se stojanem a komínovou sadou
- topný kabel 2M (proti zamrznutí vodovodního připojení)
- ventilace (ventilátor v kuchyni jednoduchý a v koupelně automatický)
Nábytek a doplňky:
- kuchyně: vestavěná lednice, indukční deska, dřez, baterie
- závěsné police
- postel
- stůl
- židle 2ks
- koupelnové zrcadlo
- matrace 2000×2200 mm
- sada nádobí pro 2 osoby
- textil
- výzdoba
Informace o stavebním pozemku:
K prodeji nabízíme 3 stavební pozemky ve výjimečné lokalitě Vranova nad Dyjí, situovaných v klidné části ulice Benátek. Co se zde může postavit: Podmínky prostorového uspořádání a základních podmínek ochrany krajinného rázu:
- výška nepřesáhne výškovou hladinu stávající zástavby v navazujícím území (max. 2 NP + podkroví), u nových ploch není vymezeno
- koeficient zastavění stavebního pozemku bude max. 30%
- případná vyšší intenzita ve stabilizovaných plochách je respektována.
Další benefity:
- Lokalita Benátek, Vranov nad Dyjí klid, příroda, cyklostezky, turistika, řeka, dostupnost.
- Celková rozloha pozemku: 1000 m2 (možné koupit i více pozemků dohromady, viz. značení ve fotografii, finální rozdělení geomterickým plánem bude uděláno na základě podpisu rezervační smlouvy)
- Veškeré inženýrské sítě na pozemku, zajištěný příjezd po komunikaci až na pozemek
Cena pozemku činí 2.990.000,- Kč/m2 (včetně právního servisu, provize realitní kanceláři i DPH), tato cena je již zahrnuta v celkové prezentované ceně.
Bližší informace a termíny prohlídek u pana Ing. Miklíka, volat můžete kdykoliv, včetně víkendů a svátků.
Máte zájem o tuto nemovitost?
Pomůžeme Vám!
Kontakt

Ing. Mgr. Gabriel Miklík, MBA
Přihlášení k odběru
Nenechte si ujít nejnovější nabídky prodeje rodinných domů v Vranově nad Dyjí.
Podobné nabídky

Prodej rodinného domu, Suchohrdly, Na Hájku, 240 m2
9 490 000 Kč

Prodej rodinného domu, Horní Kounice, 111 m2
2 700 000 Kč

Prodej rodinného domu, Podmyče, 255 m2
4 245 000 Kč

Prodej rodinného domu, Božice, 130 m2
4 000 000 Kč