Prodej rodinného domu, Jakartovice, 113 m2 (ID: 1960231)
Jakartovice, Deštné
Popis
Domy Renard
Exkluzivně nabízíme k prodeji šest domů v lokalitě Jakartovice Deštné.
O domech
Představujeme Vám harmonický dům který spojuje moderní architekturu s přírodním prostředím v malebné lokalitě Jakartovice – Deštné.
Tento moderní dům se sedlovou střechou, krytým parkovacím stáním a prostornou zahradou je ideálním místem pro mladé páry i rodiny hledající harmonické bydlení v klidném prostředí. Zároveň nabízí skvělé dopravní spojení do Opavy, která poskytuje výbornou dostupnost všech služeb po celý rok.
Dům poskytuje funkčnost a praktičnost, vyznačuje se čistými liniemi, elegantní kombinací fasádních, dřevěných a kamenných prvků a precizním zpracováním detailů. Jeho minimalistický design se sedlovou střechou a velkoformátovými výplněmi přináší nejen nadčasový vzhled, ale také dostatek přirozeného světla do interiéru.
Dům je orientovaný na jižní stranu, takže na dům po většinu roku může svítit slunce, sníží se tak spotřeba tepla a budete mít mnohem příjemnější a prosvětlený domov.
Hlavní obytná část je orientována do zahrady, kde se nachází krytá terasa s posezením, ideální pro relaxaci nebo setkávání s rodinou a přáteli. Velké prosklené plochy propojují interiér s exteriérem a vytvářejí příjemný, vzdušný prostor.
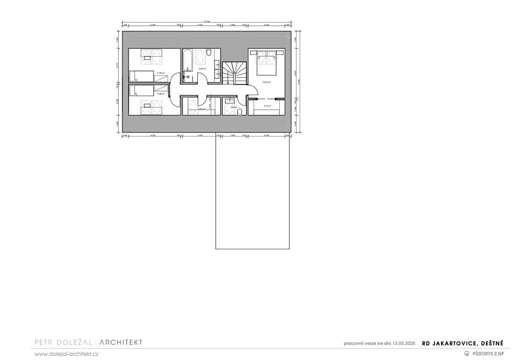
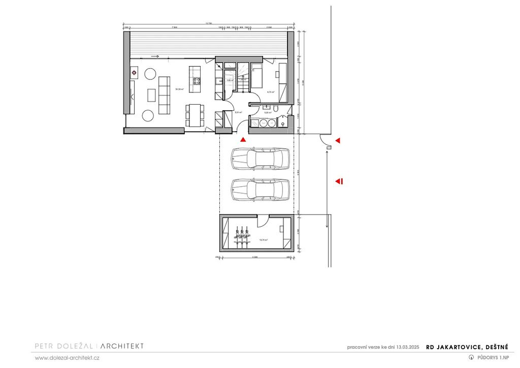
Dispozičně je dům řešen velmi prakticky – nabízí otevřený obývací prostor s kuchyní a jídelnou, které tvoří srdce domu. Součástí jsou také ložnice, koupelna a dostatek úložného prostoru. Moderní technologie a kvalitní materiály zajišťují maximální komfort a energetickou úspornost.
K domu náleží kryté parkovací stání s elegantním břidlicovým obložením, což je typický kámen pro místní krajinu a esteticky tak doplňuje celkový vzhled stavby. Součástí je také technická místnost, kterou lze využít k uskladnění sportovního vybavení a zahradní techniky nebo jako menší dílnu. Pečlivě upravená zahrada a okolní zeleň podtrhují příjemnou atmosféru tohoto moderního bydlení v souladu s přírodou.
Cena domu dle dokončení od 7,5 mil. Kč
Máte zájem o tuto nemovitost?
Opavská 6230/29a, Ostrava
Pomůžeme Vám!
Pomůžeme Vám!
Kontakt

Přemysl Tyl
Přihlášení k odběru
Nenechte si ujít nejnovější nabídky prodeje rodinných domů v Jakartovicích.
Tipy Realitymatu

Prodej domu na klíč, Opava - Předměstí, 127 m2
Cena na vyžádání
Podobné nabídky

Prodej rodinného domu, Vítkov, U Nemocnice, 110 m2
Cena na vyžádání

Prodej rodinného domu, Ludgeřovice, Rybářská, 95 m2
Cena na vyžádání

Prodej rodinného domu, Opava, Liliová, 220 m2
Cena na vyžádání

Prodej rodinného domu, Opava, Liliová, 210 m2
Cena na vyžádání