Prodej rodinného domu, Ruda, Pražská, 400 m2
Pražská, Ruda
Popis
Nabídka prostorného rodinného domu v klidné ulici v obci Ruda u Nového Strašecí, okres Rakovník. Dům byl postaven v polovině devadesátých let, je v započaté rekonstrukci k dokončení dle vlastních představ. Dům kromě bydlení je možné využít také díky nebytovým prostorům – prostorné autodílny na podnikaní.
Pozemek včetně zastavěné plochy je o celkové rozloze 589 m², z toho zastavěná plocha domu je o rozloze 148 m2 (zahrada u domu 441m2). Dům má celkem 3 podlaží a je i částečně podsklepen.
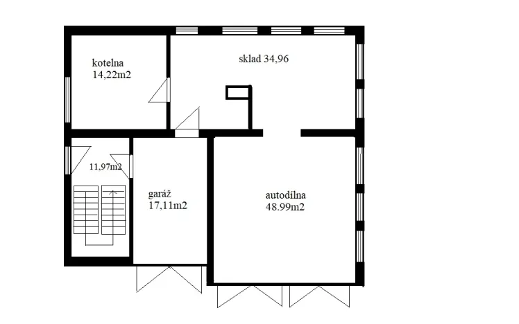
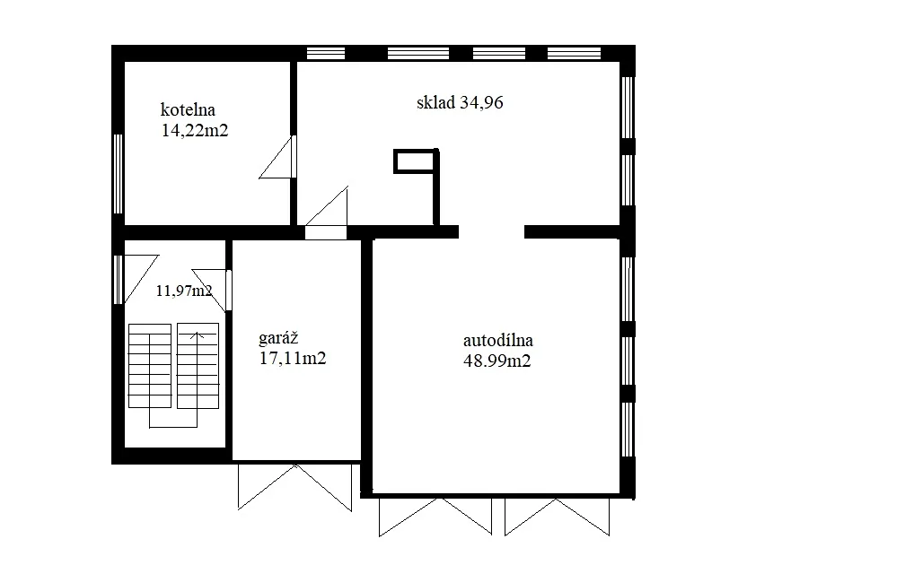
V 1 nadzemním podlaží se nachází kromě vstupní chodby se schodištěm, kotelna, sklad , garáž a dále prostorná autodílna s montážní jámou.
V 2. nadzemním podlaží se nachází se samostatným vstupem byt 3+1. Z bytu je vstupe na nedokončenou prostornou terasu.
V 3. nadzemním podlaží – podkroví ( výška stropu cca 2,1 m ) je v rekonstrukci – ve výstavbě další byt 3+1.
Dům je napojen na obecní vodovod a kanalizaci, plyn přiveden na hranici pozemku do vyzděného „antoníčku“. Na zahradě vlastní studna. Topení na pevná paliva – kotel.
V obci Ruda je mateřská škola, prodejna COOP, hostinec, obecní úřad. Dobrá dostupnost na D6 (Praha-Karlovy Vary), Hranice Prahy do 25 min. V okolí Křivoklátské lesy.
PENB = " F "
Máte zájem o tuto nemovitost?
Vít Kadlec - Reality Centrum Praha
Ratajská 1267, Praha, Újezd nad Lesy
Pomůžeme Vám!
Pomůžeme Vám!
Kontakt

Vít Kadlec
Přihlášení k odběru
Nenechte si ujít nejnovější nabídky prodeje rodinných domů v Rudě (okr. Rakovník).
Tipy Realitymatu

Prodej rodinného domu, Račice, 570 m2
11 900 000 Kč

Prodej chaty, Skryje, 34 m2
995 000 Kč
Podobné nabídky

Prodej rodinného domu, Ruda, V zahradách, 160 m2
12 999 000 Kč

Prodej rodinného domu, Hořovičky, 200 m2
6 990 000 Kč

Prodej rodinného domu, Krupá, 179 m2
5 300 000 Kč

Prodej rodinného domu, Mšecké Žehrovice, 150 m2
8 160 000 Kč